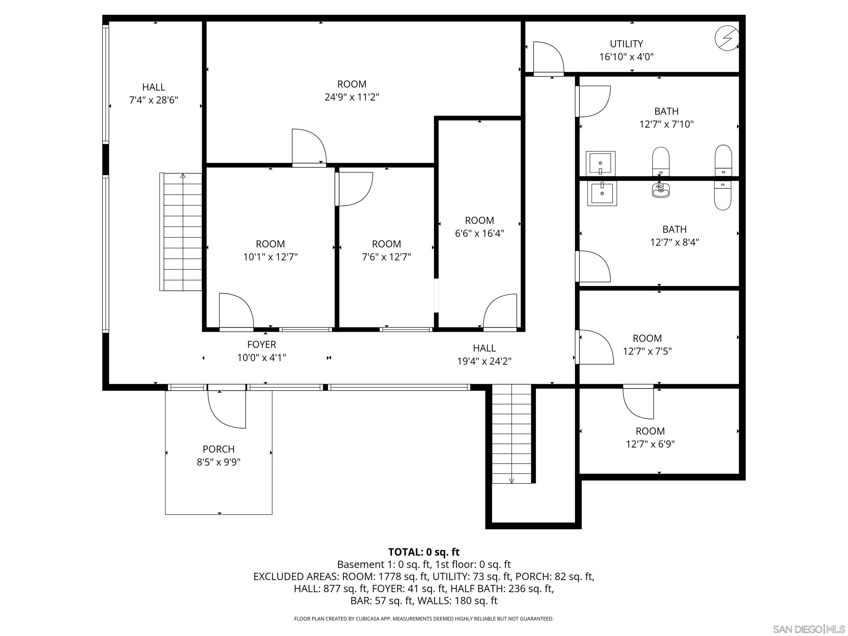
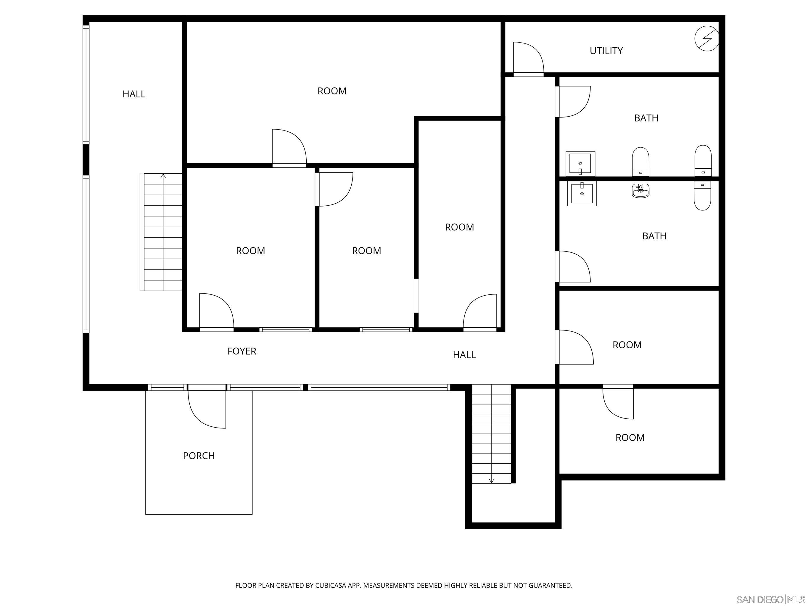
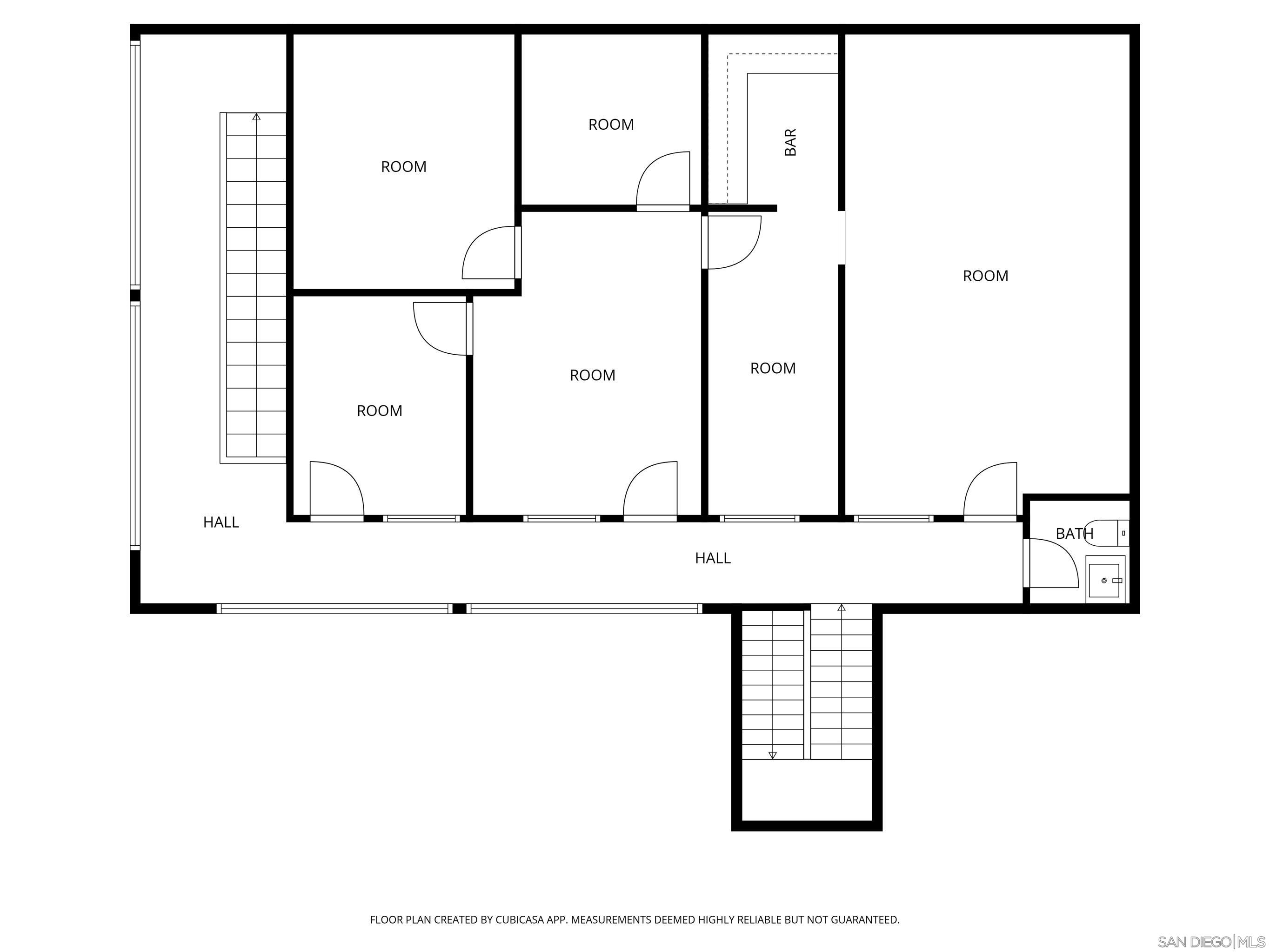
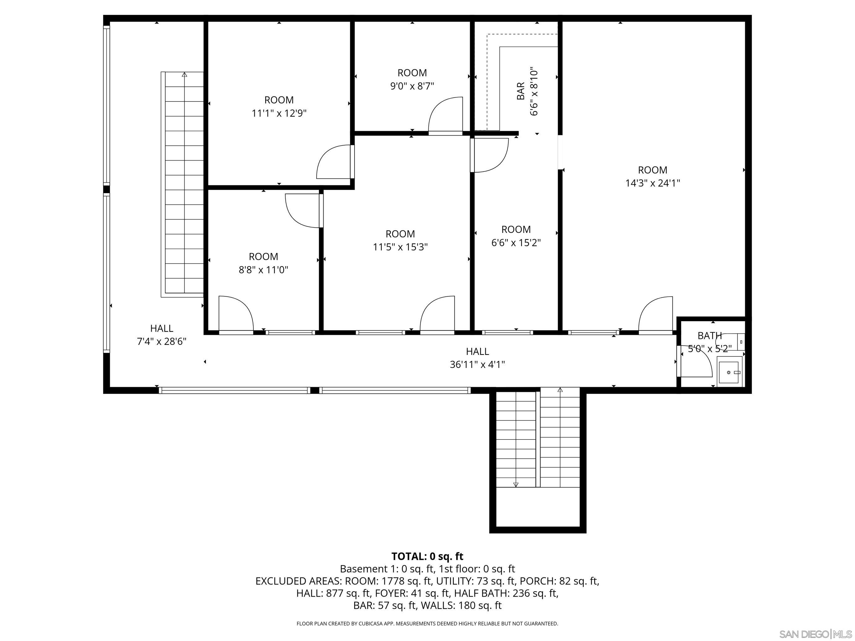
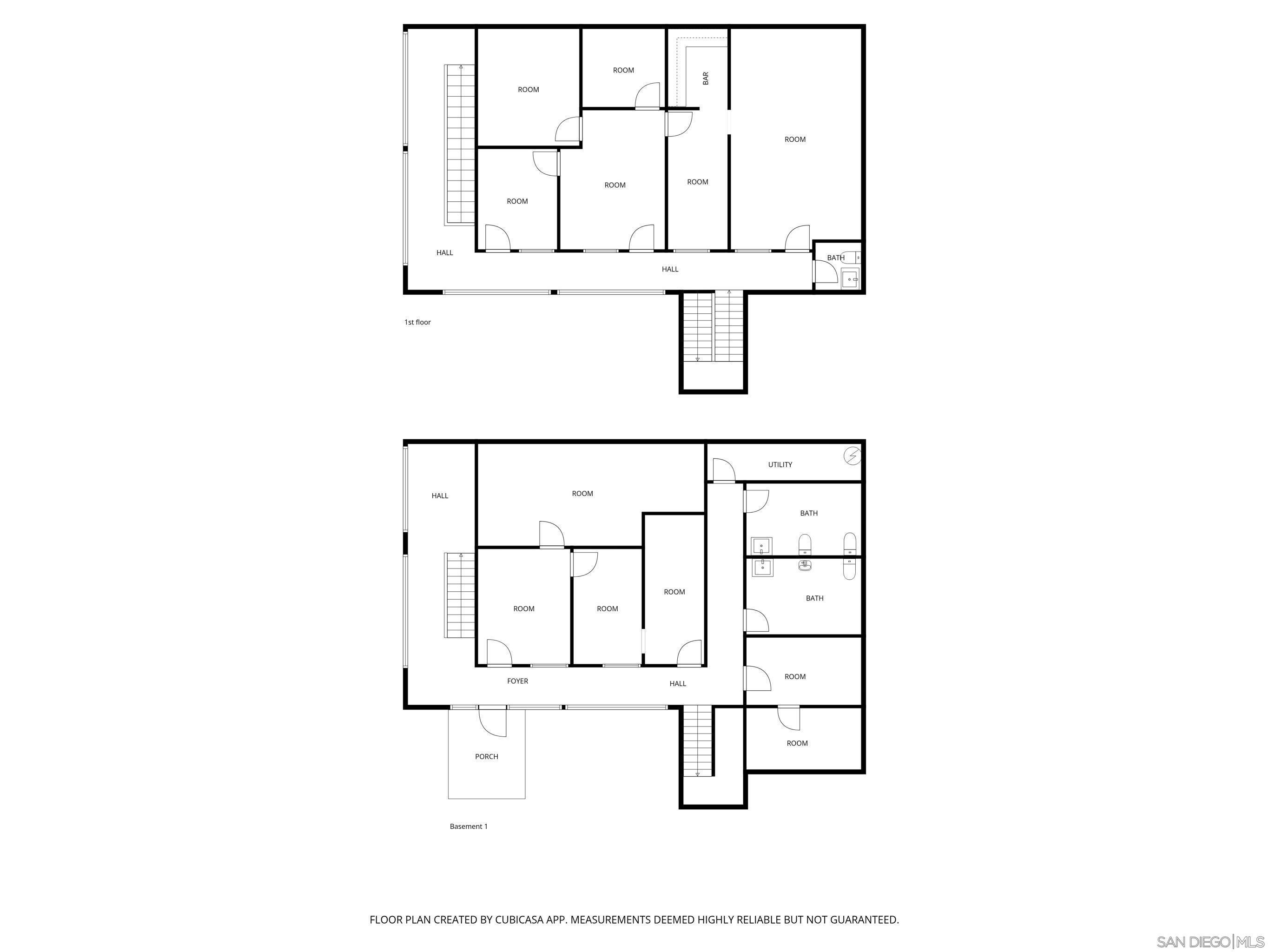
Sold At A Discount! The property is distressed and needs work, perfect for a contractor. The two story office building with 7 parking spaces provides opportunity. Set alongside the 94 Freeway, the high roofline provides signage and advertising opportunity with 135,000 cars passing daily. The roof of the building currently has a cell tower leased to a prominent cellular company. The building itself has vast amount of storage, a myriad of ways to configure offices, 3 bathrooms, stairs at both ends of the building, and a private, secure parking lot.
MLS #
SD260002128
MLS Source
San Diego MLS
Days on Site
3
# Buildings / # Units
1
Present Use
Office, Retail
| # Buildings | # Leased Units | # Total Units |
|---|---|---|
| 1 | – | – |
7331 North Ave is a Commercial Sale in Lemon Grove, CA 91945. This 3,413 square foot property sits on a 6,735 Sq Ft Lot and features – bedrooms & – full bathrooms. It is currently priced at $725,000 and was built in 1994. This address can also be written as 7331 North Ave, Lemon Grove, CA 91945.
©2026 San Diego MLS. All rights reserved. All data, including all measurements and calculations of area, is obtained from various sources and has not been, and will not be, verified by broker or MLS. All information should be independently reviewed and verified for accuracy. Properties may or may not be listed by the office/agent presenting the information. Information provided is for personal, non-commercial use by the viewer and may not be redistributed without explicit authorization from San Diego MLS.
Presently MLSListings.com displays Active, Contingent, Pending, and Recently Sold listings. Recently Sold listings are properties which were sold within the last three years. After that period listings are no longer displayed in MLSListings.com. Pending listings are properties under contract and no longer available for sale. Contingent listings are properties where there is an accepted offer, and seller may be seeking back-up offers. Active listings are available for sale.
This listing information is up-to-date as of January 29, 2026. For the most current information, please contact Jeff Larabee, (619) 840-6280