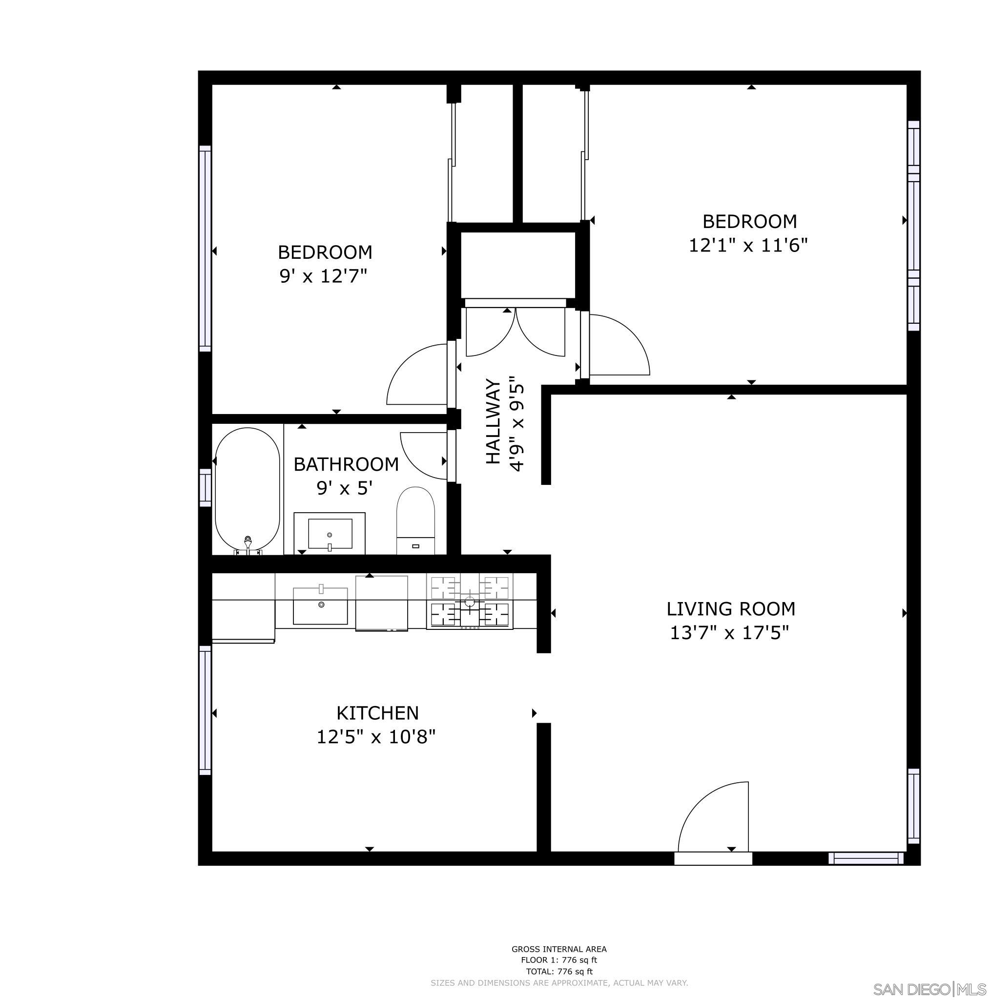
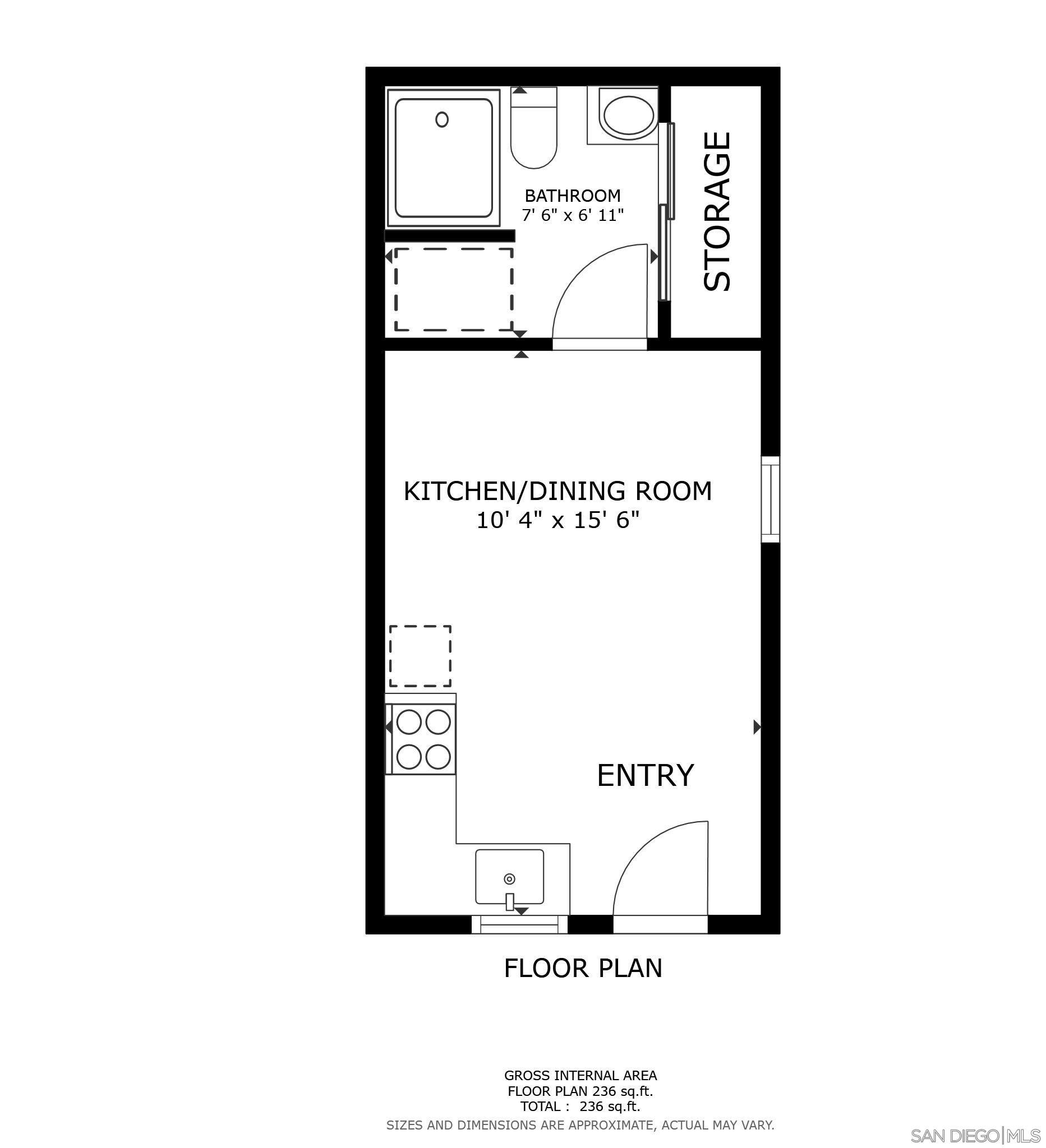
Renovated, turnkey four-unit multifamily property ideally positioned in the rapidly growing South San Diego / Imperial Beach corridor. This property comprises (2) spacious 2BD/1BA units and (2) well-designed studio units, each offering a highly efficient layout with luxurious modern finishes. Custom cabinetry, quartz countertops, stainless steel appliances, in-unit washer and dryers, LVP flooring, and designer lighting. Each studio includes an energy-efficient AC mini-split systems.ALL units have individual private yards at the rear of the property, providing valuable outdoor living space. A full fire sprinkler system further enhances safety and potential insurance savings.Qualifies as an ideal FHA or VA purchase, making it a perfect opportunity for owner-occupants or investors seeking long-term income and appreciation potential.
MLS #
SD250043820
MLS Source
San Diego MLS
Days on Site
23
Cooling
Other
Roof
Composition
Listing Agent
Seth Watje
Starker West, Inc.
License #: 01805453
Phone: (619) 358-3748
Co-Listing Agent
Adam Cairo
Starker West, Inc.
License #: 01948040
Phone: (619) 300-0173
| # Buildings | # Leased Units | # Total Units |
|---|---|---|
| 1 | – | 4 |
| Unit # | Sq Ft | Beds | Baths | Rent |
|---|---|---|---|---|
| 1 | – | 2 | 1/0 | $2,950 |
| 2 | – | 2 | 1/0 | – |
| 3 | – | 0 | 1/0 | – |
| 4 | – | 0 | 1/0 | – |
1012-14 15th St is a Residential Income in San Diego, CA 92154. This – square foot property sits on a 7,257 Sq Ft Lot and features – bedrooms & – full bathrooms. It is currently priced at $1,675,000 and was built in 1950. This address can also be written as 1012-14 15th St, San Diego, CA 92154.
©2025 San Diego MLS. All rights reserved. All data, including all measurements and calculations of area, is obtained from various sources and has not been, and will not be, verified by broker or MLS. All information should be independently reviewed and verified for accuracy. Properties may or may not be listed by the office/agent presenting the information. Information provided is for personal, non-commercial use by the viewer and may not be redistributed without explicit authorization from San Diego MLS.
Presently MLSListings.com displays Active, Contingent, Pending, and Recently Sold listings. Recently Sold listings are properties which were sold within the last three years. After that period listings are no longer displayed in MLSListings.com. Pending listings are properties under contract and no longer available for sale. Contingent listings are properties where there is an accepted offer, and seller may be seeking back-up offers. Active listings are available for sale.
This listing information is up-to-date as of November 13, 2025. For the most current information, please contact Seth Watje, (619) 358-3748