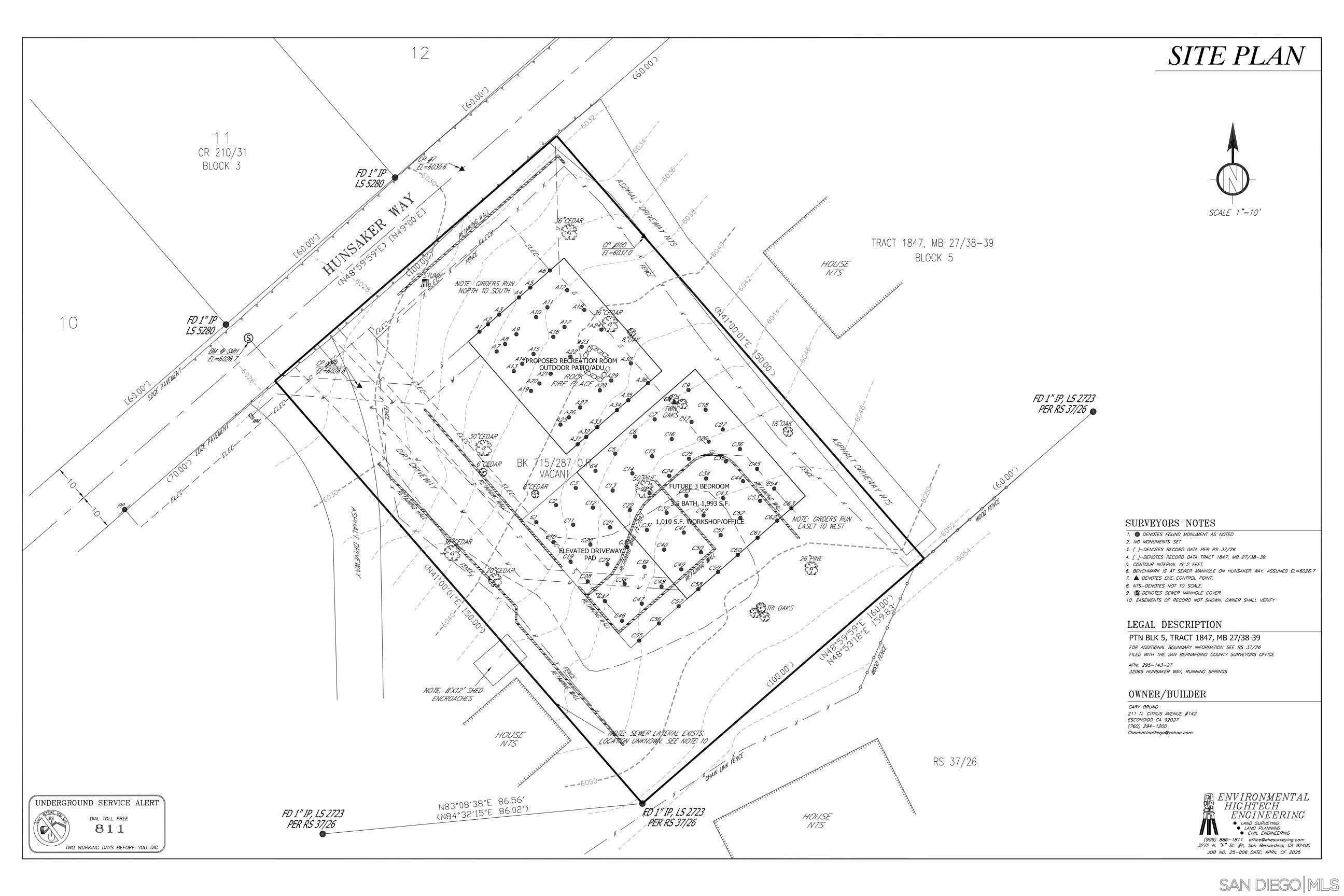
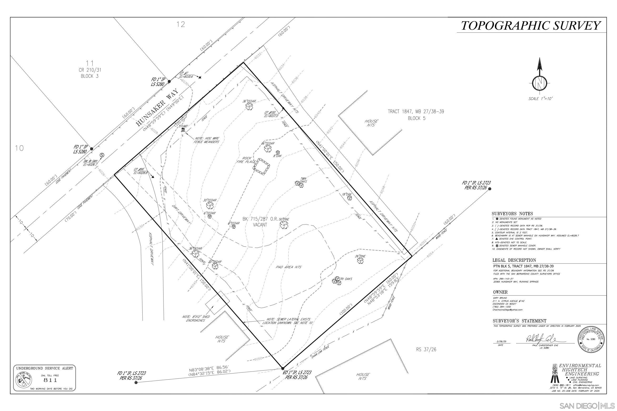
Prime 15,000 SF Mixed-Use Lot in the Heart of Historic Running Springs! Endless possibilities await with this rare mixed-use property located in the charming mountain town of Running Springs - perfectly positioned between Lake Arrowhead and Big Bear. Whether you're dreaming of a mountain getaway, a thriving business, or both, this versatile lot is ready for your vision! Enjoy year-round outdoor adventure with nearby hiking, skiing, fishing, and horseback riding, all surrounded by the natural beauty of the San Bernardino Mountains. Walk to the post office, library, community park, bank, and local restaurants - all just steps away! The property features historic charm with remnants of a 1930s grand stone fireplace - a unique focal point for future development. Recent upgrades including storm drain installation, driveway and upper lot grading, tree trimming and removal, new fencing and gated entry. Water, sewer & electricity are already at the property - just tap in and get started! Mixed-use zoning opens the doo
MLS #
SD250033294
MLS Source
San Diego MLS
Days on Site
157
Development Status
Rough Grade
Fencing
Gate, PartialFencing
Lot Description
Grade - Gently Sloped, Grade - Level
Present Use
Residential
Utilities
Other, Other
HOA Fee
$0
Complex Amenities
None
Zoning
HT/CG-SCp
is in Running Springs, CA 92382. This Land is currently priced at $83,250. This address can also be written as , Running Springs, CA 92382.
©2025 San Diego MLS. All rights reserved. All data, including all measurements and calculations of area, is obtained from various sources and has not been, and will not be, verified by broker or MLS. All information should be independently reviewed and verified for accuracy. Properties may or may not be listed by the office/agent presenting the information. Information provided is for personal, non-commercial use by the viewer and may not be redistributed without explicit authorization from San Diego MLS.
Presently MLSListings.com displays Active, Contingent, Pending, and Recently Sold listings. Recently Sold listings are properties which were sold within the last three years. After that period listings are no longer displayed in MLSListings.com. Pending listings are properties under contract and no longer available for sale. Contingent listings are properties where there is an accepted offer, and seller may be seeking back-up offers. Active listings are available for sale.
This listing information is up-to-date as of October 01, 2025. For the most current information, please contact Marguerite Apostolas, (619) 405-4958