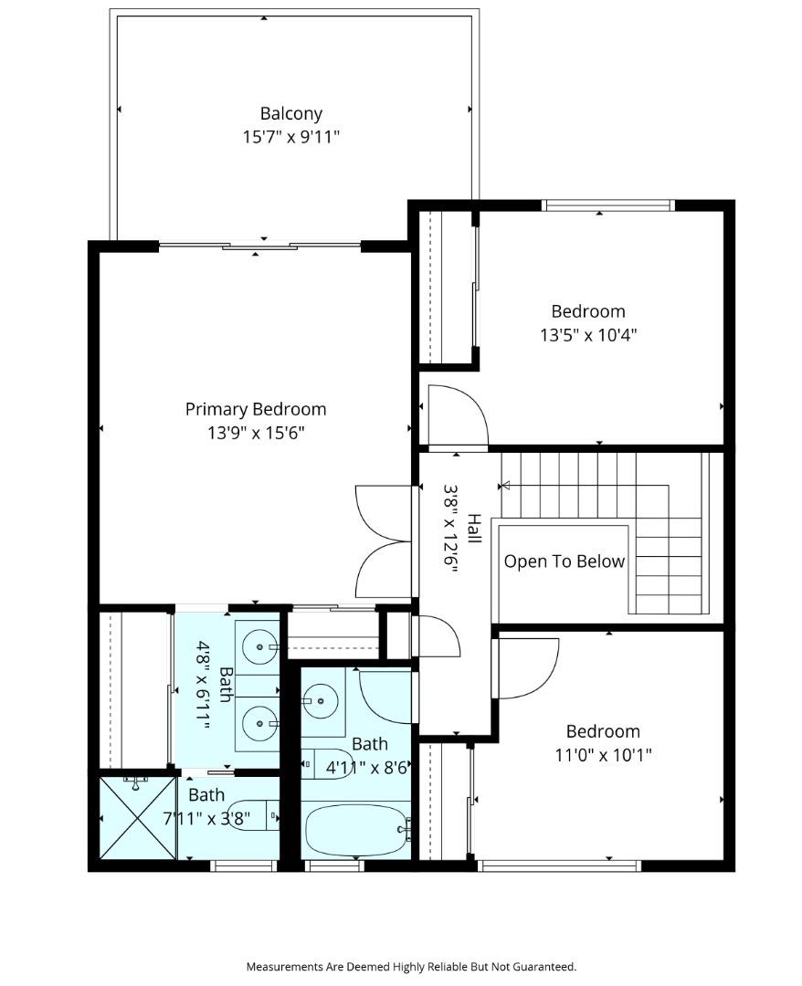
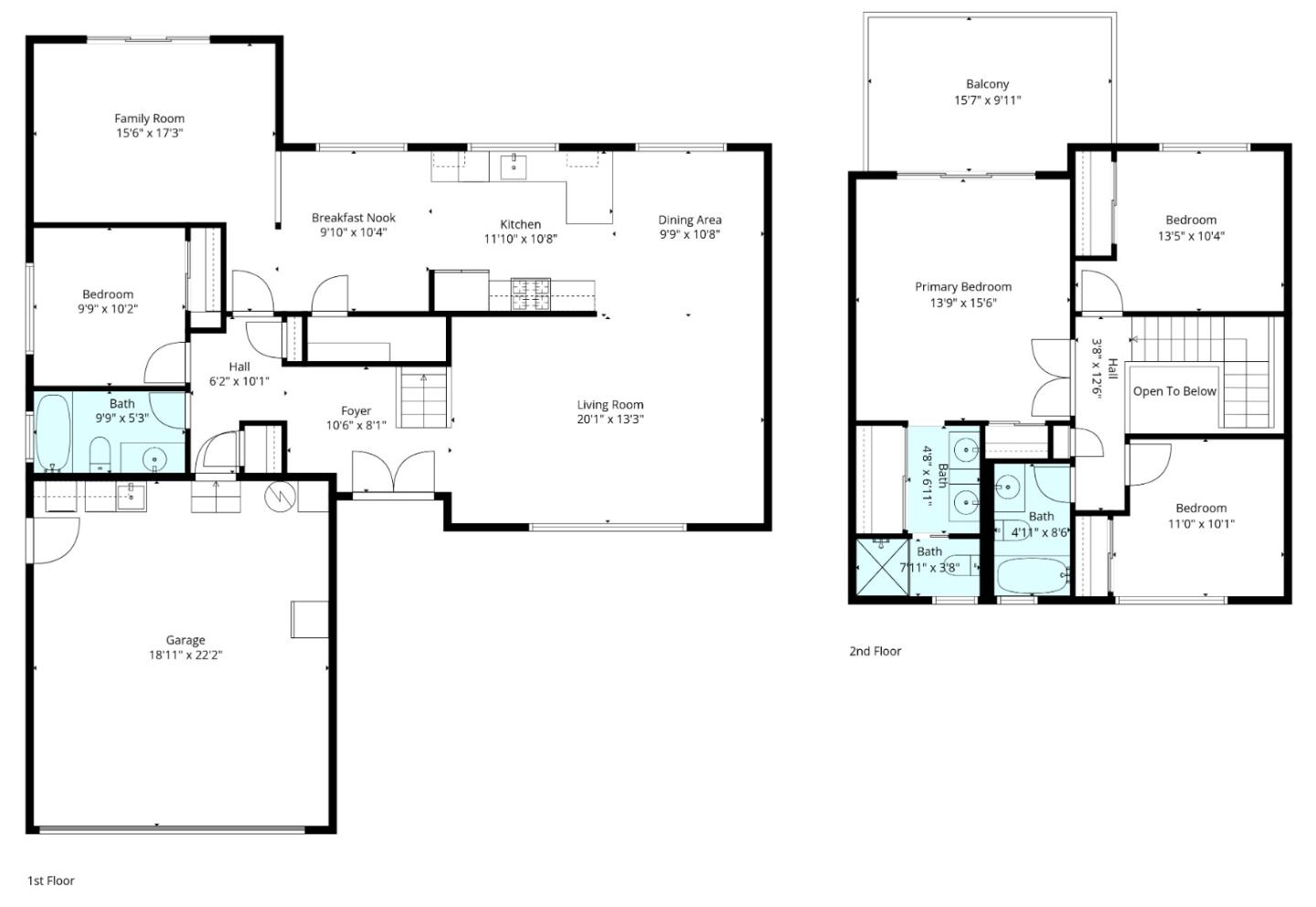
Welcome to this beautifully updated two-story home offering 4 bedrooms and 3 full bathrooms, with a highly desirable first-floor bedroom and full bath, perfect for guests or multi-generational living. With approximately 1,949 sq ft of living space on an expansive nearly 7,400 sq ft lot, the home provides both comfort and room to grow. Recent permitted renovations include a fully remodeled kitchen and a stunning primary bathroom, thoughtfully designed with modern finishes. The home features durable vinyl flooring throughout, creating a clean and cohesive look. A newly installed staircase adds architectural elegance, while skylights fill the interior with abundant natural light. The kitchen is equipped with recently installed SS appliances, quartz counter tops, breakfast bar, ideal for everyday cooking and entertaining. Major systems including heating and cooling have also been upgraded in recent years for improved comfort and efficiency. Step outside to enjoy the charming enclosed front courtyard, beautifully finished with classic brick flooring an inviting and private outdoor space perfect for relaxing or entertaining. Combining tasteful upgrades, functional layout, and a generously sized lot, this home offers a rare opportunity to enjoy comfort, style, and convenience.
MLS #
ML82038194
MLS Source
MLSListings, Inc.
Days on Site
1
Bedrooms
Ground Floor Bedroom
Bathrooms
Shower and Tub, Full on Ground Floor
Appliances
Hood Over Range, Oven Range - Gas, Refrigerator, Washer/Dryer
Dining Room
Breakfast Bar, Breakfast Nook, Dining Area in Living Room, Eat in Kitchen
Family Room
Separate Family Room
Flooring
Vinyl/Linoleum
Laundry
In Garage
Cooling
Central Forced Air
Heating
Central Forced Air, Forced Air
Roof
Composition
Foundation
Concrete Perimeter and Slab
Garage/Parking
Attached Garage, Gate/Door Opener, Garage: 2 Car(s)
Elementary District
San Jose Unified
High School District
San Jose Unified
Sewer
Public Sewer
Water
Public
HOA Fee Frequency
Monthly
Zoning
R1-8
4733 Jarvis Ave is a Single Family Residence in San Jose, CA 95118. This 1,949 square foot property sits on a 7,342 Sq Ft Lot and features 4 bedrooms & 3 full bathrooms. It is currently priced at $1,988,000 and was built in 1966. This address can also be written as 4733 Jarvis Ave, San Jose, CA 95118.
©2026 MLSListings Inc. All rights reserved. All data, including all measurements and calculations of area, is obtained from various sources and has not been, and will not be, verified by broker or MLS. All information should be independently reviewed and verified for accuracy. Properties may or may not be listed by the office/agent presenting the information. Information provided is for personal, non-commercial use by the viewer and may not be redistributed without explicit authorization from MLSListings Inc.
Presently MLSListings.com displays Active, Contingent, Pending, and Recently Sold listings. Recently Sold listings are properties which were sold within the last three years. After that period listings are no longer displayed in MLSListings.com. Pending listings are properties under contract and no longer available for sale. Contingent listings are properties where there is an accepted offer, and seller may be seeking back-up offers. Active listings are available for sale.
This listing information is up-to-date as of March 12, 2026. For the most current information, please contact Harry He, (860) 771-3532