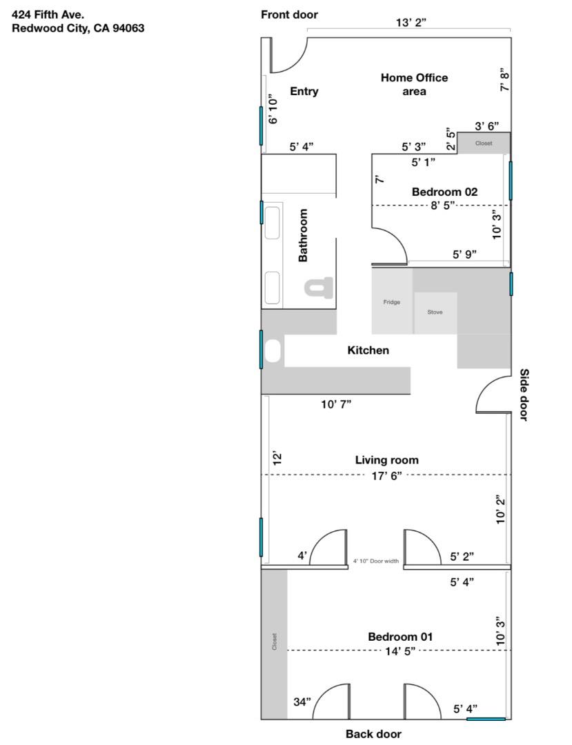
Welcome to 424 Fifth Ave, a beautifully remodeled jewel just steps from vibrant downtown Redwood City.** This charming 2-bedroom home has been thoughtfully updated with permitted renovations, including upgraded electrical, a newer roof, and modern interior finishes throughout. Inside, youll find one of the coziest and most comfortable 1,000 sq. ft. layouts youll ever experience. The light-filled living spaces flow effortlessly, and the kitchen feels surprisingly spacious, perfectly designed for cooking, gathering, and moving around with ease. Every corner of this home feels warm, welcoming, and wonderfully livable. Step outside to enjoy a generous yard ideal for relaxing, entertaining, or future expansion possibilities. And with Caltrain, dining, shopping, parks, and the energy of downtown just moments away, this location offers unmatched walkability and convenience. A rare opportunity to own a truly special home in one of the Peninsulas most desirable neighborhoods.**
MLS #
ML82028298
MLS Source
MLSListings, Inc.
Days on Site
1
Dining Room
Breakfast Bar, Dining Area in Living Room
Family Room
Separate Family Room
Cooling
Multi-Zone, Other
Heating
Heat Pump
Roof
Shingle, Tar/Gravel
Foundation
Concrete Perimeter, Raised
Garage/Parking
Carport, Garage: 1 Car(s)
Elementary District
Redwood City Elementary
High School District
Sequoia Union High
Sewer
Public Sewer
Water
Public
Zoning
R10006
424 5th Ave is a Single Family Residence in Redwood City, CA 94063. This 740 square foot property sits on a 2,999 Sq Ft Lot and features 2 bedrooms & 1 full bathrooms. It is currently priced at $899,950 and was built in 1959. This address can also be written as 424 5th Ave, Redwood City, CA 94063.
©2025 MLSListings Inc. All rights reserved. All data, including all measurements and calculations of area, is obtained from various sources and has not been, and will not be, verified by broker or MLS. All information should be independently reviewed and verified for accuracy. Properties may or may not be listed by the office/agent presenting the information. Information provided is for personal, non-commercial use by the viewer and may not be redistributed without explicit authorization from MLSListings Inc.
Presently MLSListings.com displays Active, Contingent, Pending, and Recently Sold listings. Recently Sold listings are properties which were sold within the last three years. After that period listings are no longer displayed in MLSListings.com. Pending listings are properties under contract and no longer available for sale. Contingent listings are properties where there is an accepted offer, and seller may be seeking back-up offers. Active listings are available for sale.
This listing information is up-to-date as of December 05, 2025. For the most current information, please contact Allen Nazari, (650) 313-7619