First time on the market in 27 years. 3 Cedars is a sun drenched home with sweeping bay views overlooking the established gardens & valley below. Positioned in one of Oakland's best kept neighborhoods of Lincoln Heights & located on a quiet dead end street at the top of the hill near one of Oakland most visible icons the Mormon Temple. The homes large level (6,696sqft lot) has wonderfully maintained front & rear gardens overlooking the entire bay area & cities beyond. The upper level consisted of 2 bedrooms & 1 bath with tub & stall shower, kitchen, dining & living room with access to the rear deck overlooking the bay perfect for evening BBQs & get togethers with family & friends. The lower level offers an office/den/or 3rd bedroom with access to the 2nd bathroom & private entrance. Interior access to the garage & laundry. Fully fenced backyard is perfect for kids, pets & outdoor entertaining/gardening. Endless fruit trees to enjoy throughout the gardens with Citrus, Avocado, Fig & more. Close to the highly rated Sequoia Elementary School, Head-Royce School, Hiking trails, Fruitvale/Rockridge BART stations & all the great restaurants in the Dimond & Laurel Districts. Come make this your forever home!
MLS #
EB41127481
MLS Source
Bridge MLS
Days on Site
9
Bathrooms
Primary - Solid Surface, Primary - Tile, Primary - Tub, Tile, Window
Kitchen
Countertop - Laminate
Appliances
Oven Range, Refrigerator
Fireplace
Living Room
Flooring
Hardwood, Tile, Vinyl
Laundry
In Garage
Cooling
None
Heating
Forced Air, Gas
Roof
Composition
Foundation
Crawl Space
Pool
None, Pool - No
Style
Cape Cod
Garage/Parking
Access - Interior, Attached Garage, Below Building, Garage, Gate/Door Opener, Off-Street Parking, Parking Area, Parking Space(s), Garage: 2 Car(s)
Elementary District
Oakland Unified
High School District
Oakland Unified
Sewer
Public Sewer
Water
Public
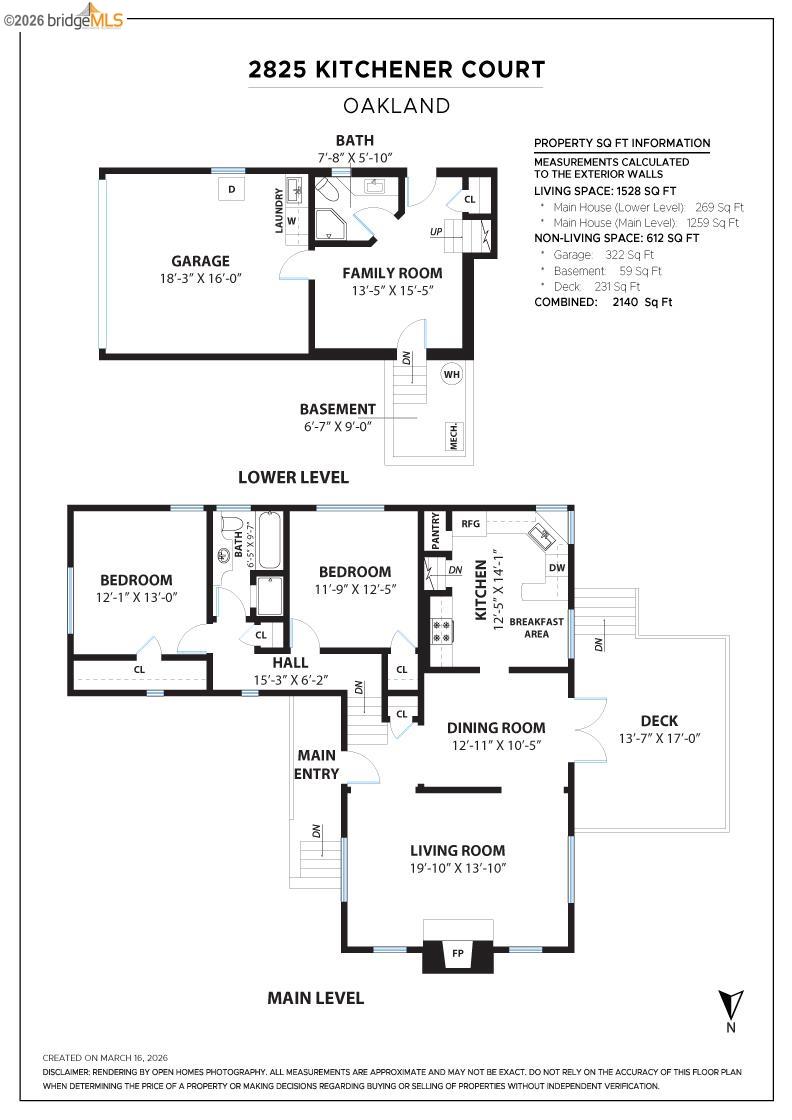
2825 Kitchener Ct is a Single Family Residence in Oakland, CA 94602. This 1,528 square foot property sits on a 6,696 Sq Ft Lot and features 2 bedrooms & 2 full bathrooms. It is currently priced at $899,000 and was built in 1940. This address can also be written as 2825 Kitchener Ct, Oakland, CA 94602.
©2026 Bridge MLS. All rights reserved. All data, including all measurements and calculations of area, is obtained from various sources and has not been, and will not be, verified by broker or MLS. All information should be independently reviewed and verified for accuracy. Properties may or may not be listed by the office/agent presenting the information. Information provided is for personal, non-commercial use by the viewer and may not be redistributed without explicit authorization from Bridge MLS.
Presently MLSListings.com displays Active, Contingent, Pending, and Recently Sold listings. Recently Sold listings are properties which were sold within the last three years. After that period listings are no longer displayed in MLSListings.com. Pending listings are properties under contract and no longer available for sale. Contingent listings are properties where there is an accepted offer, and seller may be seeking back-up offers. Active listings are available for sale.
This listing information is up-to-date as of March 24, 2026. For the most current information, please contact Gaylen Roberts, (510) 761-9536