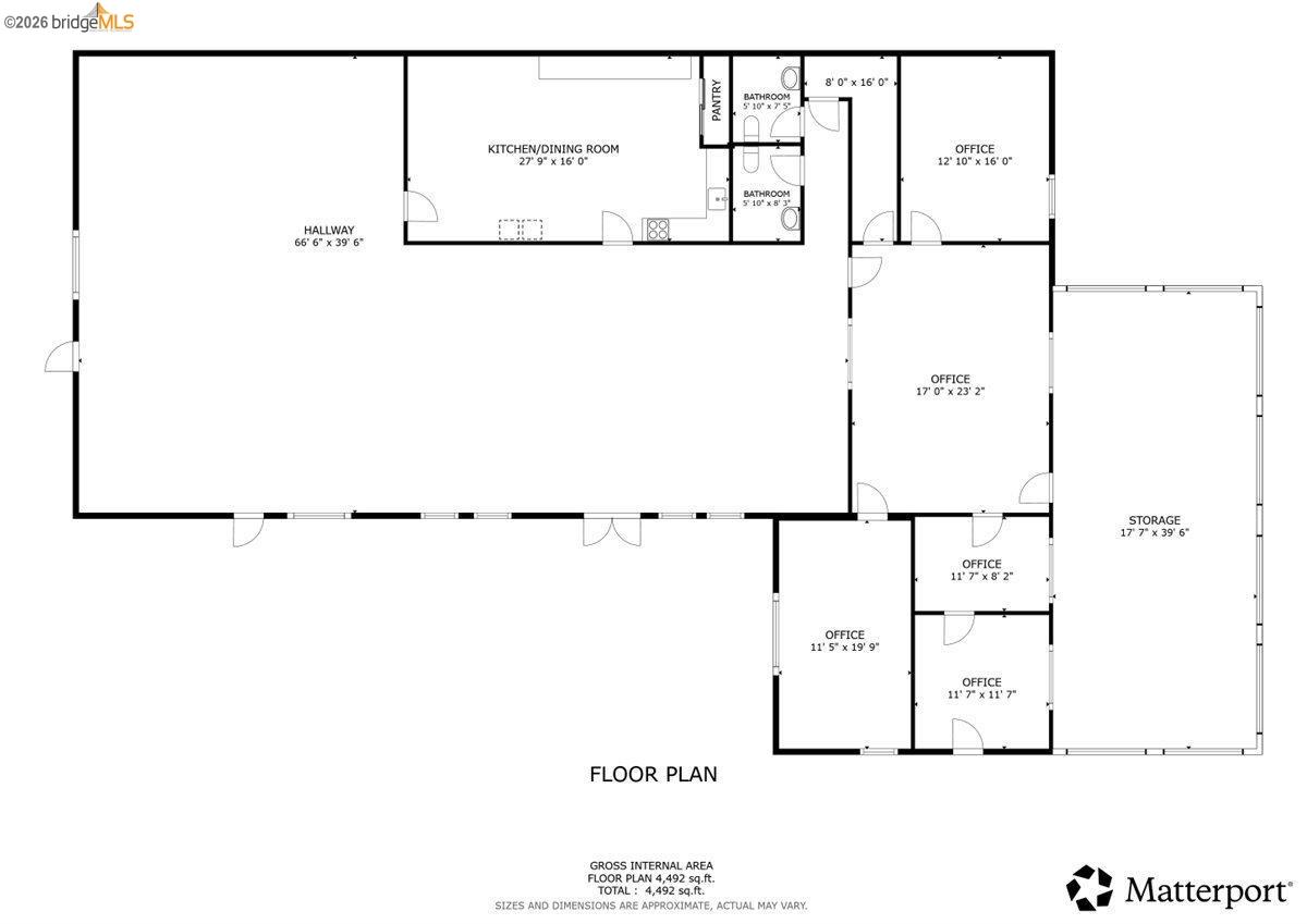
Prime Commercial Opportunity - High Visibility on Tuolumne RoadPosition your business for success with this versatile 4,000 sq ft commercial building situated on .44 acres with premium Tuolumne Road frontage. Offering exceptional high-traffic exposure and C2 zoning, this property has many use options ideal for: retail, office, medical, service-based businesses, churches, charter schools or investment potential. Demonstrated strong rental history. 5% cap rate at asking price and upward rental rate potential. This well-maintained building features a functional open floor plan complemented by five private offices/spaces easily customizable to your needs. Two restrooms, a dedicated kitchen/break area, and a convenient storage room enhance day-to-day operations. Large Parking area and fenced in yard space. Do not bother tenants or go on property without appointment
MLS #
EB41125585
MLS Source
Bridge MLS
Days on Site
1
Parking Spaces
18
Present Use
Office
Roof
Composition
Zoning
C2
14326 Tuolumne Rd is a Commercial Sale in Sonora, CA 95370. This 4,000 square foot property sits on a 0.44 Acres Lot and features – bedrooms & – full bathrooms. It is currently priced at $699,000 and was built in 1982. This address can also be written as 14326 Tuolumne Rd, Sonora, CA 95370.
©2026 Bridge MLS. All rights reserved. All data, including all measurements and calculations of area, is obtained from various sources and has not been, and will not be, verified by broker or MLS. All information should be independently reviewed and verified for accuracy. Properties may or may not be listed by the office/agent presenting the information. Information provided is for personal, non-commercial use by the viewer and may not be redistributed without explicit authorization from Bridge MLS.
Presently MLSListings.com displays Active, Contingent, Pending, and Recently Sold listings. Recently Sold listings are properties which were sold within the last three years. After that period listings are no longer displayed in MLSListings.com. Pending listings are properties under contract and no longer available for sale. Contingent listings are properties where there is an accepted offer, and seller may be seeking back-up offers. Active listings are available for sale.
This listing information is up-to-date as of March 01, 2026. For the most current information, please contact Ryan Scheller, (209) 743-5744