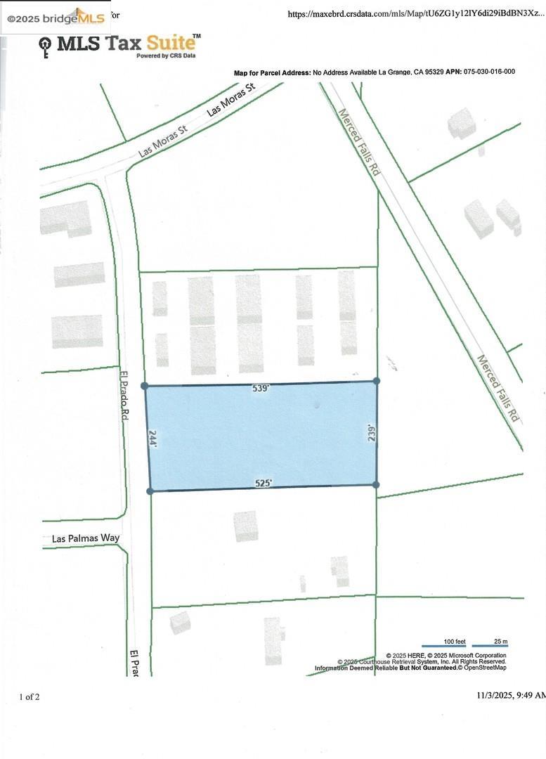
This 3.1-acre commercial property is situated in the vibrant center of La Grange's commercial district, adjacent to a storage facility, offering limitless potential for development. Designated as a Special Commercial property by Tuolumne County, it presents the unique opportunity to construct either a single-family residence or a retail establishment. This property is situated in the foothills, nestled between Lake Don Pedro and Lake McClure, with endless outdoor adventures. The possibilities for this prime location are abundant.
MLS #
EB41117824
MLS Source
Bridge MLS
Days on Site
15
Lot Description
Corners Marked, Grade - Mostly Level, Regular
Utilities
Gas - Not On Site, Electricity Not Available, Water - Public
Water
Public
Zoning
C-S
El Prado Rd is in La Grange, CA 95329. This Land is currently priced at $145,000. This address can also be written as El Prado Rd, La Grange, CA 95329.
©2025 Bridge MLS. All rights reserved. All data, including all measurements and calculations of area, is obtained from various sources and has not been, and will not be, verified by broker or MLS. All information should be independently reviewed and verified for accuracy. Properties may or may not be listed by the office/agent presenting the information. Information provided is for personal, non-commercial use by the viewer and may not be redistributed without explicit authorization from Bridge MLS.
Presently MLSListings.com displays Active, Contingent, Pending, and Recently Sold listings. Recently Sold listings are properties which were sold within the last three years. After that period listings are no longer displayed in MLSListings.com. Pending listings are properties under contract and no longer available for sale. Contingent listings are properties where there is an accepted offer, and seller may be seeking back-up offers. Active listings are available for sale.
This listing information is up-to-date as of November 26, 2025. For the most current information, please contact Brenda Zuniga, (209) 322-5852