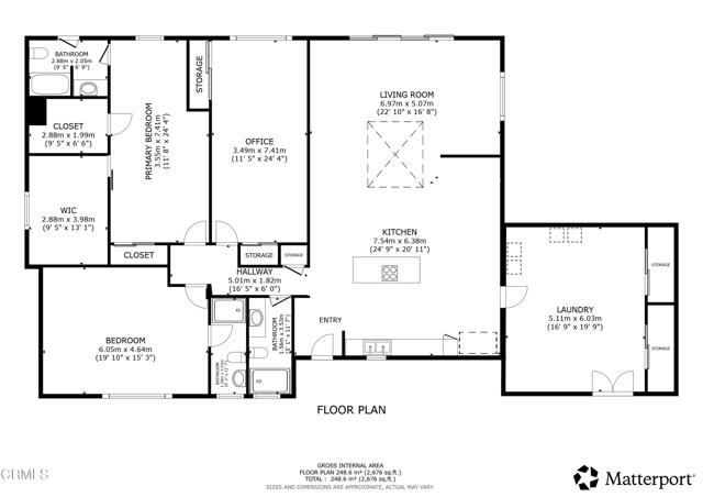
Welcome to this spacious single level 3 bedroom, 3 bath home offering a well designed layout ideal for both everyday living and entertaining. Upon entry, you're greeted by a formal living room that flows seamlessly into the home's heart: the open concept kitchen, dining, and family room.The expansive kitchen features beautiful wood flooring, a large center island with a gas cooktop, eat bar seating, wood cabinetry, a freestanding range and refrigerator, and a built-in dishwasher. The kitchen opens effortlessly to the dining area, which also showcases wood floors and a generous bar, perfect for gatherings. The adjacent family room continues the wood flooring and features sliding glass doors that open to a covered backyard patio, creating an inviting indoor, outdoor living experience.A hallway off the kitchen leads to the private bedroom wing. The first bathroom offers a walk-in shower and convenient access for guests. The spacious primary suite serves as a true retreat, featuring wall to wall carpeting, a ceiling fan, two walk-in closets, and an ensuite bathroom with a bathtub and shower. The second bedroom includes its own ensuite bathroom, wall to wall carpet, and a ceiling fan, while the third bedroom offers wood flooring, a ceiling fan, and two closets for added storage.With i
MLS #
CRV1-35197
MLS Source
California Regional MLS
Days on Site
1
Bedrooms
Ground Floor Bedroom
Appliances
Dishwasher, Oven - Gas, Refrigerator
Fireplace
None
Laundry
In Garage
Cooling
None
Heating
Central Forced Air
Pool
None
Garage/Parking
RV Access, Garage: 2 Car(s)
4056 Cochran St is a Single Family Residence in Simi Valley, CA 93063. This 2,676 square foot property sits on a 10,018 Sq Ft Lot and features 3 bedrooms & 3 full bathrooms. It is currently priced at $925,000 and was built in 1961. This address can also be written as 4056 Cochran St, Simi Valley, CA 93063.
©2026 California Regional MLS. All rights reserved. All data, including all measurements and calculations of area, is obtained from various sources and has not been, and will not be, verified by broker or MLS. All information should be independently reviewed and verified for accuracy. Properties may or may not be listed by the office/agent presenting the information. Information provided is for personal, non-commercial use by the viewer and may not be redistributed without explicit authorization from California Regional MLS.
Presently MLSListings.com displays Active, Contingent, Pending, and Recently Sold listings. Recently Sold listings are properties which were sold within the last three years. After that period listings are no longer displayed in MLSListings.com. Pending listings are properties under contract and no longer available for sale. Contingent listings are properties where there is an accepted offer, and seller may be seeking back-up offers. Active listings are available for sale.
This listing information is up-to-date as of March 17, 2026. For the most current information, please contact Jose Luiz Morales, (805) 228-4671