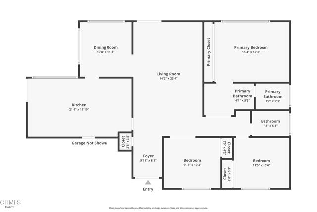
Fixer-Upper Investor Special! Welcome to 2813 Appalachian Ct, a 3-bedroom, 2-bath single-story home in the heart of Westlake Village. This fixer-upper offers incredible potential for investors or buyers ready to add their personal touch and restore it to its former glory. Located just minutes from Russell Park, Westlake Elementary School, and a variety of grocery stores and restaurants, convenience is at your doorstep. Enjoy nearby walking paths, hiking trails, shopping, dining, and services, all within the award-winning Conejo Valley school district. One of the most affordably priced Westlake Village single family detached homes currently available. Don't miss this rare opportunity to create your dream home in a prime Westlake location! Hurry and schedule your private tour before this property is gone!
MLS #
CRV1-33819
MLS Source
California Regional MLS
Kitchen
None
Fireplace
Living Room
Laundry
In Garage
Cooling
None
Heating
Central Forced Air
Pool
None
Garage/Parking
Other, Garage: 2 Car(s)
HOA Fee
$40
HOA Fee Frequency
Annually
Complex Amenities
Other
2813 E Appalachian Ct is a Single Family Residence in Westlake Village, CA 91362. This 1,462 square foot property sits on a 6,969 Sq Ft Lot and features 3 bedrooms & 2 full bathrooms. It is currently priced at $1,105,000 and was built in 1970. This address can also be written as 2813 E Appalachian Ct, Westlake Village, CA 91362.
©2026 California Regional MLS. All rights reserved. All data, including all measurements and calculations of area, is obtained from various sources and has not been, and will not be, verified by broker or MLS. All information should be independently reviewed and verified for accuracy. Properties may or may not be listed by the office/agent presenting the information. Information provided is for personal, non-commercial use by the viewer and may not be redistributed without explicit authorization from California Regional MLS.
Presently MLSListings.com displays Active, Contingent, Pending, and Recently Sold listings. Recently Sold listings are properties which were sold within the last three years. After that period listings are no longer displayed in MLSListings.com. Pending listings are properties under contract and no longer available for sale. Contingent listings are properties where there is an accepted offer, and seller may be seeking back-up offers. Active listings are available for sale.
This listing information is up-to-date as of January 16, 2026. For the most current information, please contact Saul Aguilar, (805) 261-4547