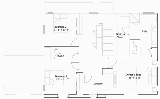
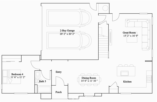
NEW CONSTRUCTION! Includes Upgraded Flooring! This new two-story home features a convenient bedroom on the first floor near an inviting open-concept floorplan shared between the kitchen, living and dining areas. Three additional bedrooms are located on the second floor, including the luxe owner’s suite with a spa-inspired bathroom and walk-in closet. A two-bay garage completes the home. Aviator brings new single-family homes to the Renaissance masterplan, now selling in Rialto, CA. The gated community offers an amenity-rich lifestyle with an onsite swimming pool, playground, dog park, tot lot and much more. Residents will be a short drive from shopping, dining and entertainment options at the Renaissance Marketplace. Renaissance boasts a prime location near the I-210 and I-15 freeways, offering easy commutes to Los Angeles, San Bernardino and other surrounding areas. Plus, the community is conveniently located near top universities such as California State University, San Bernardino (CSUSB) and the University of California, Riverside (UCR), providing excellent opportunities for higher education.
MLS #
CRSW25261348
MLS Source
California Regional MLS
Days on Site
19
Bedrooms
Ground Floor Bedroom, Primary Suite/Retreat
Kitchen
Pantry
Appliances
Garbage Disposal, Microwave, Other, Oven Range - Built-In, Oven Range - Electric
Dining Room
Breakfast Bar, Formal Dining Room
Fireplace
None
Laundry
In Laundry Room, Other, Upper Floor
Cooling
Central Forced Air
Heating
Central Forced Air
Roof
Tile
Foundation
Slab
Pool
Community Facility, In Ground
Garage/Parking
Garage, Garage: 2 Car(s)
Elementary District
Rialto Unified
High School District
Rialto Unified
HOA Fee
$326
HOA Fee Frequency
Monthly
Complex Amenities
Barbecue Area, Club House, Community Pool, Playground
Listing Agent
Todd Myatt
Century 21 Masters
License #: 01395249
Phone: –
Co-Listing Agent
Karen Myatt
Century 21 Masters
License #: 01048979
Phone: –
1710 Eagle Rd is a Condominium in Rialto, CA 92376. This 2,152 square foot property sits on a – Sq Ft Lot and features 4 bedrooms & 3 full bathrooms. It is currently priced at $615,990 and was built in 2026. This address can also be written as 1710 Eagle Rd, Rialto, CA 92376.
©2025 California Regional MLS. All rights reserved. All data, including all measurements and calculations of area, is obtained from various sources and has not been, and will not be, verified by broker or MLS. All information should be independently reviewed and verified for accuracy. Properties may or may not be listed by the office/agent presenting the information. Information provided is for personal, non-commercial use by the viewer and may not be redistributed without explicit authorization from California Regional MLS.
Presently MLSListings.com displays Active, Contingent, Pending, and Recently Sold listings. Recently Sold listings are properties which were sold within the last three years. After that period listings are no longer displayed in MLSListings.com. Pending listings are properties under contract and no longer available for sale. Contingent listings are properties where there is an accepted offer, and seller may be seeking back-up offers. Active listings are available for sale.
This listing information is up-to-date as of December 04, 2025. For the most current information, please contact Todd Myatt