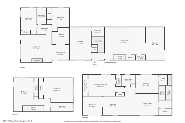
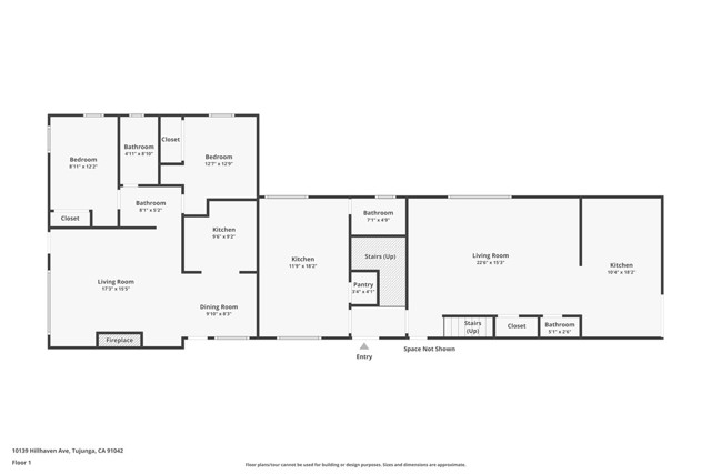
A three unit building in great location consisting of one two bedroom one bath front house, currently leased @ market rent: see attached rent roll, and two large 2 bedrooms, 1 and 1/2 bath units, currently vacant. There is also a single garage converted into living space, as well as a storage room with a kitchenette and half bath. Property needs TLC, but offers lots of potential. Zoned R3, property offers a development opportunity as well! Buyer to verify all info. Come see this great investment opportunity! Live in one unit and enjoy the benefits of income from the other units.
MLS #
CRSR25261621
MLS Source
California Regional MLS
Days on Site
17
Laundry
Community Facility
Pool
None
Garage/Parking
Garage: 0 Car(s)
Water
Other
HOA Fee
$0
| # Buildings | # Leased Units | # Total Units |
|---|---|---|
| 2 | 4 | 4 |
| Unit # | Sq Ft | Beds | Baths | Rent |
|---|---|---|---|---|
| 1 | 950 | – | 0/0 | – |
10139 Hillhaven Ave is a Residential Income in Tujunga, CA 91042. This – square foot property sits on a 8,137 Sq Ft Lot and features – bedrooms & – full bathrooms. It is currently priced at $1,249,000 and was built in 1949. This address can also be written as 10139 Hillhaven Ave, Tujunga, CA 91042.
©2025 California Regional MLS. All rights reserved. All data, including all measurements and calculations of area, is obtained from various sources and has not been, and will not be, verified by broker or MLS. All information should be independently reviewed and verified for accuracy. Properties may or may not be listed by the office/agent presenting the information. Information provided is for personal, non-commercial use by the viewer and may not be redistributed without explicit authorization from California Regional MLS.
Presently MLSListings.com displays Active, Contingent, Pending, and Recently Sold listings. Recently Sold listings are properties which were sold within the last three years. After that period listings are no longer displayed in MLSListings.com. Pending listings are properties under contract and no longer available for sale. Contingent listings are properties where there is an accepted offer, and seller may be seeking back-up offers. Active listings are available for sale.
This listing information is up-to-date as of November 25, 2025. For the most current information, please contact Rachael Hughel