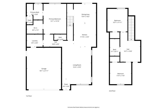
Welcome to 6033 Pentz Road, a beautifully designed Paradise retreat offering space, comfort, and room to breathe on a generous 0.62-acre parcel. With 3 bedrooms, 3 bathrooms, 1,785 sq. ft. of living space, and a floor plan that smartly separates gathering areas from private ones, this home delivers the perfect blend of functionality and charm. Step inside and you’re greeted with an open, airy layout featuring durable LVP flooring, recessed lighting, and plenty of natural sunshine. The living and dining areas flow easily into the kitchen, making this main level an ideal space for hosting friends, relaxing with family, or simply enjoying daily life. The kitchen is beautifully equipped with granite countertops, a gas stove, stainless steel appliances, an island, and a pantry tucked under the stairs, giving you storage exactly where you need it. Just off the main living spaces, the downstairs primary suite offers welcome convenience and privacy. This generous bedroom features a large walk-in closet and an ensuite with dual sinks, a soaking tub, and a step-in shower with a striking rock and tile surround. You’ll also find a well-placed half bath on the main level, perfect for guests. Upstairs, two additional bedrooms, a full bathroom, and a loft/bonus space create a cozy, separate win
MLS #
CRSN25270324
MLS Source
California Regional MLS
Days on Site
0
Bedrooms
Ground Floor Bedroom, Primary Suite/Retreat
Kitchen
Exhaust Fan, Pantry
Appliances
Dishwasher, Exhaust Fan, Garbage Disposal, Microwave, Other, Oven - Gas, Oven - Self Cleaning, Oven Range, Oven Range - Gas
Dining Room
Breakfast Bar, In Kitchen, Other
Fireplace
None
Flooring
Laminate
Laundry
In Laundry Room, Other
Cooling
Ceiling Fan, Central Forced Air
Heating
Central Forced Air
Roof
Composition
Foundation
Slab
Pool
None
Garage/Parking
Garage, Gate/Door Opener, Other, Garage: 2 Car(s)
Elementary District
Paradise Unified
High School District
Paradise Unified
Sewer
Septic Tank
Water
Other
HOA Fee
$0
6033 Pentz Rd is a Single Family Residence in Paradise, CA 95969. This 1,785 square foot property sits on a 0.62 Acres Lot and features 3 bedrooms & 2 full and 1 partial bathrooms. It is currently priced at $450,000 and was built in 2024. This address can also be written as 6033 Pentz Rd, Paradise, CA 95969.
©2025 California Regional MLS. All rights reserved. All data, including all measurements and calculations of area, is obtained from various sources and has not been, and will not be, verified by broker or MLS. All information should be independently reviewed and verified for accuracy. Properties may or may not be listed by the office/agent presenting the information. Information provided is for personal, non-commercial use by the viewer and may not be redistributed without explicit authorization from California Regional MLS.
Presently MLSListings.com displays Active, Contingent, Pending, and Recently Sold listings. Recently Sold listings are properties which were sold within the last three years. After that period listings are no longer displayed in MLSListings.com. Pending listings are properties under contract and no longer available for sale. Contingent listings are properties where there is an accepted offer, and seller may be seeking back-up offers. Active listings are available for sale.
This listing information is up-to-date as of December 04, 2025. For the most current information, please contact Alisha Simpkins