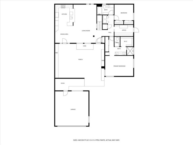
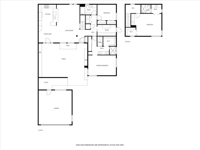
Near the opening to Edna Valley, within the “Flower” streets is this well-located generous 3 bedroom 3 bath home with recent improvements. Substantially single-level, the multiple updates include areas of kitchen, living area and dining, primary bedroom suite, second bedroom, as well as efficient office area. Upstairs is a third bedroom, but also ensuite with a walk-in closet, and built-in cabinetry with beverage refrigerator. The semi-private expansive entry patio with decorative gate is an entertainer’s retreat. Custom landscape design and plantings create a lovely setting, starting at the street. Citrus trees are a welcome feature too! Fully-owned solar installed in 2013, system is 3.57 kW. Mini-split HVAC systems in several areas of home provide both heat and cooling comfort. Location is ideal for access to sought-after schools, proximity to recreation and open space. Square footage source is County Records, but bedroom and bathroom count is different than public records.
MLS #
CRSC26046756
MLS Source
California Regional MLS
Days on Site
0
Bedrooms
Ground Floor Bedroom, Primary Suite/Retreat - 2+
Kitchen
Exhaust Fan
Appliances
Dishwasher, Exhaust Fan, Microwave, Oven Range - Gas, Refrigerator, Dryer, Washer
Dining Room
Other
Fireplace
None
Laundry
Hookup - Gas Dryer
Cooling
Central Forced Air - Electric
Heating
Electric, Forced Air, Gas, Heat Pump
Roof
Composition
Foundation
Slab
Pool
None
Garage/Parking
Garage, Other, Garage: 2 Car(s)
Elementary District
San Luis Coastal Unified
High School District
San Luis Coastal Unified
HOA Fee Frequency
Monthly
Complex Amenities
Other
3930 Hollyhock Way is a Single Family Residence in San Luis Obispo, CA 93401. This 1,981 square foot property sits on a 6,000 Sq Ft Lot and features 3 bedrooms & 3 full bathrooms. It is currently priced at $1,360,000 and was built in 1986. This address can also be written as 3930 Hollyhock Way, San Luis Obispo, CA 93401.
©2026 California Regional MLS. All rights reserved. All data, including all measurements and calculations of area, is obtained from various sources and has not been, and will not be, verified by broker or MLS. All information should be independently reviewed and verified for accuracy. Properties may or may not be listed by the office/agent presenting the information. Information provided is for personal, non-commercial use by the viewer and may not be redistributed without explicit authorization from California Regional MLS.
Presently MLSListings.com displays Active, Contingent, Pending, and Recently Sold listings. Recently Sold listings are properties which were sold within the last three years. After that period listings are no longer displayed in MLSListings.com. Pending listings are properties under contract and no longer available for sale. Contingent listings are properties where there is an accepted offer, and seller may be seeking back-up offers. Active listings are available for sale.
This listing information is up-to-date as of April 01, 2026. For the most current information, please contact Dawna Davies, (805) 544-5889