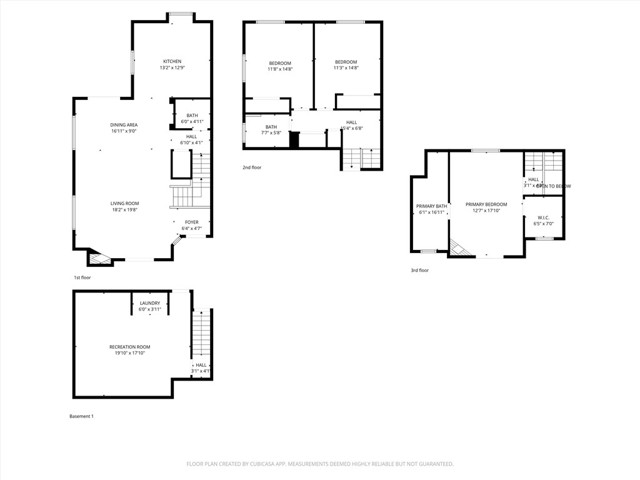
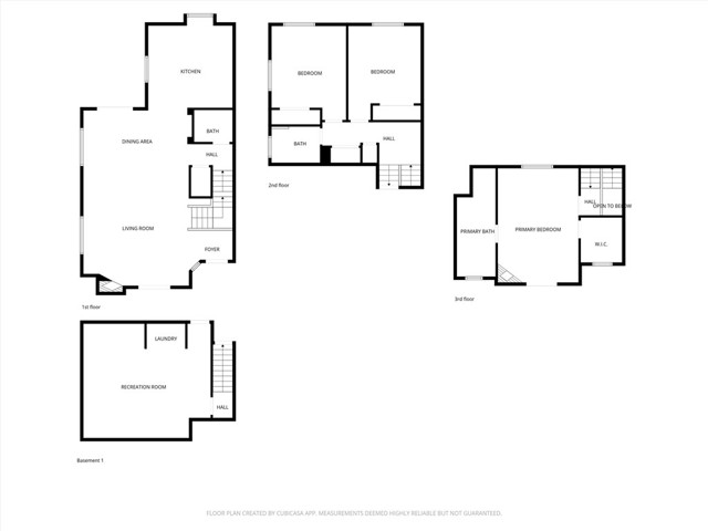
Welcome to 200 N Catalina Avenue #F, a beautifully updated coastal residence in the heart of South Redondo Beach offering stunning ocean views, exceptional walkability, and spacious living. This light-filled home features 2,073 square feet of living space with a bonus den, ideal for a home office, media room, gym, kids play room, or guest space. Freshly updated with new luxury vinyl flooring and interior paint, the home blends modern comfort with a relaxed beachside lifestyle. Enjoy ocean breezes and scenic views while living just steps from the beach, the Redondo Beach Pier, and beloved local favorites including Old Tony's, California Surf Club, and R/10 Social House along with a vibrant mix of shops and cafés like The Boy & The Bear and Klatch—all easily walkable. The open and functional layout offers generous living areas, well-sized bedrooms, and seamless indoor-outdoor living perfect for entertaining or everyday coastal living. Located within highly regarded Redondo Beach schools, this home combines location, space, and lifestyle—an increasingly rare opportunity west of PCH.
MLS #
CRSB26006532
MLS Source
California Regional MLS
Days on Site
8
Rent Includes
None
Bedrooms
Primary Suite/Retreat, Other
Appliances
Dishwasher, Microwave, Other, Refrigerator, Dryer, Washer
Dining Room
Formal Dining Room
Fireplace
Living Room
Cooling
Central Forced Air
Heating
Central Forced Air, Fireplace
Roof
Tile
Pool
None
Style
Traditional
Garage/Parking
Garage, Guest / Visitor Parking, Side By Side, Garage: 2 Car(s)
Elementary District
Redondo Beach Unified
High School District
Redondo Beach Unified
Listing Agent
Allison Kosik
Compass
License #: 02150962
Phone: –
Co-Listing Agent
Jesse Dougherty
Compass
License #: 01949609
Phone: (310) 995-4475
200 N Catalina Ave F is a Condominium for Rent in Redondo Beach, CA 90277. This 2,073 square foot property sits on a 0.701 Acres Lot and features 3 bedrooms & 3 full bathrooms. It is currently priced at $7,700 and was built in 1991. This address can also be written as 200 N Catalina Ave #F, Redondo Beach, CA 90277.
©2026 California Regional MLS. All rights reserved. All data, including all measurements and calculations of area, is obtained from various sources and has not been, and will not be, verified by broker or MLS. All information should be independently reviewed and verified for accuracy. Properties may or may not be listed by the office/agent presenting the information. Information provided is for personal, non-commercial use by the viewer and may not be redistributed without explicit authorization from California Regional MLS.
Presently MLSListings.com displays Active, Contingent, Pending, and Recently Sold listings. Recently Sold listings are properties which were sold within the last three years. After that period listings are no longer displayed in MLSListings.com. Pending listings are properties under contract and no longer available for sale. Contingent listings are properties where there is an accepted offer, and seller may be seeking back-up offers. Active listings are available for sale.
This listing information is up-to-date as of January 15, 2026. For the most current information, please contact Allison Kosik