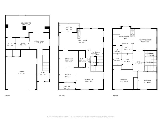
Discover COASTAL living in a PRIME LOCATION in this 2076 sq ft 4 bedrooms/4 bathrooms TRI-LEVEL contemporary townhome. This MANHATTAN BEACH ADJACENT CORNER UNIT is nestled behind gates offering a quiet oasis for residents. Arrive home through your private two car garage featuring ample storage, complemented by an EXCLUSIVE PARKING PAD providing space for a 3rd vehicle. On the GROUND LEVEL, step into a multi-purpose GUEST SUITE that doubles as a HOME OFFICE or Mother-In-Laws quarters, offering an enclosed bathroom with shower and seamless access to a gated patio moments from the community pool. As an END UNIT, the home provides 8 ADDITIONAL WINDOWS thoughtfully distributed across all 3 levels, along with SKYLIGHTS, filling the interior with natural light throughout. The floorplan on the second level is the heart of the home. Enjoy a formal LIVING ROOM with a cozy FIREPLACE. A separate DINING ROOM with a BACK-FACING BALCONY that overlooks palm trees and pool views. An OVERSIZED KITCHEN with nook, STAINLESS STEEL APPLIANCES, GRANITE COUNTERTOPS, and plentiful cabinetry makes this home a dream for anyone who loves to cook! The kitchen flows to the FAMILY ROOM, creating an inviting space for gatherings, with a FRENCH DOOR extending the living space onto a FRONT-FACING BALCONY. A conve
MLS #
CRSB26004461
MLS Source
California Regional MLS
Days on Site
19
Bedrooms
Ground Floor Bedroom, Primary Suite/Retreat, Other
Bathrooms
Jack and Jill
Kitchen
Exhaust Fan
Appliances
Dishwasher, Exhaust Fan, Ice Maker, Microwave, Other, Oven - Gas, Oven - Self Cleaning, Refrigerator
Dining Room
Breakfast Bar, Breakfast Nook, Formal Dining Room, In Kitchen, Other
Family Room
Other
Fireplace
Gas Burning, Living Room, Primary Bedroom, Other, Two-Way
Flooring
Laminate
Laundry
Hookup - Gas Dryer, In Laundry Room, Other, Upper Floor
Cooling
Ceiling Fan, Central Forced Air
Heating
Central Forced Air
Roof
Tile
Foundation
Slab
Pool
Community Facility, Fenced, Heated - Solar, In Ground
Style
Contemporary, Mediterranean, Spanish
Garage/Parking
Garage, Other, Private / Exclusive, Garage: 2 Car(s)
Water
Other
HOA Fee
$420
HOA Fee Frequency
Monthly
Complex Amenities
Community Pool
5485 Marine is a Townhouse in Hawthorne, CA 90260. This 2,076 square foot property sits on a 2.173 Acres Lot and features 4 bedrooms & 3 full and 1 partial bathrooms. It is currently priced at $1,199,000 and was built in 1994. This address can also be written as 5485 Marine, Hawthorne, CA 90260.
©2026 California Regional MLS. All rights reserved. All data, including all measurements and calculations of area, is obtained from various sources and has not been, and will not be, verified by broker or MLS. All information should be independently reviewed and verified for accuracy. Properties may or may not be listed by the office/agent presenting the information. Information provided is for personal, non-commercial use by the viewer and may not be redistributed without explicit authorization from California Regional MLS.
Presently MLSListings.com displays Active, Contingent, Pending, and Recently Sold listings. Recently Sold listings are properties which were sold within the last three years. After that period listings are no longer displayed in MLSListings.com. Pending listings are properties under contract and no longer available for sale. Contingent listings are properties where there is an accepted offer, and seller may be seeking back-up offers. Active listings are available for sale.
This listing information is up-to-date as of January 16, 2026. For the most current information, please contact Lisa Scott