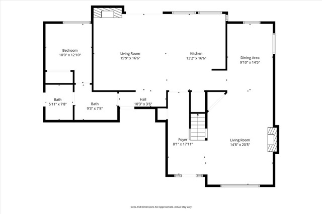
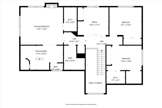
Welcome to this beautiful pool home set on an impressive lot in Mesa Verde’s highly sought-after “Upper Birds” neighborhood. The moment you arrive, the home’s warm exterior palette, beautiful landscaping, and three-car garage create a striking first impression. Step inside to a bright, welcoming foyer anchored by a beautifully detailed wood staircase. To the right, the formal living room—with its inviting fireplace—flows seamlessly into the formal dining space, offering an ideal layout for hosting. The heart of the home is the completely reimagined kitchen, showcasing white quartz countertops, a generous center island, custom cabinetry, and stainless steel appliances. The kitchen opens to a comfortable family room, giving you the perfect spot for casual gatherings. A standout feature is the impressive Butler’s pantry connecting the main living space to a convenient downstairs bedroom and full bathroom—an excellent setup for guests or extended family. Upstairs, you’ll find two secondary bedrooms, a stylishly updated bathroom, and a spacious open loft that provides incredible versatility and could easily be converted to a fifth bedroom. The primary suite is exceptionally large, offering vaulted ceilings, beautiful floors, a cozy second fireplace, and a walk-in closet. The spa-inspi
MLS #
CRPW25276807
MLS Source
California Regional MLS
Days on Site
0
Bedrooms
Ground Floor Bedroom, Primary Suite/Retreat
Kitchen
Pantry
Appliances
Oven - Gas, Oven Range - Gas
Dining Room
In Kitchen
Family Room
Other
Fireplace
Family Room, Living Room
Laundry
In Garage
Cooling
Central Forced Air
Heating
Central Forced Air
Roof
Composition
Foundation
Slab
Pool
Pool - Yes, Spa - Private
Garage/Parking
Other, Garage: 3 Car(s)
Elementary District
Newport-Mesa Unified
High School District
Newport-Mesa Unified
HOA Fee
$0
2761 Bunting is a Single Family Residence in Costa Mesa, CA 92626. This 2,678 square foot property sits on a 7,200 Sq Ft Lot and features 5 bedrooms & 3 full bathrooms. It is currently priced at $2,899,000 and was built in 1969. This address can also be written as 2761 Bunting, Costa Mesa, CA 92626.
©2025 California Regional MLS. All rights reserved. All data, including all measurements and calculations of area, is obtained from various sources and has not been, and will not be, verified by broker or MLS. All information should be independently reviewed and verified for accuracy. Properties may or may not be listed by the office/agent presenting the information. Information provided is for personal, non-commercial use by the viewer and may not be redistributed without explicit authorization from California Regional MLS.
Presently MLSListings.com displays Active, Contingent, Pending, and Recently Sold listings. Recently Sold listings are properties which were sold within the last three years. After that period listings are no longer displayed in MLSListings.com. Pending listings are properties under contract and no longer available for sale. Contingent listings are properties where there is an accepted offer, and seller may be seeking back-up offers. Active listings are available for sale.
This listing information is up-to-date as of December 25, 2025. For the most current information, please contact Kip Hancock