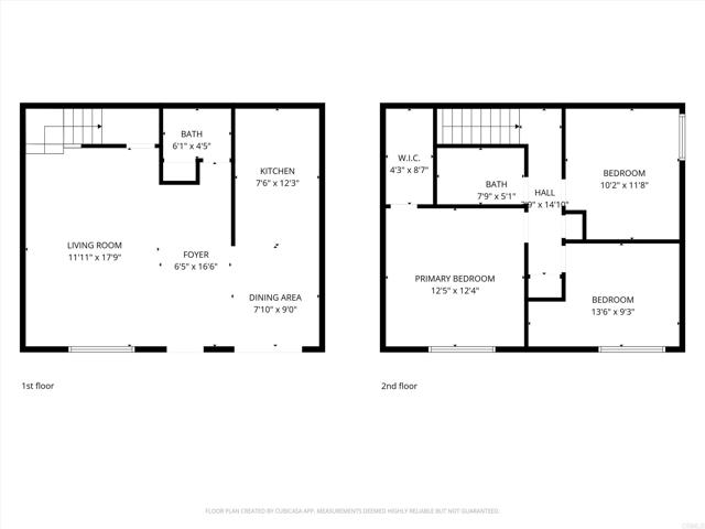
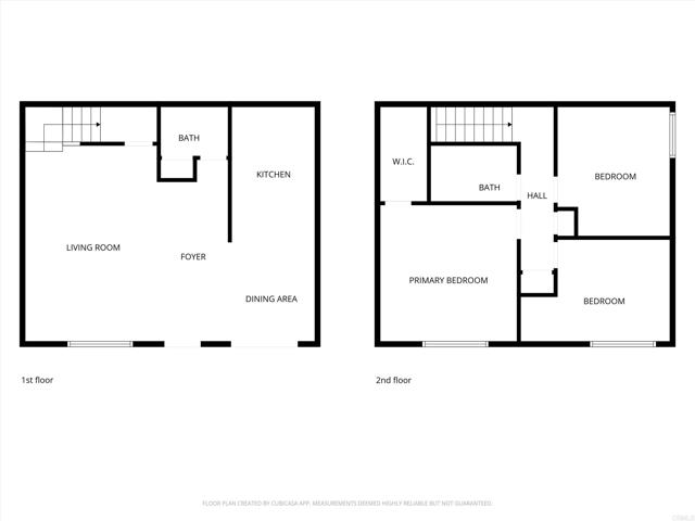
LOCATION *** LOCATION *** LOCATION !!!! **Clean & Well maintain property in the heart of Rancho Penasquitos neigborhood**. NO Neighbor on top or below ** Open floor plan between living room, dining and kitchen area. Tiles flooring on the first floor for easy cleaning. Great size patio for relaxing and BBQ galore that can be accessed directly from the dining area. Laundry area inside the unit. Luxury vinyl plank flooring through the stairs and second floor hallway. Double Panel Windows and Central AC. Great sized bedrooms with big windows. Recently, upgrade bathroom on the second floor **Easy access Freeway 56 and I-15** Groceries, restaurant, Costco, Home Depot, Trader Joe etc. *** Poway school district***. One detached garage and one uncovered parking** ABSOLUTELY MUST SEE PROPERTY in 92129 !!!!
MLS #
CRPTP2600942
MLS Source
California Regional MLS
Days on Site
2
Bedrooms
Other
Appliances
Other, Dryer, Washer
Family Room
Other
Fireplace
None
Laundry
In Kitchen, Other
Cooling
Central Forced Air, Central Forced Air - Electric, Whole House Fan
Pool
Community Facility, Fenced
Garage/Parking
Garage: 1 Car(s)
Elementary District
Poway Unified
High School District
Poway Unified
HOA Fee
$459
HOA Fee Frequency
Monthly
Complex Amenities
Community Pool
Zoning
R-1:SINGLE FAM-RES
9908 Caminito Bolsa is a Condominium in San Diego, CA 92129. This 1,215 square foot property sits on a 5 Sq Ft Lot and features 3 bedrooms & 1 full and 1 partial bathrooms. It is currently priced at $669,000 and was built in 1973. This address can also be written as 9908 Caminito Bolsa, San Diego, CA 92129.
©2026 California Regional MLS. All rights reserved. All data, including all measurements and calculations of area, is obtained from various sources and has not been, and will not be, verified by broker or MLS. All information should be independently reviewed and verified for accuracy. Properties may or may not be listed by the office/agent presenting the information. Information provided is for personal, non-commercial use by the viewer and may not be redistributed without explicit authorization from California Regional MLS.
Presently MLSListings.com displays Active, Contingent, Pending, and Recently Sold listings. Recently Sold listings are properties which were sold within the last three years. After that period listings are no longer displayed in MLSListings.com. Pending listings are properties under contract and no longer available for sale. Contingent listings are properties where there is an accepted offer, and seller may be seeking back-up offers. Active listings are available for sale.
This listing information is up-to-date as of February 08, 2026. For the most current information, please contact Diana Phan, (619) 246-5632