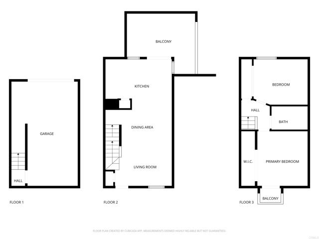
Prime location, great HOA amenities, all at an affordable price. This North Rim townhome is tucked into the hills of Linda vista overlooking Fashion Valley and Riverwalk golf course. With most of the square footage invested in the living, dining, and kitchen, that flows into a private patio, this home lives much larger than the square footage shows. Upstairs you will find the bedrooms divided by a shared bathroom. The primary features its own balcony. If you were to access the home from the garage, you will find the laundry there as well as plenty of storage and rack space. A short walk you will find yourself at the resort style pool area complete with BBQs, lounging area and a spa. If that wasn't enough the clubhouse has its own kitchen, dining, sunken living room, pool table area, and loft with a ping pong table. From table tennis to actual tennis, this community has full size tennis courts as well. With a fresh coat of paint and new carpet, this townhome is ready for you to call it your own. Come see it for yourself today!
MLS #
CRPTP2508309
MLS Source
California Regional MLS
Days on Site
31
Bedrooms
Other
Family Room
Other
Fireplace
None
Laundry
In Garage
Cooling
None
Heating
Central Forced Air
Pool
Community Facility
Garage/Parking
Garage: 1 Car(s)
Elementary District
San Diego Unified
High School District
San Diego Unified
Water
Private
HOA Fee
$495
HOA Fee Frequency
Monthly
Complex Amenities
Barbecue Area, Community Pool, Game Room
Zoning
R-1:SINGLE FAM-RES
1222 River Glen Rw 65 is a Townhouse in San Diego, CA 92111. This 840 square foot property sits on a 4.51 Acres Lot and features 2 bedrooms & 1 full bathrooms. It is currently priced at $599,000 and was built in 1980. This address can also be written as 1222 River Glen Rw #65, San Diego, CA 92111.
©2025 California Regional MLS. All rights reserved. All data, including all measurements and calculations of area, is obtained from various sources and has not been, and will not be, verified by broker or MLS. All information should be independently reviewed and verified for accuracy. Properties may or may not be listed by the office/agent presenting the information. Information provided is for personal, non-commercial use by the viewer and may not be redistributed without explicit authorization from California Regional MLS.
Presently MLSListings.com displays Active, Contingent, Pending, and Recently Sold listings. Recently Sold listings are properties which were sold within the last three years. After that period listings are no longer displayed in MLSListings.com. Pending listings are properties under contract and no longer available for sale. Contingent listings are properties where there is an accepted offer, and seller may be seeking back-up offers. Active listings are available for sale.
This listing information is up-to-date as of November 10, 2025. For the most current information, please contact Steven Sladek, (619) 672-4747