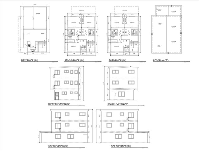
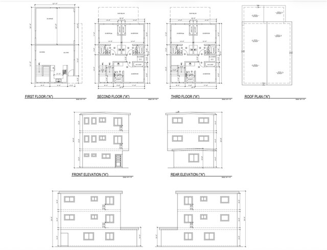
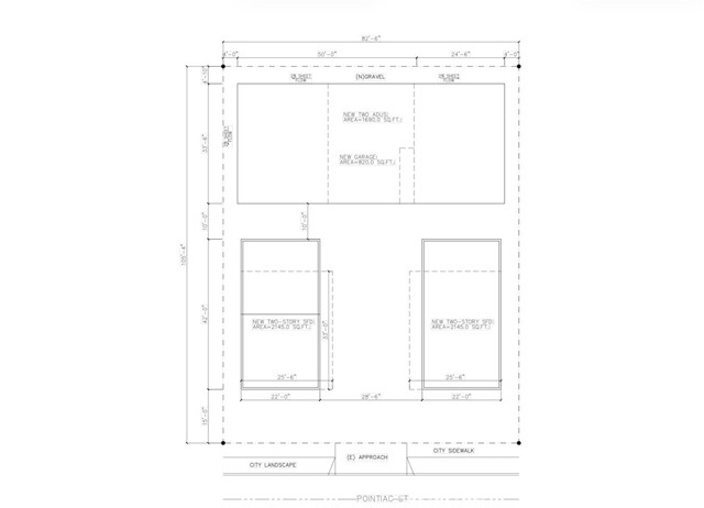
High-density residential development opportunity featuring four units, suitable for the construction of up to 18 bedrooms and 18 bathrooms, with multiple garages. The proposed project offers a total building area of approximately 6,800 square feet, situated on an approximately 8,800 square-foot lot. Proposed plans are available for review; upon buyer’s approval, plans may be submitted immediately, with an estimated approval timeline of approximately six months, subject to city review and approval. Estimated construction costs are approximately $180 per square foot; please contact the listing agent for additional details. Drive-by viewing only; please do not disturb tenants. Buyer to independently verify all information; seller makes no representations or warranties as to accuracy.
MLS #
CROC26027801
MLS Source
California Regional MLS
Days on Site
0
Bedrooms
Ground Floor Bedroom
Kitchen
Other
Appliances
Built-in BBQ Grill, Dishwasher, Hood Over Range, Microwave, Other, Refrigerator
Dining Room
Dining Area in Living Room
Family Room
Other
Fireplace
Living Room
Laundry
In Garage
Cooling
Ceiling Fan, Central Forced Air
Heating
Central Forced Air
Pool
None
Garage/Parking
Garage, Garage: 2 Car(s)
Elementary District
San Diego Unified
High School District
San Diego Unified
HOA Fee
$0
Listing Agent
Zhu Liu
OFFERI
License #: 02116709
Phone: –
Co-Listing Agent
Zhu Liu
OFFERI
License #: 02116709
Phone: –
6206 Pontiac is a Single Family Residence in San Diego, CA 92115. This 2,152 square foot property sits on a 8,800 Sq Ft Lot and features 3 bedrooms & 1 full and 1 partial bathrooms. It is currently priced at $2,140,000 and was built in 1949. This address can also be written as 6206 Pontiac, San Diego, CA 92115.
©2026 California Regional MLS. All rights reserved. All data, including all measurements and calculations of area, is obtained from various sources and has not been, and will not be, verified by broker or MLS. All information should be independently reviewed and verified for accuracy. Properties may or may not be listed by the office/agent presenting the information. Information provided is for personal, non-commercial use by the viewer and may not be redistributed without explicit authorization from California Regional MLS.
Presently MLSListings.com displays Active, Contingent, Pending, and Recently Sold listings. Recently Sold listings are properties which were sold within the last three years. After that period listings are no longer displayed in MLSListings.com. Pending listings are properties under contract and no longer available for sale. Contingent listings are properties where there is an accepted offer, and seller may be seeking back-up offers. Active listings are available for sale.
This listing information is up-to-date as of February 06, 2026. For the most current information, please contact Zhu Liu