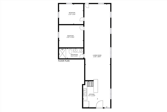
Turn-Key Duplex with Expansion Potential in Prime Costa Mesa 1780 Anaheim Avenue presents a fully remodeled duplex located approximately one mile from Newport Pier in Westside Costa Mesa. Rebuilt in 2021 down to the studs, the property consists of two units offering privacy, modern finishes, and strong income flexibility for owner-occupants or investors. The property includes one 1-bedroom, 1-bath unit and one 2-bedroom, 1-bath unit, totaling approximately 1,600 square feet of living space on an oversized 8,000 square foot lot. The large lot provides future development potential, with the ability to expand the existing square footage and explore the addition of a third unit, subject to buyer verification and local approvals. Renovations completed in 2021 include new exterior siding, dual-pane windows, vinyl plank flooring, baseboards, recessed lighting, fresh interior and exterior paint, and fully updated kitchens with custom cabinetry, countertops, appliances, and floating shelving. Bathrooms feature updated vanities, showers, and fixtures. Each unit is equipped with ductless Daikin air conditioning and individual 100-amp sub-panels. Exterior features include two private driveways with parking for up to six vehicles, motorized vinyl gates, gated entries, security cam
MLS #
CROC25279423
MLS Source
California Regional MLS
Days on Site
0
Appliances
Dishwasher, Garbage Disposal, Microwave, Other, Oven - Gas, Oven Range - Gas
Flooring
Laminate
Laundry
Community Facility
Heating
Heat Pump
Roof
Composition
Foundation
Raised
Pool
None
Style
Cottage, Craftsman
Garage/Parking
Assigned Spaces, Gate/Door Opener, Off-Street Parking, Other, Parking Area, Private / Exclusive, RV Access, RV Possible, Garage: 0 Car(s)
HOA Fee
$0
| # Buildings | # Leased Units | # Total Units |
|---|---|---|
| 2 | 2 | 2 |
| Unit # | Sq Ft | Beds | Baths | Rent |
|---|---|---|---|---|
| 1 | 600 | – | 0/0 | – |
| 2 | 1,000 | – | 0/0 | – |
1780 1780 1/2 Anaheim Ave is a Duplex in Costa Mesa, CA 92627. This – square foot property sits on a 6,534 Sq Ft Lot and features – bedrooms & – full bathrooms. It is currently priced at $1,495,000 and was built in 2021. This address can also be written as 1780 1780 1/2 Anaheim Ave, Costa Mesa, CA 92627.
©2025 California Regional MLS. All rights reserved. All data, including all measurements and calculations of area, is obtained from various sources and has not been, and will not be, verified by broker or MLS. All information should be independently reviewed and verified for accuracy. Properties may or may not be listed by the office/agent presenting the information. Information provided is for personal, non-commercial use by the viewer and may not be redistributed without explicit authorization from California Regional MLS.
Presently MLSListings.com displays Active, Contingent, Pending, and Recently Sold listings. Recently Sold listings are properties which were sold within the last three years. After that period listings are no longer displayed in MLSListings.com. Pending listings are properties under contract and no longer available for sale. Contingent listings are properties where there is an accepted offer, and seller may be seeking back-up offers. Active listings are available for sale.
This listing information is up-to-date as of December 26, 2025. For the most current information, please contact David Kline Lovett, (714) 979-9988