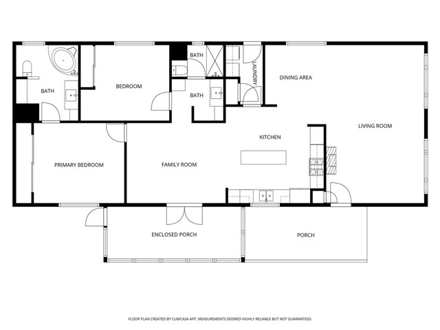
Get a new home for the new year. This 2 bedroom, 2 bath home offers a spacious floorplan and plenty of charm. Fresh paint throughout and new carpeting in the bedrooms. Some windows have been replaced, kitchen and bathrooms have been updated. Enclosed patio area offers access to a garden area with lemon tree. Move in now or bring your vision to customize the home to your taste. With a location near the Irvine Spectrum, Forest Gardens is a vibrant 55+ community offering a pool, spa, gym, billiards room and sparkling lake. The community requires a minimum credit score of 750. See supplements for application.
MLS #
CROC25266361
MLS Source
California Regional MLS
Days on Site
9
Bedrooms
Ground Floor Bedroom
Appliances
Other
Laundry
Other
Foundation
Raised
Pool
Community Facility
Garage/Parking
Other, Garage: 0 Car(s)
Elementary District
Saddleback Valley Unified
High School District
Saddleback Valley Unified
Unit Levels
One
Complex Amenities
Billiard Room, Club House, Community Pool, Conference Facilities, Game Room, Gym / Exercise Facility, Other, Picnic Area
24001 Muirlands 47 is a Manufactured In Park in Lake Forest, CA 92630. This 1,440 square foot property sits on a 74.718 Acres Lot and features 2 bedrooms & 2 full bathrooms. It is currently priced at $199,000 and was built in 1972. This address can also be written as 24001 Muirlands #47, Lake Forest, CA 92630.
©2025 California Regional MLS. All rights reserved. All data, including all measurements and calculations of area, is obtained from various sources and has not been, and will not be, verified by broker or MLS. All information should be independently reviewed and verified for accuracy. Properties may or may not be listed by the office/agent presenting the information. Information provided is for personal, non-commercial use by the viewer and may not be redistributed without explicit authorization from California Regional MLS.
Presently MLSListings.com displays Active, Contingent, Pending, and Recently Sold listings. Recently Sold listings are properties which were sold within the last three years. After that period listings are no longer displayed in MLSListings.com. Pending listings are properties under contract and no longer available for sale. Contingent listings are properties where there is an accepted offer, and seller may be seeking back-up offers. Active listings are available for sale.
This listing information is up-to-date as of December 02, 2025. For the most current information, please contact Karen Walsh, (949) 510-8945