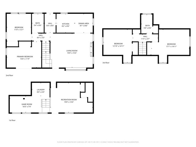
Rare Gilner Point Gem – Expansive 4BR/2BA Lakeside Retreat! Discover the ultimate mountain escape and privacy on Lake Drive - perfectly located with 60 feet of prime lake frontage in the exclusive Gilner Point peninsula community of Big Bear Lake. This 2,170 SF home blends classic 1950s lakefront charm on a large wooded lot featuring 4 bedrooms and 2 bathrooms - making it a premier choice for a multi-family getaway and a highly desirable income property. It is time for a new owner to create your own lasting memories. Step inside to a welcoming living space centered around a warm fireplace, perfect for chilly mountain evenings and large windows frame the lake views. The primary bedroom, conveniently located on the main level, offers a serene sanctuary overlooking the lake. Upstairs, you’ll find two additional bedrooms and another guest bathroom, each exuding its own unique charm and boasting lake views. Step outside on the expansive sprawling outdoor deck surrounded by mature pine trees overlooking the lake with ample space for outdoor entertaining - relax, dine and enjoy the natural beauty all around you. The three-story design includes a 520 SF lower floor with room for a ping pong and pool table with additional storage and direct access to a second deck in the wooded backya
MLS #
CRND26006266
MLS Source
California Regional MLS
Days on Site
6
Appliances
Dryer, Washer
Dining Room
Other
Family Room
Other
Fireplace
Living Room
Cooling
Central Forced Air - Gas
Heating
Floor Furnace, Wall Furnace
Roof
Shingle
Foundation
Slab
Pool
None
Style
Craftsman
Garage/Parking
Garage, Other, Garage: 1 Car(s)
Elementary District
Bear Valley Unified
High School District
Bear Valley Unified
HOA Fee
$0
39521 Lake Dr is a Single Family Residence in Big Bear Lake, CA 92315. This 2,170 square foot property sits on a 8,580 Sq Ft Lot and features 4 bedrooms & 2 full bathrooms. It is currently priced at $1,300,000 and was built in 1954. This address can also be written as 39521 Lake Dr, Big Bear Lake, CA 92315.
©2026 California Regional MLS. All rights reserved. All data, including all measurements and calculations of area, is obtained from various sources and has not been, and will not be, verified by broker or MLS. All information should be independently reviewed and verified for accuracy. Properties may or may not be listed by the office/agent presenting the information. Information provided is for personal, non-commercial use by the viewer and may not be redistributed without explicit authorization from California Regional MLS.
Presently MLSListings.com displays Active, Contingent, Pending, and Recently Sold listings. Recently Sold listings are properties which were sold within the last three years. After that period listings are no longer displayed in MLSListings.com. Pending listings are properties under contract and no longer available for sale. Contingent listings are properties where there is an accepted offer, and seller may be seeking back-up offers. Active listings are available for sale.
This listing information is up-to-date as of January 27, 2026. For the most current information, please contact Patricia Segovia Krause, (760) 650-2254