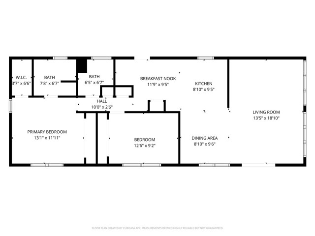
Unlock the potential in this 2-bedroom, 2-bathroom double-wide home located in a serene 55+ community. Spanning approximately 940 sq. ft., this 1970 Lancer classic offers a bright, airy living space. The spacious floor plan provides plenty of room for entertaining, while the master en-suite offers a walk-in shower, oversized vanity, all with the privacy you desire. With a little polishing and your favorite flooring or paint, this home will truly shine. Featuring a guest-friendly second bath, with a good sized second bedroom, indoor laundry room with lots of storage, washer and dryer are included. It’s the perfect size for comfortable, low-maintenance living. Why pay for someone else’s upgrades when you can finish this gem exactly to your taste? This is a rare opportunity to move into a sought-after park at an affordable price and add your own 'elbow grease' to create the ultimate retirement sanctuary.
MLS #
CRMC26047999
MLS Source
California Regional MLS
Days on Site
0
Bedrooms
Primary Suite/Retreat
Appliances
Hood Over Range, Other, Oven - Electric, Dryer, Washer
Laundry
In Laundry Room
Cooling
Central Forced Air
Heating
Central Forced Air
Roof
Rolled/Hot Mop
Pool
Community Facility, Gunite, Heated
Garage/Parking
Carport, Garage: 0 Car(s)
High School District
Modesto City High
Unit Levels
One
HOA Fee
$0
Complex Amenities
Community Pool
4125 Mchenry Ave 93 is a Manufactured In Park in Modesto, CA 95356. This 940 square foot property sits on a – Sq Ft Lot and features 2 bedrooms & 2 full bathrooms. It is currently priced at $60,000 and was built in 1970. This address can also be written as 4125 Mchenry Ave #93, Modesto, CA 95356.
©2026 California Regional MLS. All rights reserved. All data, including all measurements and calculations of area, is obtained from various sources and has not been, and will not be, verified by broker or MLS. All information should be independently reviewed and verified for accuracy. Properties may or may not be listed by the office/agent presenting the information. Information provided is for personal, non-commercial use by the viewer and may not be redistributed without explicit authorization from California Regional MLS.
Presently MLSListings.com displays Active, Contingent, Pending, and Recently Sold listings. Recently Sold listings are properties which were sold within the last three years. After that period listings are no longer displayed in MLSListings.com. Pending listings are properties under contract and no longer available for sale. Contingent listings are properties where there is an accepted offer, and seller may be seeking back-up offers. Active listings are available for sale.
This listing information is up-to-date as of March 05, 2026. For the most current information, please contact Daria Talbot, (209) 385-8500