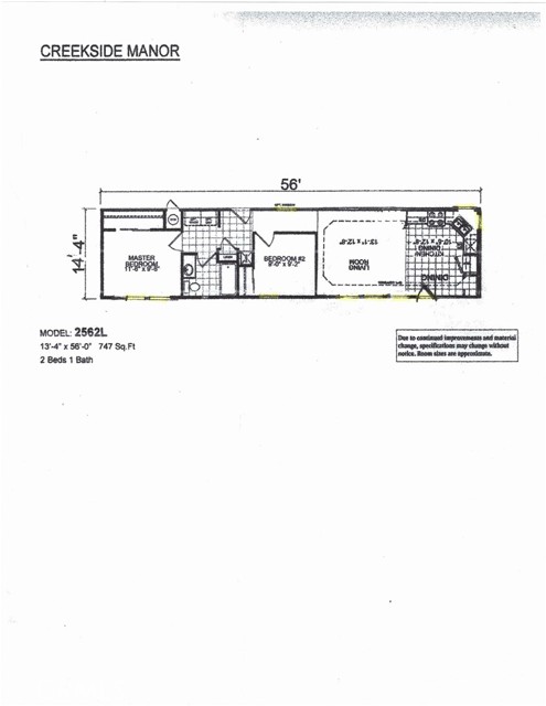
BRAND NEW Manufactured Home with LAKE VIEWS in PRESTINE Westwind Mobile Home Park! This is one of Lake Counties most gorgeous lakefront senior parks. 2 bedrooms, 1 bath home with a great floor plan with open concept kitchen, dining and living room. Kitchen is well equipped with brand new appliances and stone counter tops. Beautiful very large deck overlooking the lovely pool and green space. Amenities including BBQ, picnic area, ping pong, darts, huge lawn area with horseshoes, perfect for relaxing in the sunshine at the pool. In addition, there's a boat launch, great dock for fishing and mooring, plus RV or boat parking. Come make this your permanent vacation destination and be on vacation 365 days per year or use for getaways from the rat race!
MLS #
CRLC26036844
MLS Source
California Regional MLS
Days on Site
0
Bedrooms
Ground Floor Bedroom
Cooling
Other
Pool
Community Facility
Garage/Parking
Garage: 0 Car(s)
Elementary District
Konocti Unified
High School District
Konocti Unified
Unit Levels
One
HOA Fee
$0
11270 Konocti Vista is a Manufactured In Park in Lower Lake, CA 95457. This – square foot property sits on a 0 Sq Ft Lot and features 2 bedrooms & 1 full bathrooms. It is currently priced at $149,900 and was built in 2025. This address can also be written as 11270 Konocti Vista, Lower Lake, CA 95457.
©2026 California Regional MLS. All rights reserved. All data, including all measurements and calculations of area, is obtained from various sources and has not been, and will not be, verified by broker or MLS. All information should be independently reviewed and verified for accuracy. Properties may or may not be listed by the office/agent presenting the information. Information provided is for personal, non-commercial use by the viewer and may not be redistributed without explicit authorization from California Regional MLS.
Presently MLSListings.com displays Active, Contingent, Pending, and Recently Sold listings. Recently Sold listings are properties which were sold within the last three years. After that period listings are no longer displayed in MLSListings.com. Pending listings are properties under contract and no longer available for sale. Contingent listings are properties where there is an accepted offer, and seller may be seeking back-up offers. Active listings are available for sale.
This listing information is up-to-date as of February 18, 2026. For the most current information, please contact Julianne Lewis