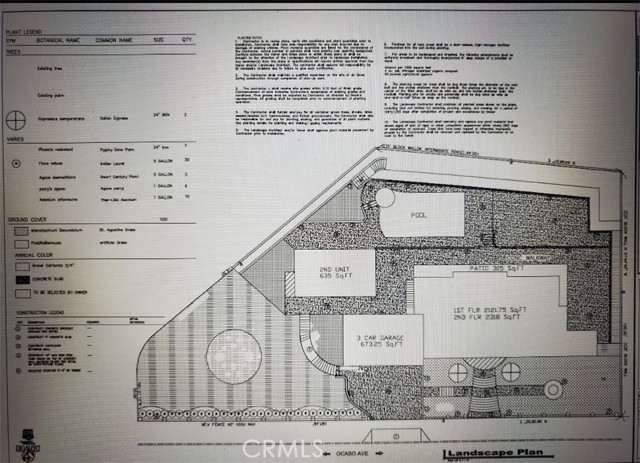
This high-end La Mirada vacant lot offers two possible excellent development opportunities: • Option 1: Split the lot and build two separate homes—ideal for builders and developers. • Option 2: Use the existing approved architectural plans and benefit from significant site preparation already completed, allowing you to begin construction sooner. Plans include a two-story, 4,061 sq. ft. home with an ADU of approximately 635 sq. ft. Key completed improvements and investments: • Sewer connection rights (paid by seller) • 1-inch water meter installed • School fees paid • Driveway curb cut completed • Landscape and grading plans approved • Soil and engineering reports available • 400 linear feet of engineered retaining walls constructed (3 to 9 feet high, with structural footing and shear key) All documentation related to site preparation and entitlements can be made available upon request. These substantial investments reduce both costs and development time for any builder or developer. This is a must-see opportunity in a sought-after neighborhood
MLS #
CRIV26064290
MLS Source
California Regional MLS
Days on Site
0
Fencing
Other, Wood
HOA Fee
$0
Zoning
D0, LSI, LX
12934 Ocaso Ave is in La Mirada, CA 90638. This Land is currently priced at $630,000. This address can also be written as 12934 Ocaso Ave, La Mirada, CA 90638.
©2026 California Regional MLS. All rights reserved. All data, including all measurements and calculations of area, is obtained from various sources and has not been, and will not be, verified by broker or MLS. All information should be independently reviewed and verified for accuracy. Properties may or may not be listed by the office/agent presenting the information. Information provided is for personal, non-commercial use by the viewer and may not be redistributed without explicit authorization from California Regional MLS.
Presently MLSListings.com displays Active, Contingent, Pending, and Recently Sold listings. Recently Sold listings are properties which were sold within the last three years. After that period listings are no longer displayed in MLSListings.com. Pending listings are properties under contract and no longer available for sale. Contingent listings are properties where there is an accepted offer, and seller may be seeking back-up offers. Active listings are available for sale.
This listing information is up-to-date as of March 27, 2026. For the most current information, please contact CARLOS MENDOZA, (626) 222-1608