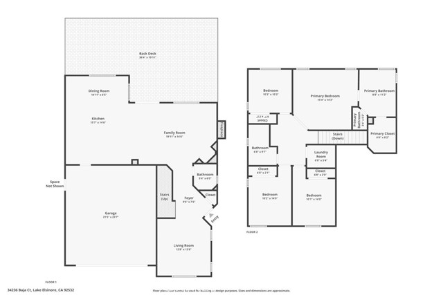
Welcome to this beautiful Canyon Hills home, located on a quiet cul-de-sac in one of Lake Elsinore’s most desirable master-planned communities. This well-maintained residence showcases true pride of ownership and offers 4 bedrooms and 3 bathrooms with an open and inviting floor plan designed for comfortable living. The home features spacious living areas including a formal living room and a large family room with a cozy fireplace. The generous kitchen is ideal for entertaining, offering Corian countertops, ample cabinetry, and a breakfast nook that opens to the family room. Upstairs, the expansive primary suite features a double-door entry, a large walk-in closet, and an en-suite bathroom with a soaking tub and separate shower. All secondary bedrooms are well-sized, and the conveniently located upstairs laundry room provides added functionality along with abundant storage throughout the home. Step outside to a large backyard with plenty of space to relax, entertain, or personalize to your liking. Built by Pulte, this home is centrally located with easy freeway access and close proximity to schools and shopping. Residents of the Canyon Hills community enjoy an exceptional lifestyle with access to resort-style amenities including multiple pools, parks, a clubhouse, tennis cou
MLS #
CRIG25271070
MLS Source
California Regional MLS
Days on Site
0
Bedrooms
Primary Suite/Retreat, Other
Appliances
Other
Family Room
Other
Fireplace
Family Room
Laundry
In Laundry Room, Other, Upper Floor
Cooling
Central Forced Air
Heating
Central Forced Air
Pool
Community Facility
Garage/Parking
Garage: 2 Car(s)
Elementary District
Lake Elsinore Unified
High School District
Lake Elsinore Unified
HOA Fee
$160
HOA Fee Frequency
Monthly
Complex Amenities
Barbecue Area, Community Pool, Picnic Area, Playground
34236 Baja Ct is a Single Family Residence in Lake Elsinore, CA 92532. This 1,954 square foot property sits on a 5,663 Sq Ft Lot and features 4 bedrooms & 2 full and 1 partial bathrooms. It is currently priced at $575,000 and was built in 2006. This address can also be written as 34236 Baja Ct, Lake Elsinore, CA 92532.
©2025 California Regional MLS. All rights reserved. All data, including all measurements and calculations of area, is obtained from various sources and has not been, and will not be, verified by broker or MLS. All information should be independently reviewed and verified for accuracy. Properties may or may not be listed by the office/agent presenting the information. Information provided is for personal, non-commercial use by the viewer and may not be redistributed without explicit authorization from California Regional MLS.
Presently MLSListings.com displays Active, Contingent, Pending, and Recently Sold listings. Recently Sold listings are properties which were sold within the last three years. After that period listings are no longer displayed in MLSListings.com. Pending listings are properties under contract and no longer available for sale. Contingent listings are properties where there is an accepted offer, and seller may be seeking back-up offers. Active listings are available for sale.
This listing information is up-to-date as of December 05, 2025. For the most current information, please contact Guillermo Altamirano