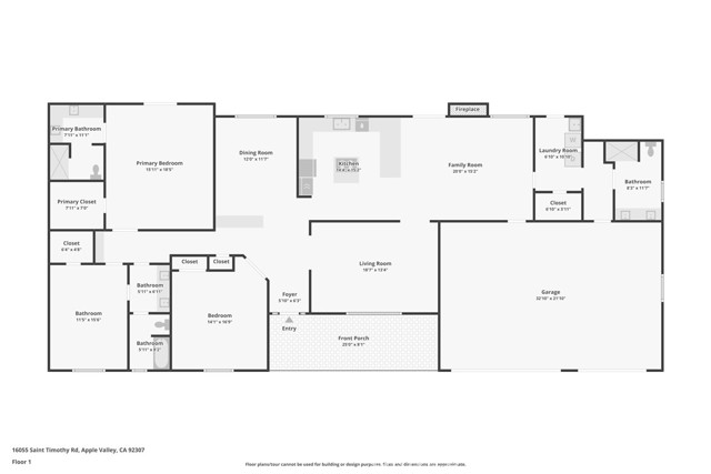
APPLE VALLEY OASIS: PRIME CORNER LOT WITH DUAL-STREET ACCESS! Welcome to 16055 Saint Timothy Rd. This beautifully maintained 3-bedroom, 3-bathroom home perfectly blends high-desert tranquility with everyday convenience. Designed for entertaining, the home features two distinct living spaces. You can relax in the formal living room by the wood-burning stove, or unwind in the casual family room—highlighted by soaring wood-accented vaulted ceilings, classic Tuscan columns, and a cozy brick fireplace. The chef’s kitchen is a true centerpiece. It features granite countertops, ample cabinetry, a large pantry, and peninsula bar seating. Cooking is a breeze with a downdraft cooktop and built-in wall oven and microwave, while a charming serving window opens directly to the backyard. (Bonus: the fridge, dishwasher, and trash compactor are included!) Down the hall, the bedrooms feature luxurious cedar-lined closets, including two rooms with a grand double-door entry. All three bathrooms offer dual sinks for easy mornings. The primary suite enjoys a sleek glass-encased shower, while a secondary bath features a fully accessible zero-entry shower. Thoughtful upgrades are found throughout, including sliding doors with built-in blinds, ceiling fans, abundant hallway storage, and a full-size laun
MLS #
CRCV26059116
MLS Source
California Regional MLS
Days on Site
1
Bedrooms
Primary Suite/Retreat
Kitchen
Other, Pantry
Appliances
Dishwasher, Microwave, Other, Oven - Gas, Trash Compactor, Dryer, Washer
Dining Room
Breakfast Bar, Formal Dining Room, Other
Family Room
Other, Separate Family Room
Fireplace
Living Room
Laundry
Hookup - Gas Dryer, In Laundry Room, Other
Cooling
Ceiling Fan, Central Forced Air
Heating
Central Forced Air
Roof
Composition
Pool
None
Style
Ranch
Garage/Parking
Attached Garage, Garage, Other, Private / Exclusive, Room for Oversized Vehicle, RV Access, Garage: 3 Car(s)
Elementary District
Apple Valley Unified
High School District
Apple Valley Unified
HOA Fee
$0
16055 Saint Timothy Rd is a Single Family Residence in Apple Valley, CA 92307. This 2,309 square foot property sits on a 0.711 Acres Lot and features 3 bedrooms & 3 full bathrooms. It is currently priced at $480,000 and was built in 1986. This address can also be written as 16055 Saint Timothy Rd, Apple Valley, CA 92307.
©2026 California Regional MLS. All rights reserved. All data, including all measurements and calculations of area, is obtained from various sources and has not been, and will not be, verified by broker or MLS. All information should be independently reviewed and verified for accuracy. Properties may or may not be listed by the office/agent presenting the information. Information provided is for personal, non-commercial use by the viewer and may not be redistributed without explicit authorization from California Regional MLS.
Presently MLSListings.com displays Active, Contingent, Pending, and Recently Sold listings. Recently Sold listings are properties which were sold within the last three years. After that period listings are no longer displayed in MLSListings.com. Pending listings are properties under contract and no longer available for sale. Contingent listings are properties where there is an accepted offer, and seller may be seeking back-up offers. Active listings are available for sale.
This listing information is up-to-date as of March 20, 2026. For the most current information, please contact Ramiro Solano