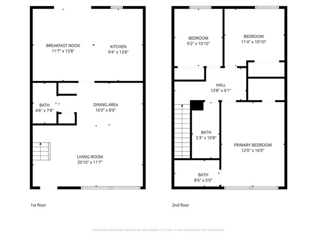
Lovingly maintained and ready for its next chapter, this inviting townhouse offers a wonderful opportunity for a new owner to add their own personal touches. As you enter the home, you’re welcomed by a comfortable living room that opens into a formal dining area and convenient half bath. Just beyond is the spacious kitchen and casual dining area, featuring abundant cabinet and quartz counter space perfect for everyday living and entertaining. Sliding glass doors open to the private backyard and patio, where fragrant jasmine blossoms line the fence and a lemon tree is heavy with fruit just in time for summer and fresh-squeezed lemonade. The yard offers a thoughtful mix of grass for pets and pavers/concrete space ideal for kids to play or for adults to relax and enjoy a weekend BBQ. From the patio, stairs leads down to the garage, which includes generous cabinet storage and washer/dryer hookups. Back inside the home, another flight of stairs leads to the bedroom level. The spacious primary suite features a large walk-in closet and an en-suite bathroom with a tub/shower combo. Two additional bedrooms share a full hallway bathroom. Each bedroom has a ceiling fan/light combo to keep rooms cool at night. Residents of the Tiburon community enjoy fantastic amenities including two pool a
MLS #
CRCV26053995
MLS Source
California Regional MLS
Days on Site
0
Bedrooms
Primary Suite/Retreat, Other
Appliances
Dishwasher, Garbage Disposal, Microwave
Dining Room
In Kitchen
Family Room
Other
Fireplace
None
Laundry
In Garage
Cooling
Ceiling Fan, Central Forced Air
Heating
Central Forced Air
Roof
Wood
Pool
Community Facility, Spa - Community Facility
Style
Traditional
Garage/Parking
Garage, Off-Street Parking, Garage: 2 Car(s)
Elementary District
Bonita Unified
High School District
Bonita Unified
HOA Fee
$399
HOA Fee Frequency
Monthly
Complex Amenities
Barbecue Area, Club House, Community Pool, Picnic Area, Playground
694 Rosewood Ln is a Townhouse in San Dimas, CA 91773. This 1,496 square foot property sits on a 1,852 Sq Ft Lot and features 3 bedrooms & 2 full and 1 partial bathrooms. It is currently priced at $625,000 and was built in 1972. This address can also be written as 694 Rosewood Ln, San Dimas, CA 91773.
©2026 California Regional MLS. All rights reserved. All data, including all measurements and calculations of area, is obtained from various sources and has not been, and will not be, verified by broker or MLS. All information should be independently reviewed and verified for accuracy. Properties may or may not be listed by the office/agent presenting the information. Information provided is for personal, non-commercial use by the viewer and may not be redistributed without explicit authorization from California Regional MLS.
Presently MLSListings.com displays Active, Contingent, Pending, and Recently Sold listings. Recently Sold listings are properties which were sold within the last three years. After that period listings are no longer displayed in MLSListings.com. Pending listings are properties under contract and no longer available for sale. Contingent listings are properties where there is an accepted offer, and seller may be seeking back-up offers. Active listings are available for sale.
This listing information is up-to-date as of March 13, 2026. For the most current information, please contact Sharyn Jung