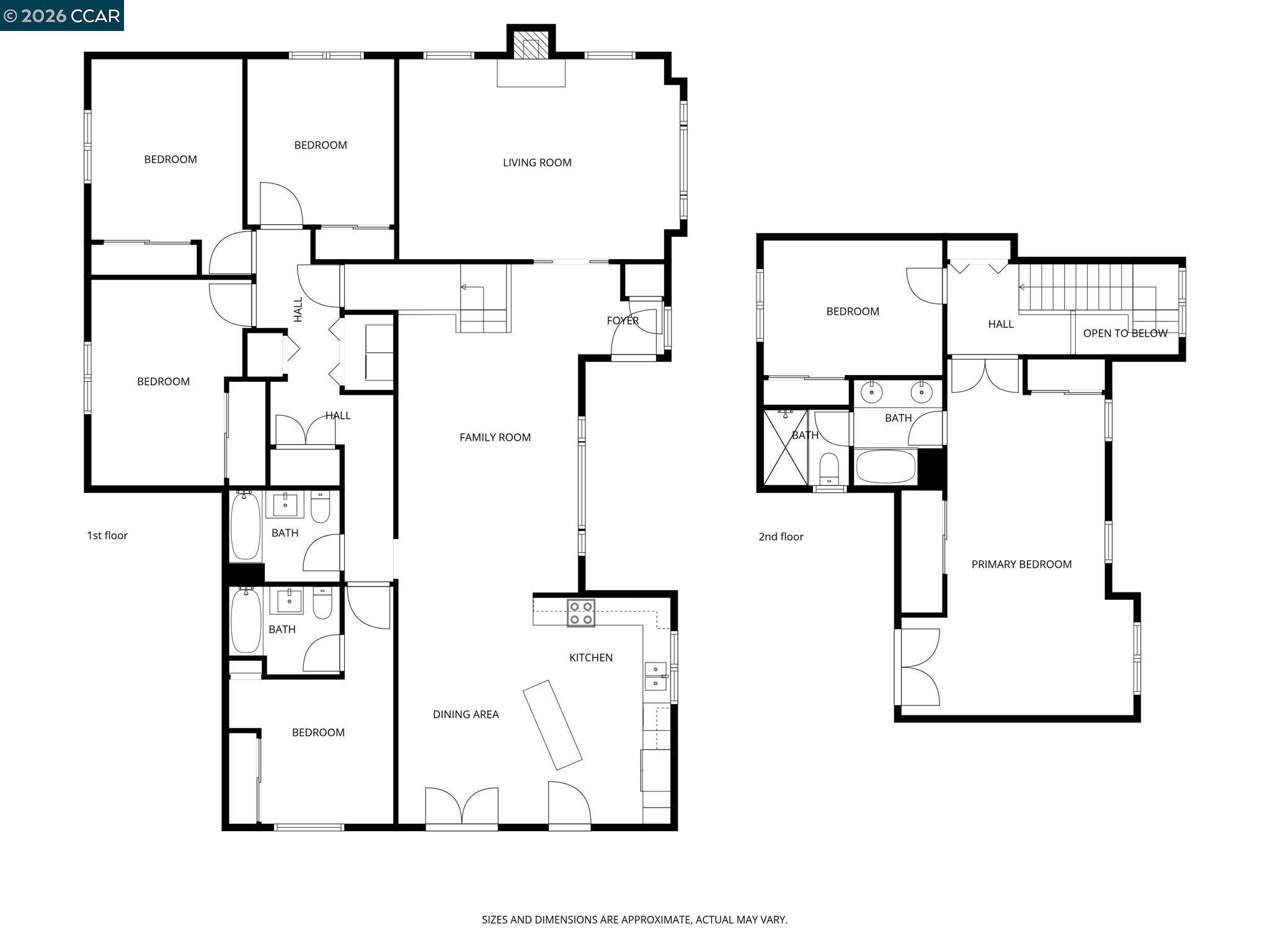
This beautifully updated home showcases inviting curb appeal and a flexible floor plan with 6 bedrooms and 3 full baths across 2,818 +/- sq. ft. A gracious covered front porch sets the tone, welcoming you into a thoughtfully designed interior. The formal living room, anchored by a charming fireplace, provides an elegant setting for gatherings, while the open-concept great room flows seamlessly into the updated eat-in kitchen. The kitchen features a central island, abundant cabinetry, and direct access to the backyard. Enjoy a peaceful outdoor setting with mature trees, a large patio, and an expansive lawn—perfect for play and entertaining. The downstairs bedroom wing offers a highly desirable ensuite bedroom ideal for guests or multi-generational living, along with three additional bedrooms and an updated hall bath. Upstairs, the generous primary suite is a true retreat with a private deck, plus an additional bedroom ideal for an office or bonus space. Updates include new luxury vinyl flooring, fresh interior and exterior paint, newer HVAC systems, and improved landscaping and drainage. Additional highlights include a circular driveway, abundant parking, and a 3-car garage. Come see this fabulous home in a convenient location near shopping, dining, and freeway access.
MLS #
CC41128806
MLS Source
Contra Costa Association of Realtors
Days on Site
1
Bathrooms
Primary - Shower(s) over Tub(s), Primary - Solid Surface, Primary - Tub, Tile, Updated Bath(s)
Kitchen
Breakfast Bar, Countertop - Stone, Island, Updated
Appliances
Dishwasher, Garbage Disposal, Refrigerator, Dryer, Washer
Family Room
Separate Family Room
Fireplace
Insert
Flooring
Tile, Vinyl
Laundry
In Closet
Cooling
Central -1 Zone
Heating
Forced Air
Roof
Composition
Foundation
Crawl Space
Pool
None, Pool - No
Style
Farm House
Garage/Parking
Attached Garage, Garage, Garage: 3 Car(s)
Sewer
Public Sewer
Water
Public
1700 Pleasant Hill Road is a Single Family Residence in Pleasant Hill, CA 94523. This 2,818 square foot property sits on a 0.25 Acres Lot and features 6 bedrooms & 3 full bathrooms. It is currently priced at $1,395,000 and was built in 1949. This address can also be written as 1700 Pleasant Hill Road, Pleasant Hill, CA 94523.
©2026 Contra Costa Association of Realtors. All rights reserved. All data, including all measurements and calculations of area, is obtained from various sources and has not been, and will not be, verified by broker or MLS. All information should be independently reviewed and verified for accuracy. Properties may or may not be listed by the office/agent presenting the information. Information provided is for personal, non-commercial use by the viewer and may not be redistributed without explicit authorization from Contra Costa Association of Realtors.
Presently MLSListings.com displays Active, Contingent, Pending, and Recently Sold listings. Recently Sold listings are properties which were sold within the last three years. After that period listings are no longer displayed in MLSListings.com. Pending listings are properties under contract and no longer available for sale. Contingent listings are properties where there is an accepted offer, and seller may be seeking back-up offers. Active listings are available for sale.
This listing information is up-to-date as of March 27, 2026. For the most current information, please contact Kelly Crawford, (925) 998-5599