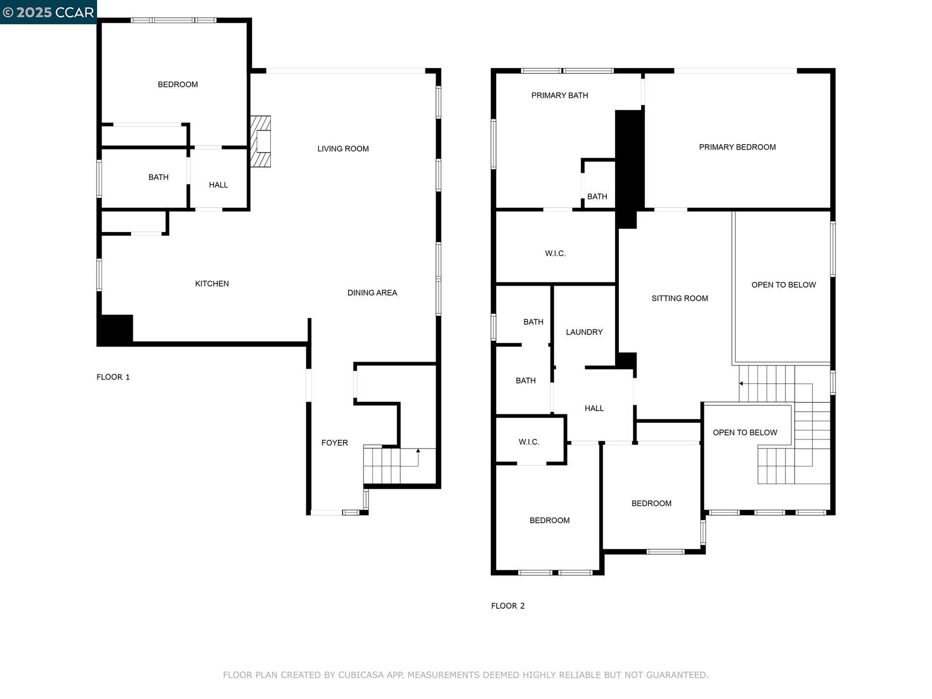
BEST VIEW ON THE LAKE – WATERFRONT Stunning luxury home situated directly on the lake with a semi-private dock and breathtaking views from the Primary suite’s private deck. This spacious home features a full bedroom and bath on the main level—ideal for guests or multi-gen living. The chef’s kitchen includes a large center island, built-in stainless steel appliances, ample cabinetry, and opens to a covered California Room perfect for outdoor entertaining. The pool-sized backyard offers space to create your dream retreat. Upstairs, enjoy a versatile loft, generous secondary bedrooms, laundry room, and a luxurious Primary suite with oversized walk-in shower, freestanding soaking tub, walk-in closet, and panoramic lake views. Solar and smart home features included. This is true waterfront living at its finest!
MLS #
CC41117125
MLS Source
Contra Costa Association of Realtors
Days on Site
115
Kitchen
Countertop - Solid Surface / Corian, Eat In Kitchen, Island, Pantry, Updated
Appliances
Dishwasher, Microwave, Oven Range - Built-In, Oven Range - Gas
Fireplace
Family Room
Flooring
Carpet - Wall to Wall, Tile
Cooling
Central -1 Zone, Whole House Fan
Heating
Heating - 2+ Zones
Roof
Tile
Pool
None, Pool - No
Style
Contemporary
Garage/Parking
Attached Garage, Garage, Gate/Door Opener, Garage: 2 Car(s)
Sewer
Public Sewer
Water
Public
17324 Bushwick Ln is a Single Family Residence in Lathrop, CA 95330. This 2,483 square foot property sits on a 4,664 Sq Ft Lot and features 4 bedrooms & 3 full bathrooms. It is currently priced at $949,000 and was built in 2024. This address can also be written as 17324 Bushwick Ln, Lathrop, CA 95330.
©2026 Contra Costa Association of Realtors. All rights reserved. All data, including all measurements and calculations of area, is obtained from various sources and has not been, and will not be, verified by broker or MLS. All information should be independently reviewed and verified for accuracy. Properties may or may not be listed by the office/agent presenting the information. Information provided is for personal, non-commercial use by the viewer and may not be redistributed without explicit authorization from Contra Costa Association of Realtors.
Presently MLSListings.com displays Active, Contingent, Pending, and Recently Sold listings. Recently Sold listings are properties which were sold within the last three years. After that period listings are no longer displayed in MLSListings.com. Pending listings are properties under contract and no longer available for sale. Contingent listings are properties where there is an accepted offer, and seller may be seeking back-up offers. Active listings are available for sale.
This listing information is up-to-date as of February 16, 2026. For the most current information, please contact Laralee Miller, (925) 550-3203