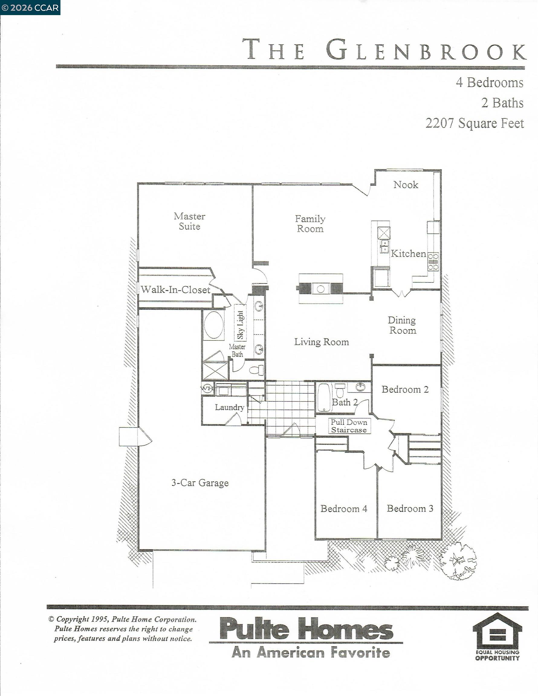
Absolutely fantastic single story home with 2,218 square feet of living space on a 8,510 square foot premium lot situated in the highly sought after Pulte Horizon Collection community off of Fairview Ave & San Jose Ave. The original builder spec was a 4 bedroom 2 bathroom home though the first owners elected for a massive 3rd bedroom with two separate closets. The 3rd bedroom could easily be converted back to two individual nice sized bedrooms (see floorplan in the photos). The amazing home features a family room and living room with vaulted ceilings and a double facing fireplace, in addition to a formal dining room area. The kitchen features solid counters, electric cooktop, built in microwave, updated white cabinets with lots of storage and counter space. The primary bedroom has vaulted ceilings, and multiple windows for natural lighting. The primary bathroom features a stall shower, separate bathtub, dual sinks and a spacious walk-in closet. The home has wonderful curb appeal with the manicured front and back yards. Three car tandem garage. 220 EV charge. Do Not Miss Out on the Incredible Opportunity!
MLS #
CC41114479
MLS Source
Contra Costa Association of Realtors
Days on Site
156
Bathrooms
Primary - Shower(s) over Tub(s), Primary - Tile, Primary - Tub, Updated Bath(s)
Kitchen
Breakfast Nook, Countertop - Solid Surface / Corian, Kitchen/Family Room Combo, Updated
Appliances
Cooktop - Electric, Dishwasher, Garbage Disposal, Microwave
Family Room
Separate Family Room
Fireplace
Family Room, Living Room, Two-Way
Flooring
Carpet - Wall to Wall
Laundry
220 Volt Outlet, Hookup - Gas Dryer, In Laundry Room
Cooling
Ceiling Fan, Central -1 Zone
Heating
Forced Air
Roof
Tile
Foundation
Slab
Pool
None, Pool - No, Possible Site
Style
Contemporary
Garage/Parking
Access - Interior, Attached Garage, Enclosed, Garage, Gate/Door Opener, Off-Street Parking, Tandem Parking, Garage: 3 Car(s)
Elementary District
Brentwood Union Elementary
Sewer
Public Sewer
Water
Public
1160 Orchid Dr is a Single Family Residence in Brentwood, CA 94513. This 2,218 square foot property sits on a 8,510 Sq Ft Lot and features 4 bedrooms & 2 full bathrooms. It is currently priced at $795,000 and was built in 1995. This address can also be written as 1160 Orchid Dr, Brentwood, CA 94513.
©2026 Contra Costa Association of Realtors. All rights reserved. All data, including all measurements and calculations of area, is obtained from various sources and has not been, and will not be, verified by broker or MLS. All information should be independently reviewed and verified for accuracy. Properties may or may not be listed by the office/agent presenting the information. Information provided is for personal, non-commercial use by the viewer and may not be redistributed without explicit authorization from Contra Costa Association of Realtors.
Presently MLSListings.com displays Active, Contingent, Pending, and Recently Sold listings. Recently Sold listings are properties which were sold within the last three years. After that period listings are no longer displayed in MLSListings.com. Pending listings are properties under contract and no longer available for sale. Contingent listings are properties where there is an accepted offer, and seller may be seeking back-up offers. Active listings are available for sale.
This listing information is up-to-date as of March 15, 2026. For the most current information, please contact Frank Bermudez, (925) 457-3696