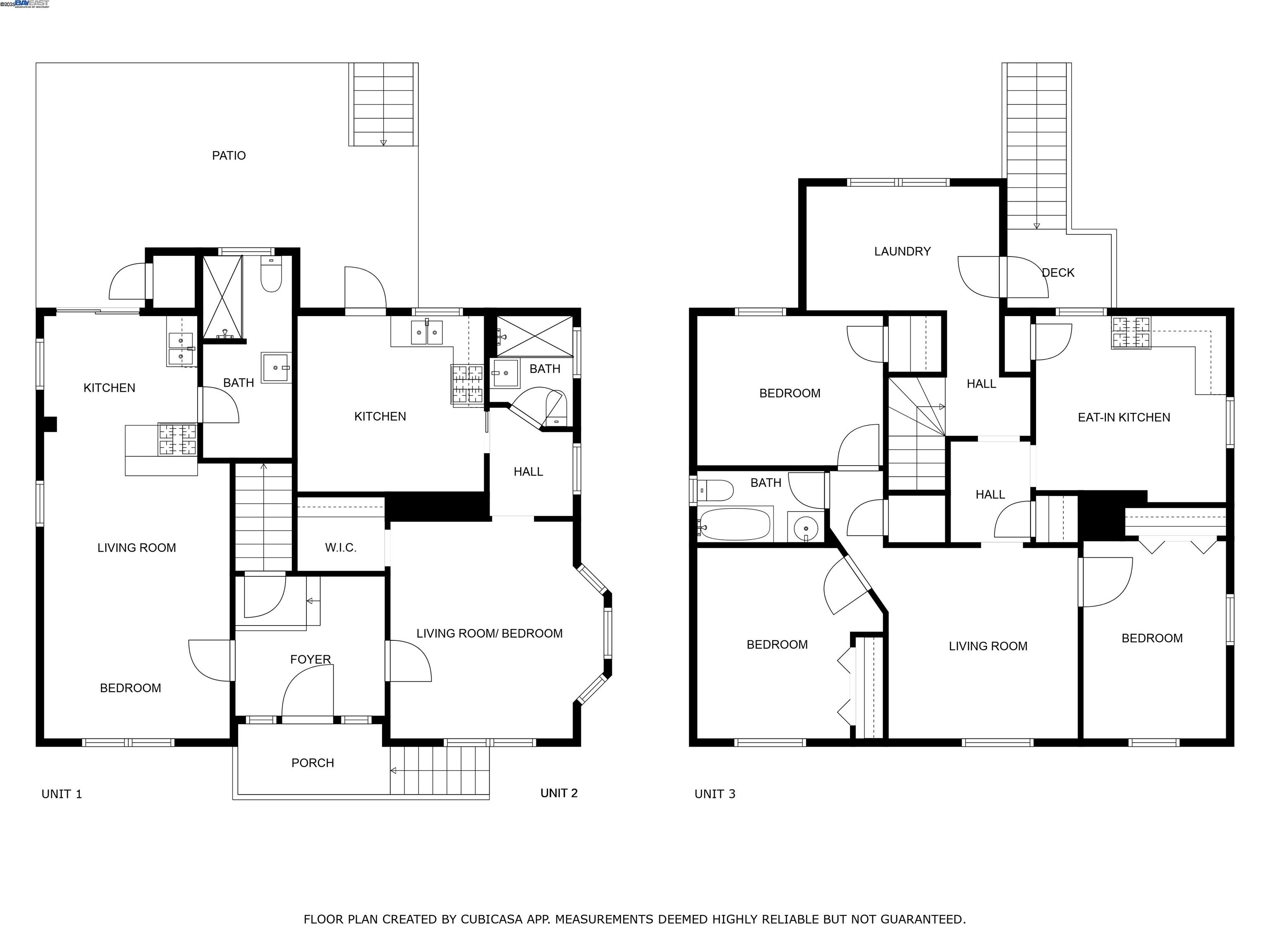
INCREDIBLE INVESTMENT. Fully occupied leased for $6200/mo Don’t miss this rare chance to own a WELL-MAINTAINED TRIPLEX in a HIGHLY DESIRABLE LOCATION near WHOLE FOODS, LAKE MERRITT, and the vibrant GRAND LAKE and PIEDMONT AVENUE districts. Surrounded by top RESTAURANTS, CAFÉS, BOUTIQUE SHOPS, and ENTERTAINMENT, this property offers the perfect mix of URBAN CONVENIENCE and NEIGHBORHOOD CHARM. EASY ACCESS TO BART, AC TRANSIT, and major freeways to SAN FRANCISCO and the GREATER BAY AREA. Unit 1: Charming RENTED STUDIO with UPDATED KITCHEN, GRANITE COUNTERS, COZY SLEEPING/LIVING AREA, STUDY NOOK, and BACKYARD ACCESS. Unit 2: Newly remodeled RENTED SPACIOUS STUDIO with NEWER KITCHEN AND BATHROOM, featuring GRANITE COUNTERS, STYLISH TILE, MODERN FIXTURES, FRESH PAINT, BEAUTIFUL FLOORS, washer/dryer hookups, and BACKYARD ACCESS. Unit 3: Expansive upstairs 3-BED, 1-BATH UNIT with EAT-IN KITCHEN, IN-UNIT LAUNDRY, COMFORTABLE LIVING ROOM, and AMPLE STORAGE. Access to backyard. OFF-STREET PARKING and FULLY FENCED FRONT AND BACKYARD provide PRIVACY and OUTDOOR SPACE. Whether you're an INVESTOR or OWNER-OCCUPANT, this triplex offers EXCEPTIONAL VALUE and RENTAL INCOME POTENTIAL in one of OAKLAND’S BEST LOCATIONS.
MLS #
BE41119106
MLS Source
Bay East
Days on Site
3
Flooring
Other, Wood
Cooling
Air Conditioning - None
Heating
Other
Roof
Composition
Garage/Parking
Off-Street Parking, Garage: Car(s)
Sewer
Public Sewer
Water
Public
Complex Amenities
Playground
| # Buildings | # Leased Units | # Total Units |
|---|---|---|
| – | – | 3 |
| Unit # | Sq Ft | Beds | Baths | Rent |
|---|---|---|---|---|
| 1 | – | 1 | 0/0 | $2,000 |
| 2 | – | 1 | 0/0 | $2,000 |
| 3 | – | 3 | 0/0 | $2,200 |
3300 Harrison St is a Triplex in Oakland, CA 94611. This 2,126 square foot property sits on a 4,410 Sq Ft Lot and features – bedrooms & – full bathrooms. It is currently priced at $799,000 and was built in 1932. This address can also be written as 3300 Harrison St, Oakland, CA 94611.
©2025 Bay East. All rights reserved. All data, including all measurements and calculations of area, is obtained from various sources and has not been, and will not be, verified by broker or MLS. All information should be independently reviewed and verified for accuracy. Properties may or may not be listed by the office/agent presenting the information. Information provided is for personal, non-commercial use by the viewer and may not be redistributed without explicit authorization from Bay East.
Presently MLSListings.com displays Active, Contingent, Pending, and Recently Sold listings. Recently Sold listings are properties which were sold within the last three years. After that period listings are no longer displayed in MLSListings.com. Pending listings are properties under contract and no longer available for sale. Contingent listings are properties where there is an accepted offer, and seller may be seeking back-up offers. Active listings are available for sale.
This listing information is up-to-date as of December 12, 2025. For the most current information, please contact Rose Krinks, (510) 915-2646