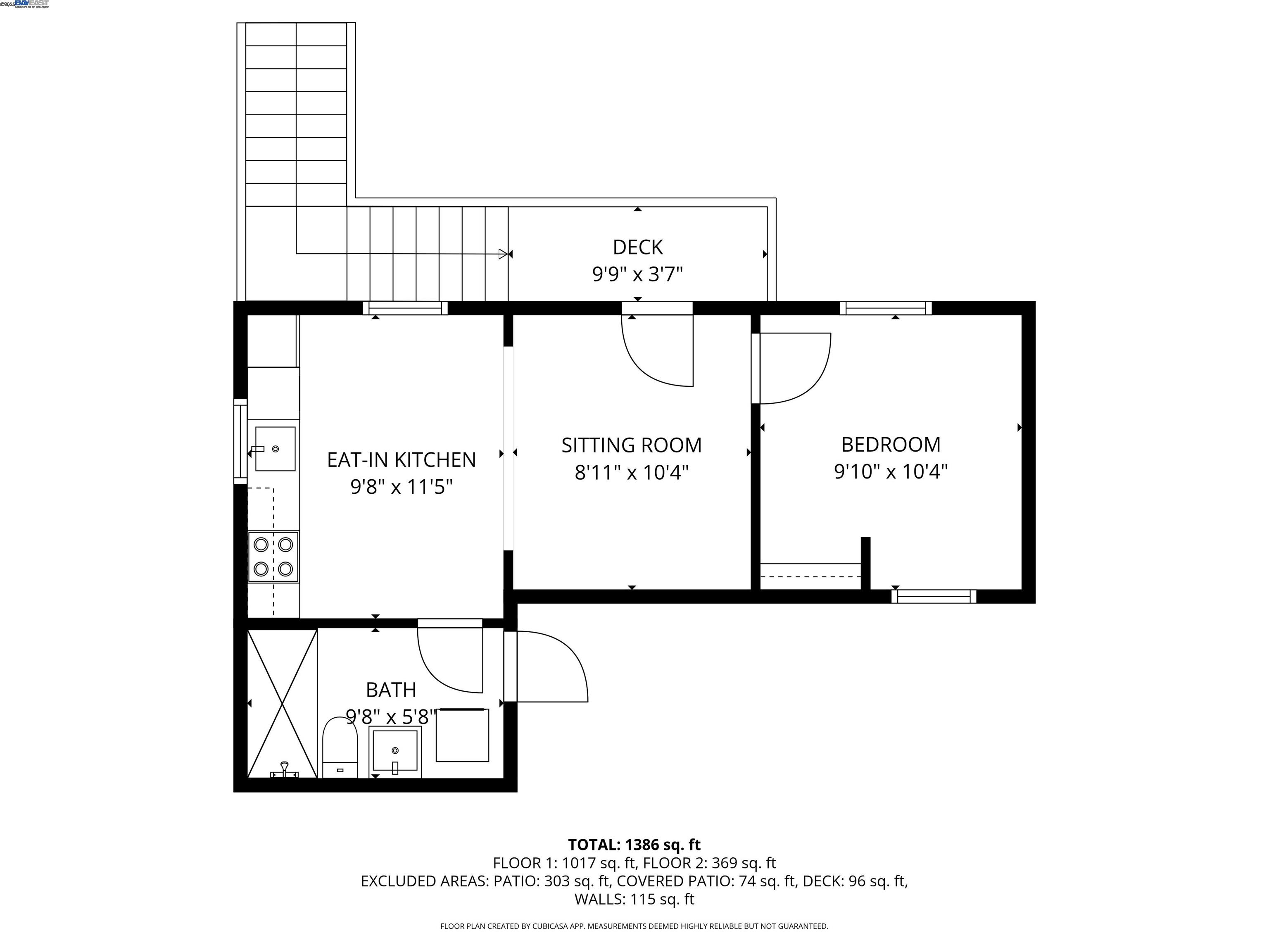
Price Drop !!! This fully renovated duplex blends modern comfort, versatility, and opportunity. With separate meters for each unit, new flooring, recessed lighting, mini-split heating and cooling systems, tankless water heaters, and a new roof, the home has been thoughtfully upgraded inside and out. Fresh interior and exterior paint further elevate the move-in-ready appeal, while a combined living space of approximately 1,450 square feet offers flexibility for multigenerational living, rental income, or a live-work setup. The main unit features three bedrooms and two bathrooms, a bright living room, and a refreshed kitchen complete with a pantry and convenient in-unit laundry. Up the exterior stairs, the second unit offers a one bedroom, one bathroom layout with its own laundry—an ideal option for guests, extended family, or a rental opportunity. Set on a generous 5,300 square foot lot, the fully fenced backyard offers an extra wide gravel driveway and is a blank canvas—ready for gardening, outdoor entertaining, play space, or even the potential to add an ADU. Conveniently located, this property offers easy access to HWY 80, 580, and Richmond Parkway, making commuting a smooth one. Nearby shopping centers provide everyday essentials and dining options, while Shields-Reid Park
MLS #
BE41116815
MLS Source
Bay East
Days on Site
28
Appliances
Dryer, Washer
Flooring
Laminate
Heating
Heat Pump
Roof
Composition
Garage/Parking
Off-Street Parking, Parking Area, Spaces per Unit - 1, Tandem Parking, Garage: Car(s)
Elementary District
West Contra Costa Unified
High School District
West Contra Costa Unified
Sewer
Public Sewer
Complex Amenities
None
| # Buildings | # Leased Units | # Total Units |
|---|---|---|
| – | – | 2 |
| Unit # | Sq Ft | Beds | Baths | Rent |
|---|---|---|---|---|
| 1 | 1,107 | 3 | 0/0 | – |
| 2 | 360 | 1 | 0/0 | – |
1520 4th St is a Duplex in Richmond, CA 94801. This 1,467 square foot property sits on a 5,300 Sq Ft Lot and features – bedrooms & – full bathrooms. It is currently priced at $685,000 and was built in 1939. This address can also be written as 1520 4th St, Richmond, CA 94801.
©2025 Bay East. All rights reserved. All data, including all measurements and calculations of area, is obtained from various sources and has not been, and will not be, verified by broker or MLS. All information should be independently reviewed and verified for accuracy. Properties may or may not be listed by the office/agent presenting the information. Information provided is for personal, non-commercial use by the viewer and may not be redistributed without explicit authorization from Bay East.
Presently MLSListings.com displays Active, Contingent, Pending, and Recently Sold listings. Recently Sold listings are properties which were sold within the last three years. After that period listings are no longer displayed in MLSListings.com. Pending listings are properties under contract and no longer available for sale. Contingent listings are properties where there is an accepted offer, and seller may be seeking back-up offers. Active listings are available for sale.
This listing information is up-to-date as of November 28, 2025. For the most current information, please contact Noah Sky Hoffman, (510) 502-6220