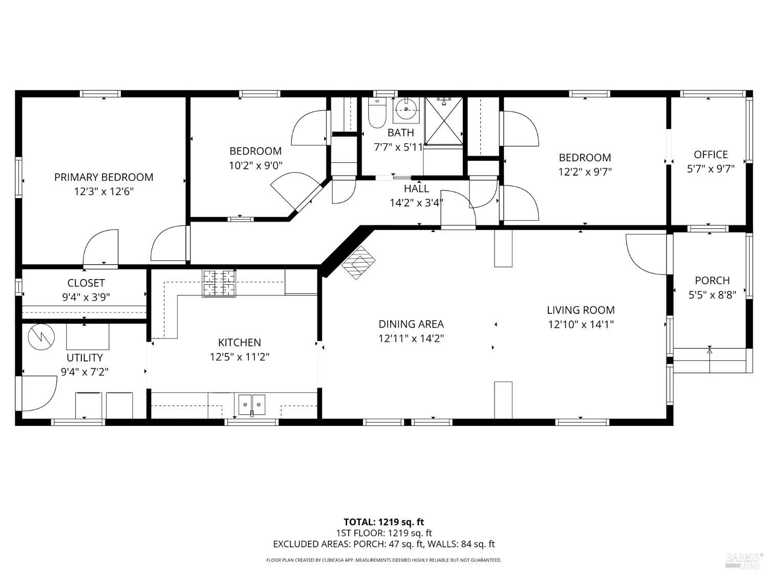
San Anselmo: Craftsman cottage with sunny garden. Featuring 3BD/1 BA this Vintage 1916 home has been lovingly cared for and shows great pride of ownership. Updates include: kitchen, bathroom, roof & furnace. Lovely garden full of vegetables, flowers and fruit trees. Ipe Deck and storage shed in back. Excellent location and School Districts (K-12).
MLS #
BA326026562
MLS Source
Bay Area Real Estate Information Services, Inc.
Days on Site
0
Bathrooms
Stall Shower, Tile
Appliances
Dishwasher, Hood Over Range, Oven Range - Gas, Refrigerator, Dryer, Washer
Fireplace
Dining Room, Other
Flooring
Tile, Wood
Cooling
None
Heating
Central Forced Air
Roof
Composition
Pool
Pool - No
Style
Craftsman
Garage/Parking
No Garage, Garage: 0 Car(s)
Sewer
Public Sewer
Water
Public
| # Buildings | # Leased Units | # Total Units |
|---|---|---|
| 0 | – | – |
31 Rowland Ct is a Single Family Residence in San Anselmo, CA 94960. This 1,218 square foot property sits on a 4,321 Sq Ft Lot and features 3 bedrooms & 1 full bathrooms. It is currently priced at $1,100,000 and was built in 1916. This address can also be written as 31 Rowland Ct, San Anselmo, CA 94960.
©2026 Bay Area Real Estate Information Services, Inc. All rights reserved. All data, including all measurements and calculations of area, is obtained from various sources and has not been, and will not be, verified by broker or MLS. All information should be independently reviewed and verified for accuracy. Properties may or may not be listed by the office/agent presenting the information. Information provided is for personal, non-commercial use by the viewer and may not be redistributed without explicit authorization from Bay Area Real Estate Information Services, Inc.
Presently MLSListings.com displays Active, Contingent, Pending, and Recently Sold listings. Recently Sold listings are properties which were sold within the last three years. After that period listings are no longer displayed in MLSListings.com. Pending listings are properties under contract and no longer available for sale. Contingent listings are properties where there is an accepted offer, and seller may be seeking back-up offers. Active listings are available for sale.
This listing information is up-to-date as of April 01, 2026. For the most current information, please contact Charlynn Baumsteiger, (415) 302-8996