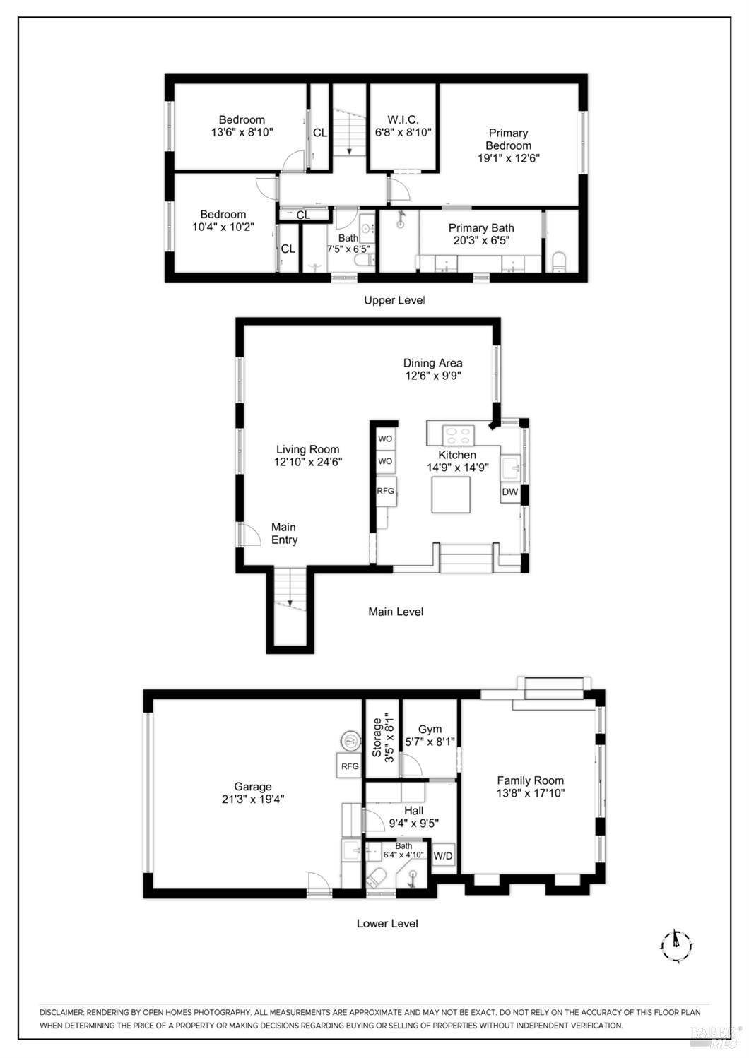
Entertaining comes naturally at 1372 Larkin Drive. The floor plan moves easily between a living room at the entry, a dining room, and a family room each a natural gathering zone before opening through sliding doors to a backyard designed for every kind of occasion. The kitchen slider leads to lounge seating and a lush lawn with a play structure; the family room slider connects to a pergola-covered dining area with adjustable louvers, perfect for al fresco dinners with space for your BBQ nearby. A fully detached climate-controlled office with two workstations completes the picture. Twenty people spread out here without anyone feeling crowded. The kitchen is the centerpiece: a 5-burner cooktop, built-in oven and microwave, stainless prep sink in the island, dual Fisher & Paykel drawer dishwashers, and quartz countertops appointed at a level that makes cooking for a crowd genuinely enjoyable rather than aspirational. Vaulted ceilings carry through the living room and primary suite, where a walk-in closet and spa-caliber bath with dual-head steam shower deliver a real retreat at the end of the day. Three bedrooms, three full baths, 2,015 square feet plus the detached office. Anderson windows and doors throughout. Attached two-car garage with two additional off-street spaces. A p
MLS #
BA326023008
MLS Source
Bay Area Real Estate Information Services, Inc.
Days on Site
0
Bedrooms
Primary Suite/Retreat, Studio
Bathrooms
Other, Shower(s) over Tub(s)
Kitchen
Island with Sink, Other, Updated
Appliances
Cooktop - Gas, Dishwasher, Garbage Disposal, Microwave, Other, Oven - Built-In, Oven - Electric, Refrigerator, Washer/Dryer
Dining Room
Other
Family Room
Other
Fireplace
Other
Flooring
Carpet, Tile, Wood
Laundry
Cabinets, In Laundry Room, Stacked Only
Cooling
Central Forced Air
Heating
Central Forced Air
Roof
Composition
Foundation
Concrete Perimeter
Pool
None, Pool - No
Style
Contemporary
Garage/Parking
Access - Interior, Attached Garage, Gate/Door Opener, Garage: 2 Car(s)
Unit Levels
Multi/Split
Sewer
Public Sewer
Water
Public
| # Buildings | # Leased Units | # Total Units |
|---|---|---|
| 0 | – | – |
1372 Larkin Dr is a Single Family Residence in Sonoma, CA 95476. This 2,015 square foot property sits on a 6,551 Sq Ft Lot and features 3 bedrooms & 3 full bathrooms. It is currently priced at $1,435,000 and was built in 1979. This address can also be written as 1372 Larkin Dr, Sonoma, CA 95476.
©2026 Bay Area Real Estate Information Services, Inc. All rights reserved. All data, including all measurements and calculations of area, is obtained from various sources and has not been, and will not be, verified by broker or MLS. All information should be independently reviewed and verified for accuracy. Properties may or may not be listed by the office/agent presenting the information. Information provided is for personal, non-commercial use by the viewer and may not be redistributed without explicit authorization from Bay Area Real Estate Information Services, Inc.
Presently MLSListings.com displays Active, Contingent, Pending, and Recently Sold listings. Recently Sold listings are properties which were sold within the last three years. After that period listings are no longer displayed in MLSListings.com. Pending listings are properties under contract and no longer available for sale. Contingent listings are properties where there is an accepted offer, and seller may be seeking back-up offers. Active listings are available for sale.
This listing information is up-to-date as of April 01, 2026. For the most current information, please contact Jennifer Rochlin, (707) 363-6198