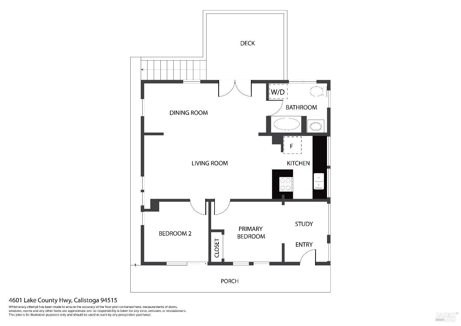
Charming Woodland Retreat! A great price for this recently renovated gem that offers 832 square feet of comfortable living space. This cozy home nestled in the woods is just a short drive from Calistoga, blending modern amenities with rustic charm and so much natural light. Plus a large deck for the ultimate in indoor/outdoor living. Enjoy the fresh, updated look with new and refinished wood flooring, appliances, newer roof, dual-pane windows & doors, and central heat/air. The two bedrooms provide ample space for relaxation. A beautifully updated bathroom with contemporary finishes, plus laundry to provide plenty of convenience. The cleared land surrounding the property, plus a 5-bedroom septic system, offers the perfect opportunity to build an additional home or expand the one that is here...or just enjoy so much exceptional outdoor living space, including seasonal creek/runoff. Benefit from your own water source, with potentially enough capacity to install a pool to create your own private oasis. Whether you're looking for a peaceful retreat or a place with potential for growth, this charming woodland home has it all. Don't miss out on this unique opportunity to own a piece of tranquility that is only a short drive to town. Reach out today to schedule a viewing!
MLS #
BA326019936
MLS Source
Bay Area Real Estate Information Services, Inc.
Days on Site
3
Bedrooms
Primary Suite/Retreat
Bathrooms
Updated Bath(s)
Kitchen
Breakfast Nook, Countertop - Granite, Updated
Appliances
Oven - Built-In, Oven - Electric, Oven Range - Built-In, Oven Range - Electric, Refrigerator, Washer/Dryer
Dining Room
Dining Area in Living Room
Flooring
Tile, Wood
Laundry
In Laundry Room
Cooling
Central Forced Air
Heating
Central Forced Air, Heat Pump
Roof
Composition
Foundation
Concrete Perimeter
Pool
Pool - No
Style
Cottage
Garage/Parking
RV Possible, Storage - Boat, Garage: 0 Car(s)
Sewer
Septic Tank
Water
Shared Well
| # Buildings | # Leased Units | # Total Units |
|---|---|---|
| 0 | – | – |
4601 Lake County Hwy is a Single Family Residence in Calistoga, CA 94515. This 832 square foot property sits on a 1.25 Acres Lot and features 2 bedrooms & 1 full bathrooms. It is currently priced at $650,000 and was built in 1990. This address can also be written as 4601 Lake County Hwy, Calistoga, CA 94515.
©2026 Bay Area Real Estate Information Services, Inc. All rights reserved. All data, including all measurements and calculations of area, is obtained from various sources and has not been, and will not be, verified by broker or MLS. All information should be independently reviewed and verified for accuracy. Properties may or may not be listed by the office/agent presenting the information. Information provided is for personal, non-commercial use by the viewer and may not be redistributed without explicit authorization from Bay Area Real Estate Information Services, Inc.
Presently MLSListings.com displays Active, Contingent, Pending, and Recently Sold listings. Recently Sold listings are properties which were sold within the last three years. After that period listings are no longer displayed in MLSListings.com. Pending listings are properties under contract and no longer available for sale. Contingent listings are properties where there is an accepted offer, and seller may be seeking back-up offers. Active listings are available for sale.
This listing information is up-to-date as of March 13, 2026. For the most current information, please contact Christopher Anderson, (707) 815-6596