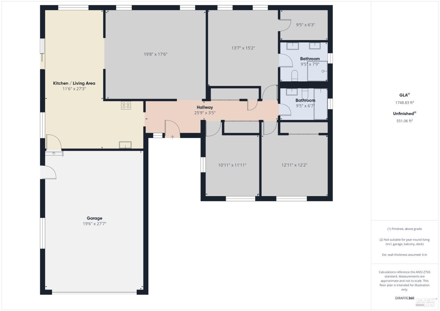
TURN-KEY move-in ready home. Remodeled 1973, 3BD/2BA, 1749sf home. Nice manicured front yard & welcoming step-up brick entrance. Spacious living room area with built-in shelves, new recessed lighting, custom molding ceiling with built-in lights, aluminum double pane windows & a fireplace. Kitchen, dining room, front entrance, & hallway have been updated to engineer hardwood floors. Kitchen has been updated with new cherry soft close cabinets/drawers, man-made black quartz granite countertops, lazy susan, propane cooktop/electric oven, refrigerator, dishwasher, new sink, new faucet, garbage disposal & microwave. Kitchen has a door that leads to the garage. The dining area has a pop-out window along with a sliding glass door that gives you access to the back yard with a concrete covered patio. Spacious primary suite with a generous walk-in closet, the en-suite bathroom features custom walk-in shower glass door with marble tile, man-made black quartz granite countertops, new cabinets/drawers that are soft closing, dual sink vanity with 2 mirrors, new satin nickel faucet, heated ceiling lamps and marble tile flooring. Updated guest bathroom. Laundry room with washer & gas dryer. 2-car garage with plenty of shelving & a sink. Underground sprinkler system. Owner Financing available.
MLS #
BA325099569
MLS Source
Bay Area Real Estate Information Services, Inc.
Days on Site
14
Bedrooms
Primary Suite/Retreat
Bathrooms
Shower(s) over Tub(s)
Kitchen
Other
Appliances
Dishwasher, Other, Oven - Electric, Oven Range - Gas, Refrigerator, Dryer, Washer
Dining Room
Other
Fireplace
Living Room
Flooring
Carpet, Wood
Laundry
Laundry - Yes, Laundry Area, Other
Cooling
Ceiling Fan, Central Forced Air
Heating
Central Forced Air, Fireplace
Roof
Shingle
Pool
Pool - No
Garage/Parking
Attached Garage, Garage: 2 Car(s)
Sewer
Public Sewer
Water
Public
| # Buildings | # Leased Units | # Total Units |
|---|---|---|
| 0 | – | – |
464 Nokomis Dr is a Single Family Residence in Ukiah, CA 95482. This 1,749 square foot property sits on a 9,470 Sq Ft Lot and features 3 bedrooms & 1 full and 1 partial bathrooms. It is currently priced at $599,000 and was built in 1973. This address can also be written as 464 Nokomis Dr, Ukiah, CA 95482.
©2025 Bay Area Real Estate Information Services, Inc. All rights reserved. All data, including all measurements and calculations of area, is obtained from various sources and has not been, and will not be, verified by broker or MLS. All information should be independently reviewed and verified for accuracy. Properties may or may not be listed by the office/agent presenting the information. Information provided is for personal, non-commercial use by the viewer and may not be redistributed without explicit authorization from Bay Area Real Estate Information Services, Inc.
Presently MLSListings.com displays Active, Contingent, Pending, and Recently Sold listings. Recently Sold listings are properties which were sold within the last three years. After that period listings are no longer displayed in MLSListings.com. Pending listings are properties under contract and no longer available for sale. Contingent listings are properties where there is an accepted offer, and seller may be seeking back-up offers. Active listings are available for sale.
This listing information is up-to-date as of November 24, 2025. For the most current information, please contact Ruby Martinez, (707) 263-2620