New improved price! The Banana Slug Inn is a magical multi-unit property centrally located in the heart of Ben Lomond near restaurants, hiking and mountain bike trails, Highlands Park, grocery stores and much more! Serene forest setting with meandering creeks, bridge and a babbling fountain. Two charming homes with character from bygone eras and great separation for privacy. Cozy up in front of the living room fireplace of the front home while enjoying views of the redwoods or choose the back home with views of the creeks and garden areas. Back home has an additional, coverted living area as well as a common area laundry room. Potentially offset your mortgage with potential rental income or the perfect opportunity for an extended family. Plenty of parking with a circular driveway for easy ingress and egress to both entrances of the property. Bonus is the new roof!!! A true delight and a unique opportunity!
MLS #
ML82026745
MLS Source
MLSListings, Inc.
Days on Site
165
Dining Room
Breakfast Bar, Dining Area
Family Room
No Family Room
Fireplace
Wood Burning
Flooring
Carpet, Vinyl/Linoleum, Wood
Laundry
In Utility Room
Cooling
None
Heating
Baseboard, Fireplace, Forced Air, Gas
Roof
Composition
Foundation
Pillar/Post/Pier
Garage/Parking
Drive Through, Off-Street Parking, Garage: 0 Car(s)
Elementary District
San Lorenzo Valley Unified
High School District
San Lorenzo Valley Unified
Sewer
Septic Tank
Water
Public
Zoning
R-1-15
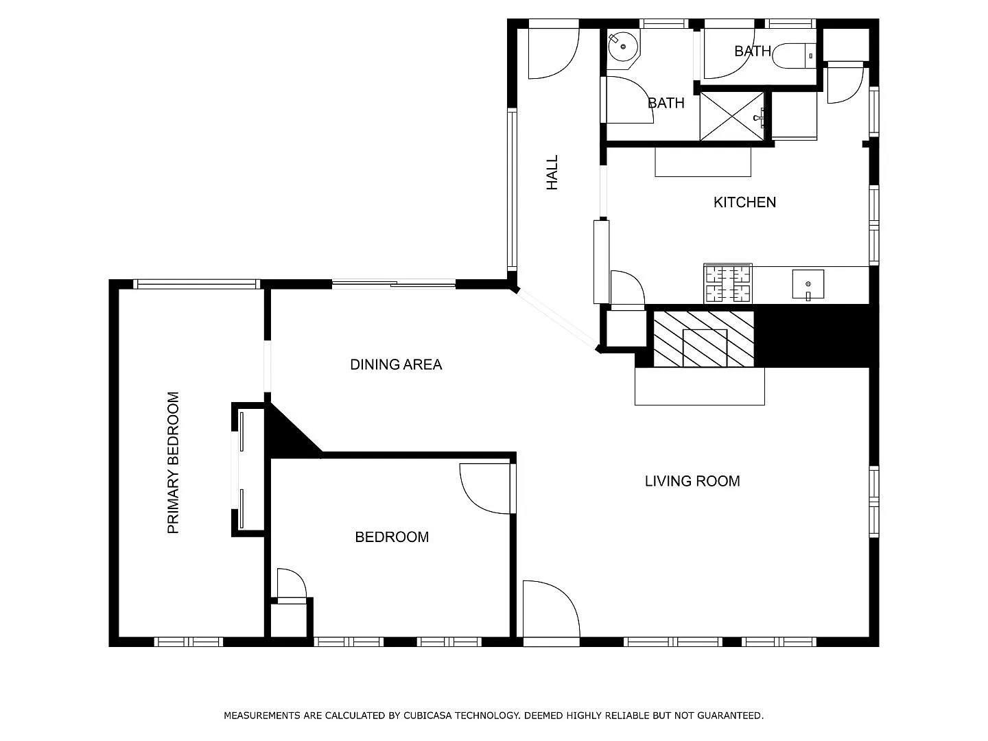
8787 Highway 9 is a Single Family Residence in Ben Lomond, CA 95005. This 1,864 square foot property sits on a 0.368 Acres Lot and features 4 bedrooms & 3 full bathrooms. It is currently priced at $995,000 and was built in 1939. This address can also be written as 8787 Highway 9, Ben Lomond, CA 95005.
©2026 MLSListings Inc. All rights reserved. All data, including all measurements and calculations of area, is obtained from various sources and has not been, and will not be, verified by broker or MLS. All information should be independently reviewed and verified for accuracy. Properties may or may not be listed by the office/agent presenting the information. Information provided is for personal, non-commercial use by the viewer and may not be redistributed without explicit authorization from MLSListings Inc.
Presently MLSListings.com displays Active, Contingent, Pending, and Recently Sold listings. Recently Sold listings are properties which were sold within the last three years. After that period listings are no longer displayed in MLSListings.com. Pending listings are properties under contract and no longer available for sale. Contingent listings are properties where there is an accepted offer, and seller may be seeking back-up offers. Active listings are available for sale.
This listing information is up-to-date as of April 16, 2026. For the most current information, please contact Russell Gross, (831) 464-4700