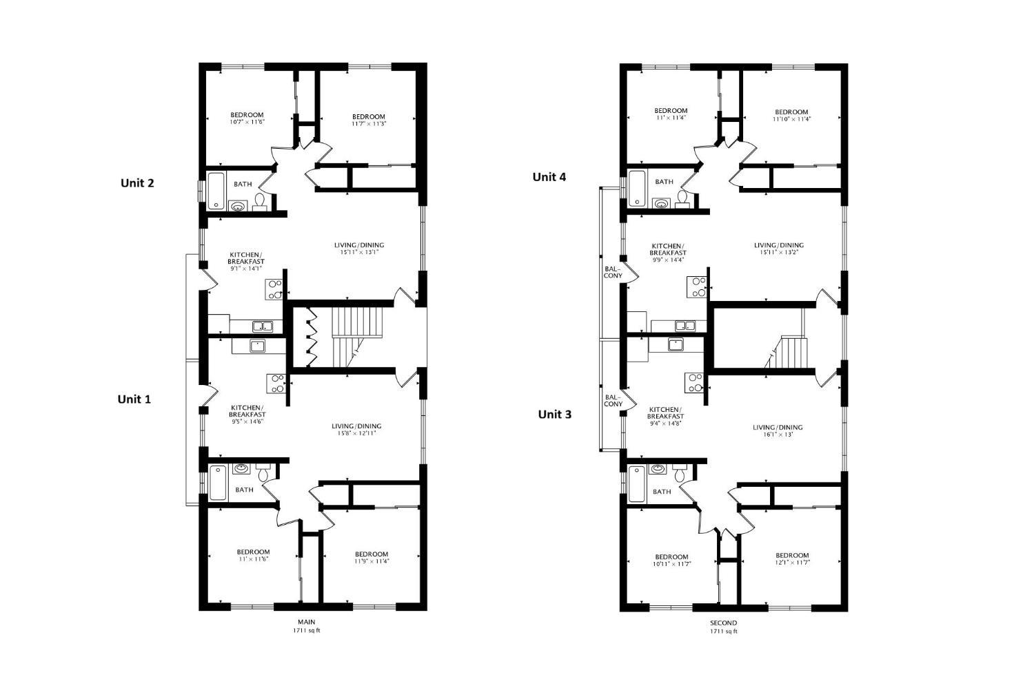
Welcome to 9847 A St, a rare opportunity to own a completely vacant 4-plex in a convenient Oakland location with easy access to both 580 & 880. All four units are turnkey and delivered vacantready for premium market rents from day one. Each unit features 2 bedrooms and 1 bathroom. This low-maintenance property is ideal for investors, all units are individually metered for water, gas, and electricity, keeping operating expenses minimal and management simple. Inside, every unit has been refreshed with new interior paint, updated light fixtures, double-pane windows, equipped with wall heater and either tile or laminate flooring throughout. The kitchens include modern cabinets, stone countertops, gas stoves, and vented hood exhausts. Bathrooms offer bathtub-over-shower setups, good-sized vanities, tile flooring, and exhaust fans. Outdoor amenities include private balconies for the upstairs units, private fenced yards for the lower units, as well as a shared backyard for additional tenant enjoyment. The large front parking lot provides ample on-site parking, and the property is fully gated for added security. The property sits in a high-demand rental area with strong tenant interest, thanks to its close proximity to 580, 880, public transportation, schools, and job hubs.
MLS #
SF425088709
MLS Source
San Francisco Association of Realtors® MLS
Appliances
Oven Range - Gas, Refrigerator
Flooring
Laminate, Tile
Cooling
None
Heating
Gas - Natural, Wall Furnace
Foundation
Slab, Concrete Perimeter and Slab
Garage/Parking
Garage: 0 Car(s)
Sewer
Public Sewer
Water
Public
HOA Fee
$0
Listing Agent
Vincent Heung
Compass
License #: 01866837
Phone: (510) 220-0188
Co-Listing Agent
Anthony Cheng
Compass
License #: 02186088
Phone: –
| # Buildings | # Leased Units | # Total Units |
|---|---|---|
| 1 | 0 | 4 |
| Unit # | Sq Ft | Beds | Baths | Rent |
|---|---|---|---|---|
| 1 | 776 | 2 | 1/0 | $2,912 |
| 2 | 776 | 2 | 1/0 | $2,912 |
| 3 | 776 | 2 | 1/0 | $2,912 |
| 4 | 776 | 2 | 1/0 | $2,912 |
9847 a St is a Residential Income in Oakland, CA 94603. This 3,104 square foot property sits on a 5,100 Sq Ft Lot and features – bedrooms & – full bathrooms. It is currently priced at $950,000 and was built in 1963. This address can also be written as 9847 a St, Oakland, CA 94603.
©2026 San Francisco Association of Realtors® MLS. All rights reserved. All data, including all measurements and calculations of area, is obtained from various sources and has not been, and will not be, verified by broker or MLS. All information should be independently reviewed and verified for accuracy. Properties may or may not be listed by the office/agent presenting the information. Information provided is for personal, non-commercial use by the viewer and may not be redistributed without explicit authorization from San Francisco Association of Realtors® MLS.
Presently MLSListings.com displays Active, Contingent, Pending, and Recently Sold listings. Recently Sold listings are properties which were sold within the last three years. After that period listings are no longer displayed in MLSListings.com. Pending listings are properties under contract and no longer available for sale. Contingent listings are properties where there is an accepted offer, and seller may be seeking back-up offers. Active listings are available for sale.
This listing information is up-to-date as of March 19, 2026. For the most current information, please contact Vincent Heung, (510) 220-0188