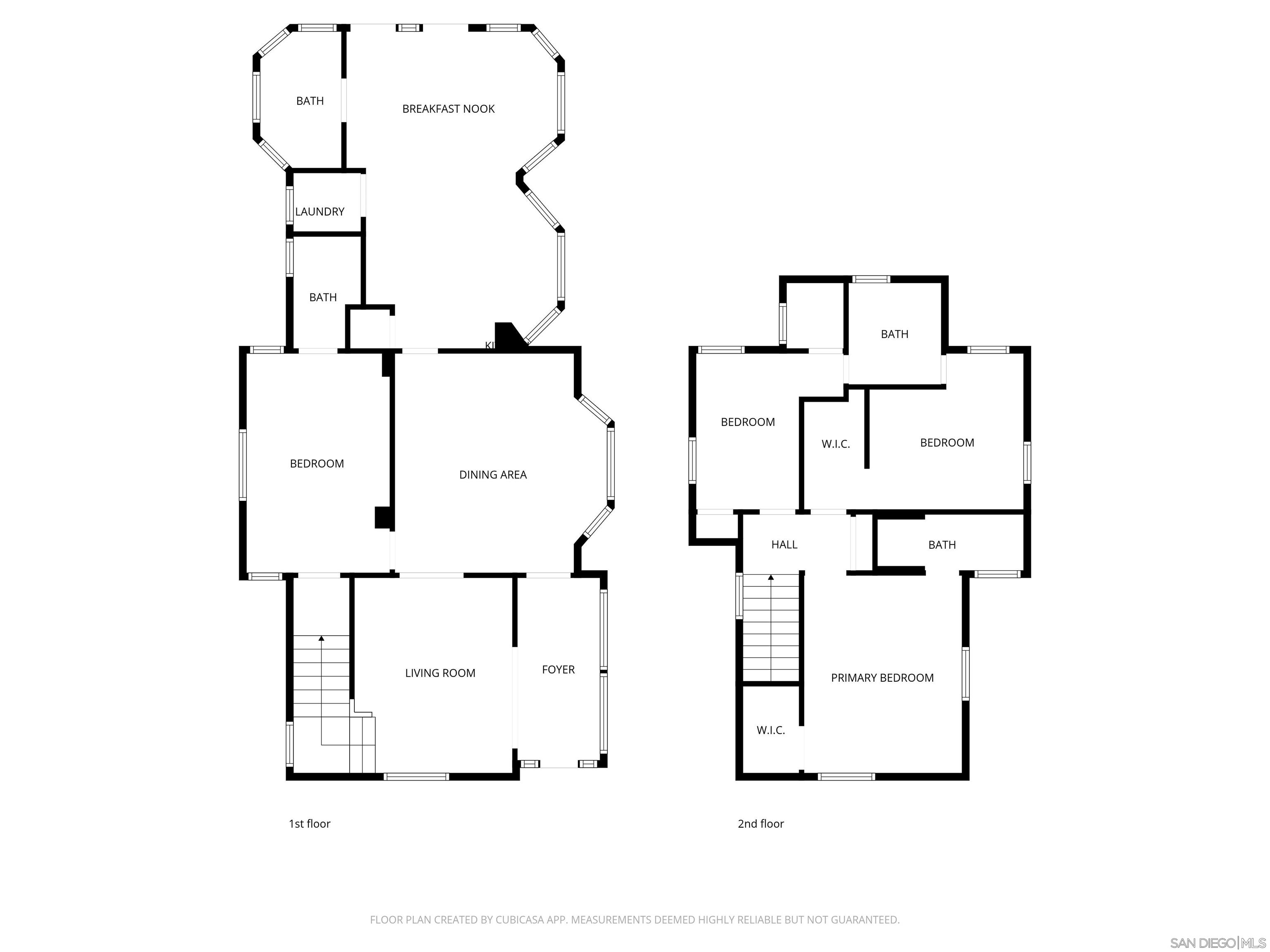
637 19th St is a beautiful Victorian home believed to date back to 1895. Boasting 4 bedrooms, 3.5 baths, and 1,727 sq. ft., PLUS a 2-bedroom, 1-bath, 1,009 sq. ft. basement apartment (not included on MLS square footage). Currently generating $5,000/month in gross income, this property blends historic charm with thoughtful updates. The fully fenced property consists of a main home featuring a stunning granite and stainless kitchen with center island, vent hood, vaulted ceilings, and exposed beams. The versatile floor plan includes separate living and dining rooms with wood floors, abundant natural light, and updated bathrooms. The backyard provides additional outdoor living space. The basement apartment offers a private entrance, its own outdoor space, high ceilings, recessed lighting, and ceiling fans. The main house includes recently updated central heating and air conditioning, along with in-unit laundry hookups. Utilities are shared. Additional highlights include a 2-car garage with extra storage, private basement storage, a deck above the garage, front patio, and a rooftop deck (ladder access) with views of the Downtown skyline and Coronado Bay Bridge
MLS #
SD260006858
MLS Source
San Diego MLS
Days on Site
2
Bathrooms
Stall Shower
Kitchen
Countertop - Granite, Countertop - Other, Island, Other
Appliances
Cooktop - Gas, Dishwasher, Hood Over Range, Microwave, Other, Oven Range, Refrigerator
Flooring
Tile, Wood
Laundry
In Closet, Other, Stacked Only
Cooling
Ceiling Fan, Central Forced Air, Other
Heating
Forced Air, Other
Roof
Composition
Pool
Other
Style
Craftsman
Garage/Parking
Attached Garage, Street, Garage: 2 Car(s)
HOA Fee
$0
Zoning
COMMERCIAL
Listing Agent
Gregg Neuman
Berkshire Hathaway HomeServices California Propert
License #: 00809392
Phone: (619) 595-7025
Co-Listing Agent
Caroline Singer
Berkshire Hathaway HomeServices California Propert
License #: 01319378
Phone: (619) 595-7025
637 19th Street is a Single Family Residence in San Diego, CA 92102. This 1,727 square foot property sits on a 3,617 Sq Ft Lot and features 4 bedrooms & 3 full and 1 partial bathrooms. It is currently priced at $995,000 and was built in 1895. This address can also be written as 637 19th Street, San Diego, CA 92102.
©2026 San Diego MLS. All rights reserved. All data, including all measurements and calculations of area, is obtained from various sources and has not been, and will not be, verified by broker or MLS. All information should be independently reviewed and verified for accuracy. Properties may or may not be listed by the office/agent presenting the information. Information provided is for personal, non-commercial use by the viewer and may not be redistributed without explicit authorization from San Diego MLS.
Presently MLSListings.com displays Active, Contingent, Pending, and Recently Sold listings. Recently Sold listings are properties which were sold within the last three years. After that period listings are no longer displayed in MLSListings.com. Pending listings are properties under contract and no longer available for sale. Contingent listings are properties where there is an accepted offer, and seller may be seeking back-up offers. Active listings are available for sale.
This listing information is up-to-date as of March 25, 2026. For the most current information, please contact Gregg Neuman, (619) 595-7025