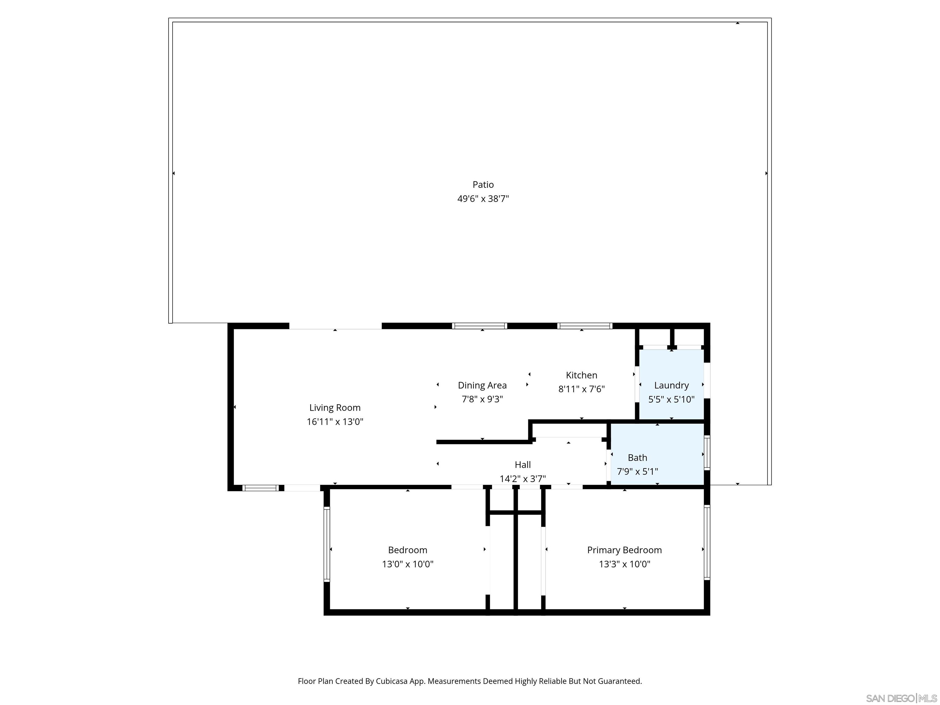
Recent appraisal at $900,000. Listed at $869,000. Great investment opportunity or owner-occupant potential—live in one unit and rent the other! Located in the heart of beautiful downtown Vista, this duplex features two 2-bedroom, 1-bath units, each approximately 904 sq ft, with interior laundry and two detached one-car garages. Unit 627 has been recently updated with epoxy coated countertops, flooring, and interior paint. Unit 629 is currently tenant-occupied (approximately 5 years) and may benefit from some cosmetic updates. Both units feature newer windows throughout. Property includes separate gas and electric meters and one shared water meter. Owner currently pays water and trash. Furnace in Unit 629 will be replaced. Conveniently located near shopping, restaurants, the Sprinter station, and more, making it an attractive opportunity for investors or owner-occupants alike.
MLS #
SD260005191
MLS Source
San Diego MLS
Days on Site
2
Cooling
Other
Heating
Forced Air, Gas - Natural
Roof
Composition
Garage/Parking
Detached, Garage: Car(s)
| # Buildings | # Leased Units | # Total Units |
|---|---|---|
| 2 | – | 2 |
| Unit # | Sq Ft | Beds | Baths | Rent |
|---|---|---|---|---|
| 1 | 904 | 2 | 1/0 | – |
| 2 | 904 | 2 | 1/0 | $1,995 |
627-629 N Citrus Ave. is a Duplex in Vista, CA 92084. This – square foot property sits on a – Sq Ft Lot and features – bedrooms & – full bathrooms. It is currently priced at $869,000 and was built in 1968. This address can also be written as 627-629 N Citrus Ave., Vista, CA 92084.
©2026 San Diego MLS. All rights reserved. All data, including all measurements and calculations of area, is obtained from various sources and has not been, and will not be, verified by broker or MLS. All information should be independently reviewed and verified for accuracy. Properties may or may not be listed by the office/agent presenting the information. Information provided is for personal, non-commercial use by the viewer and may not be redistributed without explicit authorization from San Diego MLS.
Presently MLSListings.com displays Active, Contingent, Pending, and Recently Sold listings. Recently Sold listings are properties which were sold within the last three years. After that period listings are no longer displayed in MLSListings.com. Pending listings are properties under contract and no longer available for sale. Contingent listings are properties where there is an accepted offer, and seller may be seeking back-up offers. Active listings are available for sale.
This listing information is up-to-date as of March 05, 2026. For the most current information, please contact Tiffany Thielemann-Mera, (760) 481-5894