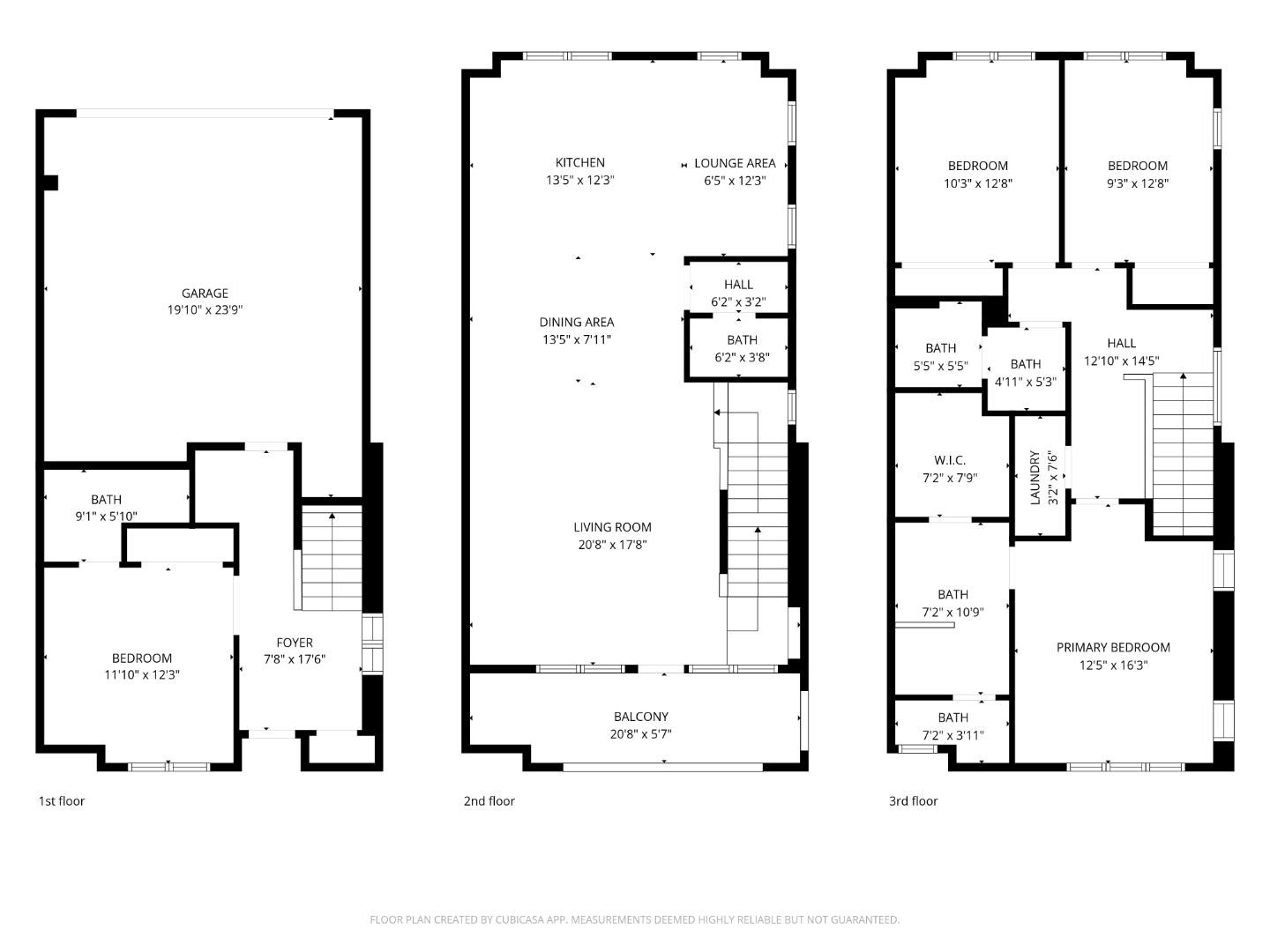
Trailside luxury just steps from Downtown Campbell! Welcome to this beautifully maintained end-unit residence in the coveted Madison community by award-winning Robson Homes. Perfectly positioned along the scenic Los Gatos Creek Trail, this home offers a rare blend of tranquil natural surroundings and vibrant walkable living just moments from restaurants, boutique shopping and the popular Sunday Farmers Market. Built just over eight years ago, the thoughtfully designed four-bedroom floor plan features a private ground-floor guest suite ideal for visitors or a home office, plus three bedrooms upstairs including a spacious primary suite with vaulted ceilings and peaceful creek trail views. At the heart of the home, the elegant island kitchen features quartz countertops, custom cabinetry and premium Viking appliances with additional space to gather and entertain. The light-filled great room showcases soaring 10' ceilings, rich hardwood floors and oversized windows, while French doors open to a large covered balcony overlooking the Los Gatos Creek Trail-- perfect for morning coffee or evening relaxation. Just moments from the Pruneyard, Campbell Park and major Silicon Valley employers, this is a rare opportunity to enjoy refined comfort in one of Campbells most desirable locations.
MLS #
ML82038014
MLS Source
MLSListings, Inc.
Days on Site
0
Bedrooms
Ground Floor Bedroom, Primary Suite/Retreat, Walk-in Closet
Bathrooms
Primary - Stall Shower(s), Shower over Tub - 1, Solid Surface, Stall Shower, Stone, Tile, Full on Ground Floor
Kitchen
Island
Appliances
Dishwasher, Garbage Disposal, Hood Over Range, Microwave, Oven Range, Refrigerator, Washer/Dryer
Dining Room
Dining Area
Family Room
Kitchen/Family Room Combo
Flooring
Hardwood
Laundry
Upper Floor
Cooling
Central Forced Air, Multi-Zone
Heating
Central Forced Air, Heating - 2+ Zones
Roof
Composition
Foundation
Slab
Style
Farm House, Modern/High Tech
Garage/Parking
Attached Garage, Guest / Visitor Parking, Garage: 2 Car(s)
Elementary District
Campbell Union Elementary
High School District
Campbell Union High
Sewer
Public Sewer
E.V. Hookup
Electric Vehicle Hookup Level 2 (240 volts)
Water
Public
HOA Fee
$334
HOA Fee Frequency
Monthly
Complex Amenities
Garden / Greenbelt/ Trails, Playground
Zoning
P-D
136 Lottie Ln is a Townhouse in Campbell, CA 95008. This 2,100 square foot property sits on a – Sq Ft Lot and features 4 bedrooms & 3 full and 1 partial bathrooms. It is currently priced at $1,998,000 and was built in 2017. This address can also be written as 136 Lottie Ln, Campbell, CA 95008.
©2026 MLSListings Inc. All rights reserved. All data, including all measurements and calculations of area, is obtained from various sources and has not been, and will not be, verified by broker or MLS. All information should be independently reviewed and verified for accuracy. Properties may or may not be listed by the office/agent presenting the information. Information provided is for personal, non-commercial use by the viewer and may not be redistributed without explicit authorization from MLSListings Inc.
Presently MLSListings.com displays Active, Contingent, Pending, and Recently Sold listings. Recently Sold listings are properties which were sold within the last three years. After that period listings are no longer displayed in MLSListings.com. Pending listings are properties under contract and no longer available for sale. Contingent listings are properties where there is an accepted offer, and seller may be seeking back-up offers. Active listings are available for sale.
This listing information is up-to-date as of March 13, 2026. For the most current information, please contact Carolyn Bird, (408) 502-1604