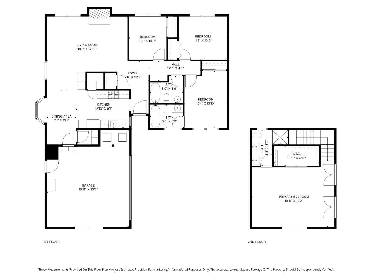
Lovingly maintained by its current owner for nearly two decades this move-in ready and beautifully improved, this spacious Birdland home offers two ensuites one on each level ideal for multi-generational living and privacy. The upstairs ensuite might be the most expansive ensuite you've ever seen in Sunnyvale, directly above the garage, also offering a walk-in closet and updated dual-sink bathroom. Just a short walk to Apple Campus, Raynor Park, and 10/10-rated Laurelwood Elementary, the home features a refinished 2-car garage with epoxy flooring and a generous living area with refinished solid oak hardwoods, in-ceiling lighting, central HVAC, Andersen windows, and crown moulding. The modern kitchen showcases Taj Mahal countertops, new stainless appliances, gas range with a powerful 1,200cfm range hood for serious cooking. The main level includes three bedrooms and two baths, including a marble-tiled ensuite, with sliders opening to a large backyard patio & powered outbuilding ideal for a future office or ADU. Lovingly maintained for nearly 20 years on a nearly 7,000sf lot, this home offers prime access to major tech campuses, commute routes, & upscale dining at Cupertino Village. This is an exceptional opportunity in one of Sunnyvale's most desirable sought after neighborhoods.
MLS #
ML82036907
MLS Source
MLSListings, Inc.
Days on Site
2
Bathrooms
Tile, Updated Bath(s), Full on Ground Floor
Kitchen
Exhaust Fan
Appliances
Dishwasher, Exhaust Fan, Microwave, Oven - Gas, Oven Range - Gas, Refrigerator
Dining Room
Dining Area
Family Room
Separate Family Room
Fireplace
Gas Burning, Other
Flooring
Tile, Wood
Laundry
In Garage
Cooling
Central Forced Air
Heating
Forced Air
Roof
Shingle
Foundation
Other
Garage/Parking
Attached Garage, Garage: 2 Car(s)
Elementary District
Santa Clara Unified
High School District
Santa Clara Unified
Sewer
Public Sewer
Water
Public
Zoning
R0
911 Inverness Way is a Single Family Residence in Sunnyvale, CA 94087. This 1,709 square foot property sits on a 6,900 Sq Ft Lot and features 4 bedrooms & 3 full bathrooms. It is currently priced at $2,388,888 and was built in 1960. This address can also be written as 911 Inverness Way, Sunnyvale, CA 94087.
©2026 MLSListings Inc. All rights reserved. All data, including all measurements and calculations of area, is obtained from various sources and has not been, and will not be, verified by broker or MLS. All information should be independently reviewed and verified for accuracy. Properties may or may not be listed by the office/agent presenting the information. Information provided is for personal, non-commercial use by the viewer and may not be redistributed without explicit authorization from MLSListings Inc.
Presently MLSListings.com displays Active, Contingent, Pending, and Recently Sold listings. Recently Sold listings are properties which were sold within the last three years. After that period listings are no longer displayed in MLSListings.com. Pending listings are properties under contract and no longer available for sale. Contingent listings are properties where there is an accepted offer, and seller may be seeking back-up offers. Active listings are available for sale.
This listing information is up-to-date as of March 03, 2026. For the most current information, please contact Ryan Nickell, (408) 857-5153