Love isn't always about grand gestures, sometimes it's about discovering the perfect fit with exceptional value. This home offers comfort, charm, and thoughtful updates throughout the home. Recent improvements include a remodeled primary bath, refinished hardwood floors, fresh interior paint downstairs, new water heater, a new kitchen sink, and a new faucet in the hall bathroom. Hall bath and half bath are also remodeled beautifully. The family room is setup as a music studio currently, before close of escrow equipment will be removed and room will be painted.
MLS #
ML82033667
MLS Source
MLSListings, Inc.
Dining Room
Dining Area
Family Room
Separate Family Room
Fireplace
Living Room
Flooring
Hardwood, Tile
Cooling
Central Forced Air
Heating
Central Forced Air
Roof
Shingle
Foundation
Crawl Space
Garage/Parking
Attached Garage, Garage: 2 Car(s)
Elementary District
Oak Grove Elementary
High School District
East Side Union High
Sewer
Public Sewer
Water
Public
Zoning
R1-8
Listing Agent
Astha Mathur
Compass
License #: 01878592
Phone: (408) 314-3091
Co-Listing Agent
Sunaina Arora
Compass
License #: 01915860
Phone: (408) 329-0502
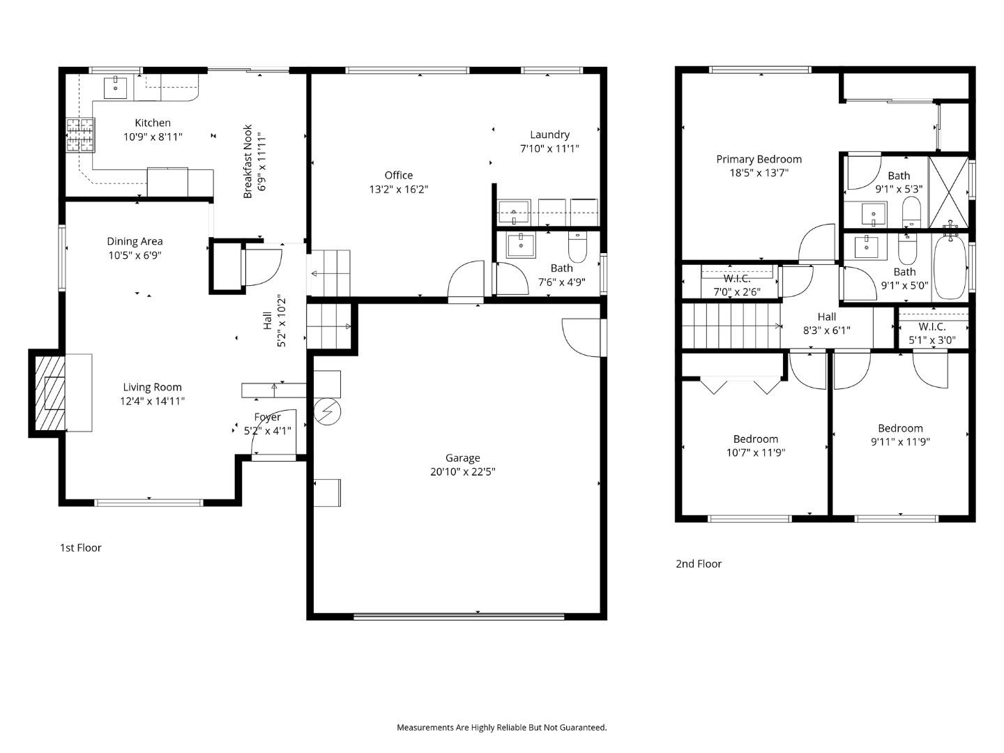
91 Cappy Ct is a Single Family Residence in San Jose, CA 95111. This 1,704 square foot property sits on a 6,098 Sq Ft Lot and features 3 bedrooms & 2 full and 1 partial bathrooms. It is currently priced at $1,200,000 and was built in 1965. This address can also be written as 91 Cappy Ct, San Jose, CA 95111.
©2026 MLSListings Inc. All rights reserved. All data, including all measurements and calculations of area, is obtained from various sources and has not been, and will not be, verified by broker or MLS. All information should be independently reviewed and verified for accuracy. Properties may or may not be listed by the office/agent presenting the information. Information provided is for personal, non-commercial use by the viewer and may not be redistributed without explicit authorization from MLSListings Inc.
Presently MLSListings.com displays Active, Contingent, Pending, and Recently Sold listings. Recently Sold listings are properties which were sold within the last three years. After that period listings are no longer displayed in MLSListings.com. Pending listings are properties under contract and no longer available for sale. Contingent listings are properties where there is an accepted offer, and seller may be seeking back-up offers. Active listings are available for sale.
This listing information is up-to-date as of February 24, 2026. For the most current information, please contact Astha Mathur, (408) 314-3091