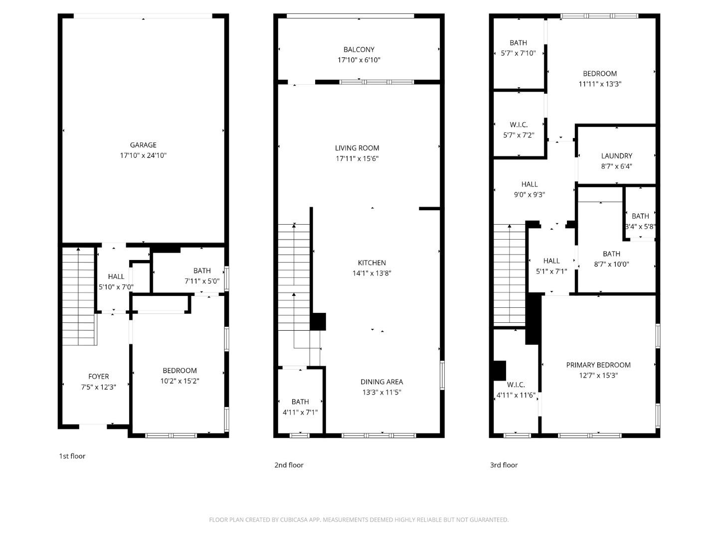
FORMER MODEL HOME! Built by Taylor Morrison. Stunning Residence 5X MODEL at Elev8tion offers 3 bedrooms, 3.5 baths, and 1,887 square feet of luxury living space! Designer select features throughout including upgraded countertops, cabinets, custom backsplash, lighting, pendant lights, flooring, Security Audio, and stainless steel appliances. The ground floor of the home features an attached two-car garage that leads to the bedroom with private bath- perfect for guests. Head upstairs to the second level and enter the large open concept living, dining, and gourmet kitchen area with a generous island. Plus, a deck off the great room. The third floor features a spacious owner's suite with an oversized walk-in-closet, dual vanities, and a walk-in shower. A second bedroom with en-suite bath and walk-in closet, and laundry room round out the top floor.Bike or Uber to Amazon,Google,Microsoft,Meta and many tech companies. 5 mins drive to Caltrains Station,supermarkets and downtown restaurants.Easy access to Hwy 101,237 and Central Expwy makes commuting effortless.Don't miss this incredible opportunity to own a modern,move in ready home in one of Silicon Valley most desirable neighborhoods.
MLS #
ML82031023
MLS Source
MLSListings, Inc.
Days on Site
6
Bedrooms
Ground Floor Bedroom, Primary Suite/Retreat, Walk-in Closet
Bathrooms
Double Sinks, Granite, Marble, Primary - Stall Shower(s), Shower and Tub, Stall Shower, Full on Ground Floor
Kitchen
Exhaust Fan, Island with Sink, Pantry
Appliances
Dishwasher, Exhaust Fan, Garbage Disposal, Microwave, Oven Range - Gas, Washer/Dryer
Dining Room
Breakfast Bar, Dining Area, Dining Area in Family Room, Eat in Kitchen
Family Room
Kitchen/Family Room Combo
Flooring
Carpet, Hardwood, Laminate, Tile
Laundry
Hookup - Gas Dryer, Upper Floor, Inside
Cooling
Central Forced Air, Whole House Fan
Heating
Central Forced Air - Gas
Roof
Tile
Foundation
Slab
Style
Spanish
Garage/Parking
Attached Garage, Guest / Visitor Parking, Garage: 2 Car(s)
Elementary District
Sunnyvale
High School District
Fremont Union High
Sewer
Public Sewer
Water
Public
HOA Fee
$465
HOA Fee Frequency
Monthly
Complex Amenities
Club House
Zoning
M1
| # Buildings | # Leased Units | # Total Units |
|---|---|---|
| 16 | – | – |
775 Santa Cecilia is a Condominium in Sunnyvale, CA 94085. This 1,887 square foot property sits on a 1,521 Sq Ft Lot and features 3 bedrooms & 3 full and 1 partial bathrooms. It is currently priced at $1,800,000 and was built in 2020. This address can also be written as 775 Santa Cecilia, Sunnyvale, CA 94085.
©2026 MLSListings Inc. All rights reserved. All data, including all measurements and calculations of area, is obtained from various sources and has not been, and will not be, verified by broker or MLS. All information should be independently reviewed and verified for accuracy. Properties may or may not be listed by the office/agent presenting the information. Information provided is for personal, non-commercial use by the viewer and may not be redistributed without explicit authorization from MLSListings Inc.
Presently MLSListings.com displays Active, Contingent, Pending, and Recently Sold listings. Recently Sold listings are properties which were sold within the last three years. After that period listings are no longer displayed in MLSListings.com. Pending listings are properties under contract and no longer available for sale. Contingent listings are properties where there is an accepted offer, and seller may be seeking back-up offers. Active listings are available for sale.
This listing information is up-to-date as of January 18, 2026. For the most current information, please contact Sang Kang, (925) 200-3939