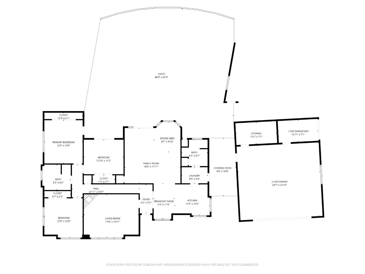
A gated rural agricultural residence on 1.2 usable acres with pasture and future garden areas, full sun exposure, and a long private driveway. The property is fully fenced with multiple gates, including two additional access points ideal for oversized vehicles, trailers, or equipment. The single level 3 bed 2 bath home features a cozy kitchen with breakfast bar and sunny breakfast nook, plus a dining area within the living room accented by vaulted ceilings. A separate large family room offers a picture window overlooking the front grounds. The home and attached three car garage both feature newer composition roof. Designed for flexibility and function, the property includes a warehouse style garage built for serious use. Tall ceilings allow for multiple vehicle lifts, two roll up doors provide easy access, skylights bring in natural light, and a second level loft offers office or workspace above the garage floor. The space has previously accommodated a large collection of cars, bikes, trailers, and a full workshop. An additional side carport and two more outbuildings provide even more storage and utility. Usable land with natural contouring, privacy, and opportunity. Space for animals, equipment, and imagination.
MLS #
ML82029912
MLS Source
MLSListings, Inc.
Days on Site
5
Bedrooms
More than One Bedroom on Ground Floor
Bathrooms
Shower over Tub - 1, Stall Shower, Tile, Full on Ground Floor
Kitchen
Countertop - Tile
Appliances
Oven Range, Refrigerator
Dining Room
Breakfast Bar, Breakfast Nook, Dining Area in Living Room
Family Room
Separate Family Room
Fireplace
Family Room, Wood Burning
Flooring
Carpet, Hardwood, Vinyl/Linoleum
Laundry
Inside
Cooling
None
Heating
Fireplace, Forced Air, Propane
Roof
Composition
Foundation
Concrete Perimeter and Slab
Style
Ranch
Garage/Parking
Attached Garage, Carport, Covered Parking, Parking Area, Room for Oversized Vehicle, Tandem Parking, Garage: 13 Car(s)
Elementary District
North Monterey County Unified
High School District
North Monterey County Unified
Zoning
Residential
Listing Agent
Angela Savage
Steinbeck Real Estate, Inc.
License #: 01934055
Phone: (831) 809-6387
Co-Listing Agent
Melissa Radowicz
Compass
License #: 01316691
Phone: (831) 320-7961
17777 Vierra Canyon Rd is a Single Family Residence in Salinas, CA 93907. This 1,794 square foot property sits on a 52,272 Sq Ft Lot and features 3 bedrooms & 2 full bathrooms. It is currently priced at $1,175,000 and was built in 1963. This address can also be written as 17777 Vierra Canyon Rd, Salinas, CA 93907.
©2026 MLSListings Inc. All rights reserved. All data, including all measurements and calculations of area, is obtained from various sources and has not been, and will not be, verified by broker or MLS. All information should be independently reviewed and verified for accuracy. Properties may or may not be listed by the office/agent presenting the information. Information provided is for personal, non-commercial use by the viewer and may not be redistributed without explicit authorization from MLSListings Inc.
Presently MLSListings.com displays Active, Contingent, Pending, and Recently Sold listings. Recently Sold listings are properties which were sold within the last three years. After that period listings are no longer displayed in MLSListings.com. Pending listings are properties under contract and no longer available for sale. Contingent listings are properties where there is an accepted offer, and seller may be seeking back-up offers. Active listings are available for sale.
This listing information is up-to-date as of January 19, 2026. For the most current information, please contact Angela Savage, (831) 809-6387