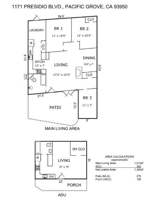
Located in the charming coastal town of Pacific Grove, this 3 bedroom, 1 bath home with a newly constructed detached studio Accessory Dwelling Unit (ADU) is the perfect combination of charm, efficiency, style, and comfort. Situated in one of Pacific Grove's sweetest neighborhoods, this bright and light single level home is a delight! Its saltillo tile floors and river rock fireplace makes you feel immediately at home and at ease. The updated kitchen and bath mean you can relax and enjoy your home immediately. The home has been updated with refinished tile floors, updated kitchen and bath, new roof (2022), and recently replaced appliances. There is outside living with an an enchanting front patio and low-maintenance backyard space with built-in storage. The new ocean view studio ADU has vaulted ceilings, a full kitchen and bath, a walk-in closet, it's own laundry hookups, and is perfect for additional income or a wonderful space for family and friends. Close to Pebble Beach, the ocean, shopping, and wonderful schools!
MLS #
ML82028409
MLS Source
MLSListings, Inc.
Days on Site
6
Bedrooms
Ground Floor Bedroom, More than One Bedroom on Ground Floor
Bathrooms
Showers over Tubs - 2+, Skylight, Full on Ground Floor
Appliances
Dishwasher, Garbage Disposal, Microwave, Oven Range - Gas, Refrigerator, Washer/Dryer
Dining Room
Dining Area, Dining Bar
Family Room
No Family Room
Fireplace
Living Room, Wood Burning
Flooring
Tile
Laundry
Inside
Cooling
None
Heating
Gas, Wall Furnace
Roof
Rolled/Hot Mop
Foundation
Slab
Garage/Parking
Off-Street Parking, Garage: 0 Car(s)
Elementary District
Pacific Grove Unified
High School District
Pacific Grove Unified
Sewer
Public Sewer
Water
Public
Zoning
R1
1171 Presidio Blvd is a Single Family Residence in Pacific Grove, CA 93950. This 1,365 square foot property sits on a 4,500 Sq Ft Lot and features 3 bedrooms & 2 full bathrooms. It is currently priced at $1,182,000 and was built in 1953. This address can also be written as 1171 Presidio Blvd, Pacific Grove, CA 93950.
©2025 MLSListings Inc. All rights reserved. All data, including all measurements and calculations of area, is obtained from various sources and has not been, and will not be, verified by broker or MLS. All information should be independently reviewed and verified for accuracy. Properties may or may not be listed by the office/agent presenting the information. Information provided is for personal, non-commercial use by the viewer and may not be redistributed without explicit authorization from MLSListings Inc.
Presently MLSListings.com displays Active, Contingent, Pending, and Recently Sold listings. Recently Sold listings are properties which were sold within the last three years. After that period listings are no longer displayed in MLSListings.com. Pending listings are properties under contract and no longer available for sale. Contingent listings are properties where there is an accepted offer, and seller may be seeking back-up offers. Active listings are available for sale.
This listing information is up-to-date as of December 01, 2025. For the most current information, please contact Molly McGee, (831) 601-8424