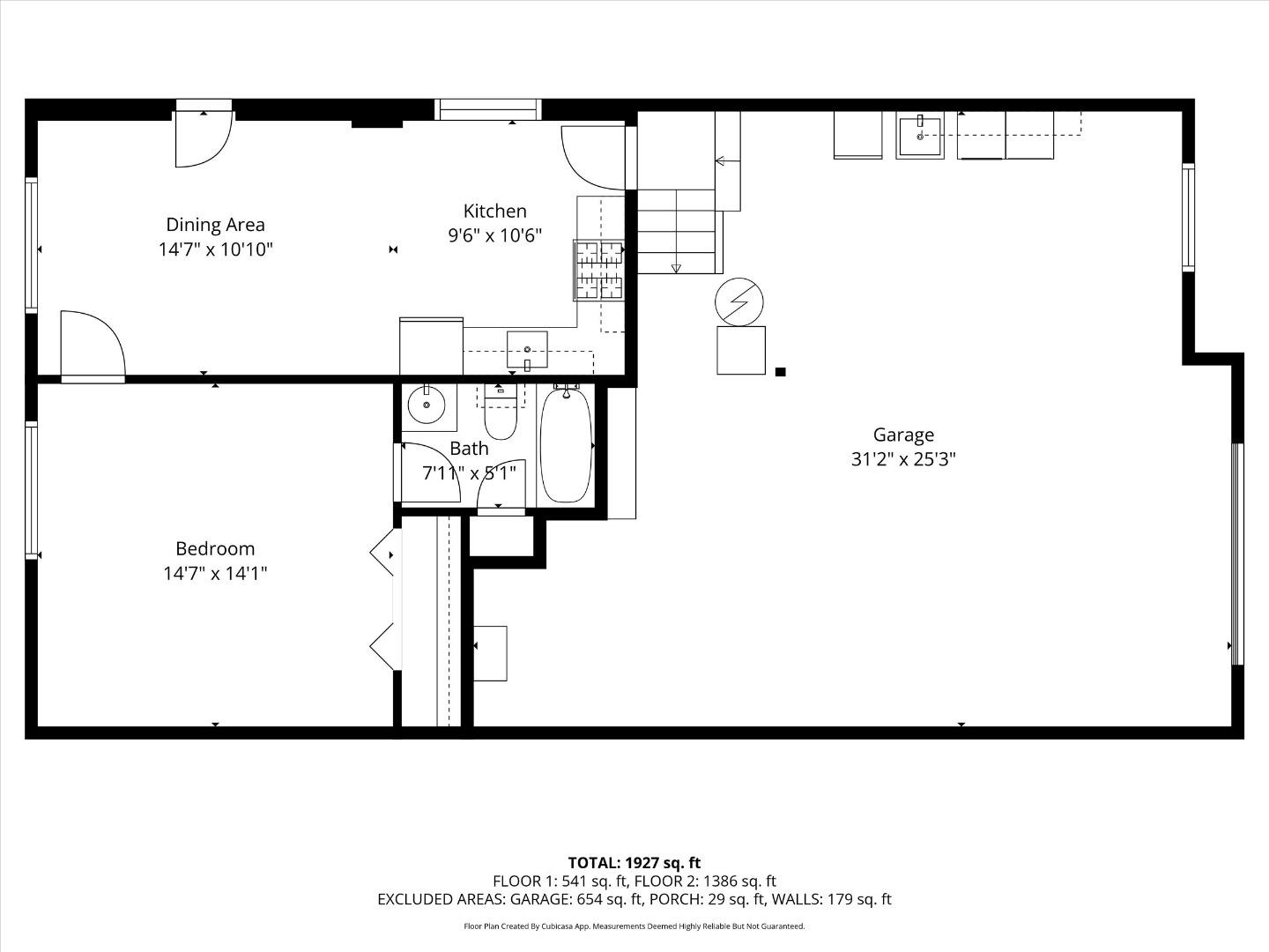
Discover the spacious charm of this Daly City residence, boasting 2,030 sq ft of living space. Featuring five bedrooms, including a convenient ground floor bedroom, and three well-appointed full bathrooms with a mix of shower over tub and stall shower options. The kitchen is a culinary delight with synthetic countertops, gas range oven, microwave, refrigerator, dishwasher, garbage disposal, and a pantry for ample storage. Enjoy meals in the dining area integrated within the living room. The flooring is a combination of cozy carpet and elegant wood, complementing the warmth of the central forced air gas heating system. A fireplace adds a touch of comfort to the living space. Practical amenities include laundry facilities with a washer and dryer located in the garage, which provides two parking spaces. The home features double pane windows for energy efficiency. Situated in the Jefferson Elementary School District, this property offers quality living in a convenient location.
MLS #
ML82008151
MLS Source
MLSListings, Inc.
Bedrooms
Ground Floor Bedroom
Bathrooms
Shower over Tub - 1, Stall Shower
Kitchen
Countertop - Synthetic, Hookups - Gas, Pantry
Appliances
Dishwasher, Garbage Disposal, Hood Over Range, Ice Maker, Microwave, Oven Range - Gas, Refrigerator, Dryer, Washer
Dining Room
Dining Area, Dining Area in Living Room
Family Room
No Family Room
Fireplace
Living Room, Wood Burning
Flooring
Carpet, Wood
Laundry
In Garage
Cooling
None
Heating
Central Forced Air - Gas
Roof
Composition
Foundation
Concrete Perimeter and Slab
Pool
None
Style
Contemporary, Ranch
Garage/Parking
Attached Garage, Garage: 2 Car(s)
Elementary District
Jefferson Elementary San Mateo
High School District
Jefferson Union High
Sewer
Public Sewer
Water
Public
Zoning
R10003
Listing Agent
Frank Vella
SF Homelife, Inc.
License #: 01104977
Phone: (650) 464-8062
Co-Listing Agent
Robert Greer
SF Homelife, Inc
License #: 01914435
Phone: –
16 Christopher Ct is a Single Family Residence in Daly City, CA 94015. This 2,030 square foot property sits on a 3,300 Sq Ft Lot and features 5 bedrooms & 3 full bathrooms. It is currently priced at $1,320,888 and was built in 1960. This address can also be written as 16 Christopher Ct, Daly City, CA 94015.
©2026 MLSListings Inc. All rights reserved. All data, including all measurements and calculations of area, is obtained from various sources and has not been, and will not be, verified by broker or MLS. All information should be independently reviewed and verified for accuracy. Properties may or may not be listed by the office/agent presenting the information. Information provided is for personal, non-commercial use by the viewer and may not be redistributed without explicit authorization from MLSListings Inc.
Presently MLSListings.com displays Active, Contingent, Pending, and Recently Sold listings. Recently Sold listings are properties which were sold within the last three years. After that period listings are no longer displayed in MLSListings.com. Pending listings are properties under contract and no longer available for sale. Contingent listings are properties where there is an accepted offer, and seller may be seeking back-up offers. Active listings are available for sale.
This listing information is up-to-date as of January 30, 2026. For the most current information, please contact Frank Vella, (650) 464-8062