---
listing_id: EB41125483
status: Closed
price: 3100000
beds: 4
baths_full: 4
baths_half: 0
sqft_living: 2954
sqft_lot: 6912
lot_acres: 
year_built: 1953
property_type: Residential
property_subtype: Single Family Residence
address: "2 Gravatt Drive"
city: Berkeley
state: CA
zip: 94705
county: "Alameda County"
lat: 37.8599577
lng: -122.2385419
days_on_market: 77
hoa_fee: 
hoa_frequency: 
garage_spaces: 2
list_agent: "Julie Nachtwey"
list_office: "Compass"
list_agent_phone: "(510) 376-7440"
list_agent_license: 00922389
mls_source: MAXEBRDI
modified: 2026-04-15
transaction_type: recentlySold
---

Home | Alameda County | Berkeley | 94705 | 2 Gravatt Drive

2 Gravatt Drive, Berkeley, CA 94705

MLS: EB41125483 | Status: Sold | Price: $3,100,000
Beds/Baths: 4 / 4
Property Type: Residential

Quick Facts

Beds Baths Sq Ft Sq Ft Lot Yr Built
4 4 2,954 6,912 1953

Remarks

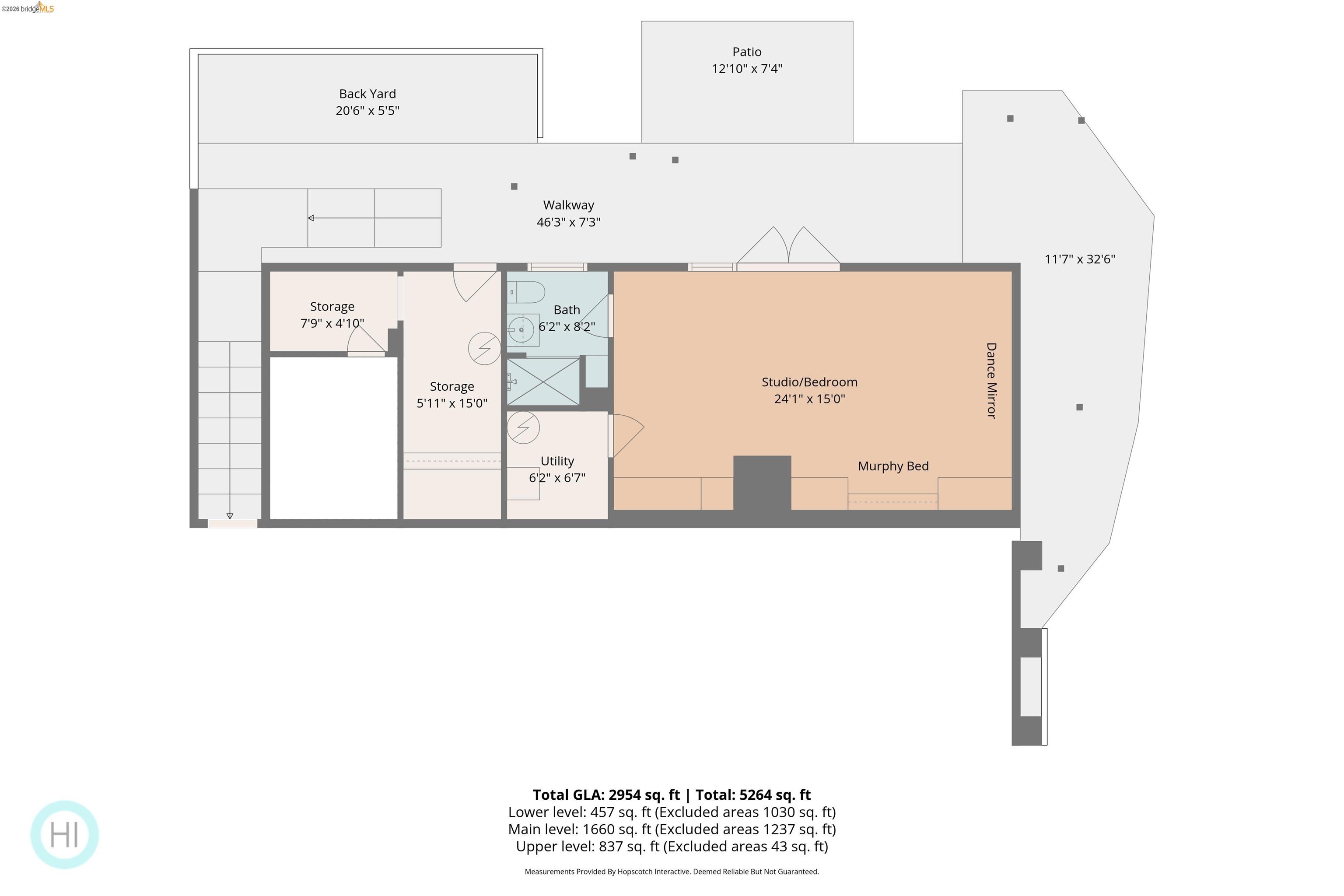
Unobstructed 3-bridge SF BAY VIEWS! Stunning level-in Mid-Century Modern offers the best of both worlds: a serene retreat and quick access to the conveniences of town. Move-in ready. Living/dining ideal for entertaining. Glass doors lead to a room-length viewing deck. Indoor/outdoor flow enhanced by entry courtyard w/sculptural pond. Every room is bathed in natural light and has delightful views. Eat-in kitchen features stainless steel counters, creating a dramatic, clean aesthetic repeated through the house. All floors are hardwood maple. Home boasts four ensuites: Main living level has 2 bedrms/2baths overlooking private courtyard. Upstairs, the spacious primary offers views of SF BAY and Claremont Canyon. Includes: balcony, office alcove, luxurious primary bath w/soaking tub, steam shower, his 'n hers closets, laundry room. Large studio on lower level with full bath and separate entrance. Don't miss the Murphy bed and kitchenette. Studio can be used as guest suite, exercise/dance studio, or in-law (no sep utility meter). It has a charming private patio with raised-bed garden. AC. Everything is updated with style, even the 2-car garage! Solar, Powerwall, EV Charger. Just minutes to the Claremont Hotel, Peet's Coffee, Rockridge, Elmwood, hiking trails, freeway access.

MLS Listing Information

Field Value
MLS # EB41125483
MLS Source Bridge MLS

Features

Interior Features

Feature Details
Bathrooms Primary - Skylight(s), Primary - Solid Surface, Primary - Updated Bath(s)
Kitchen Countertop - Solid Surface / Corian, Eat In Kitchen, Island, Kitchen/Family Room Combo, Pantry, Updated
Appliances Dishwasher, Garbage Disposal, Microwave, Oven - Self Cleaning, Oven Range - Built-In, Oven Range - Gas, Refrigerator, Dryer, Washer
Dining Room Dining Area
Fireplace Living Room, Wood Burning
Flooring Hardwood, Tile
Laundry 220 Volt Outlet, In Laundry Room
Cooling Central -1 Zone
Heating Forced Air

Exterior Features

Feature Details
Foundation Crawl Space
Pool Other, Pool - No

Parking, School, and Other Information

Feature Details
Garage/Parking Attached Garage, Garage, Gate/Door Opener, Parking Space(s), Garage: 2 Car(s)
Elementary District Oakland Unified
High School District Oakland Unified

Contact Information

Julie Nachtwey
Compass
License #: 00922389
Phone: (510) 376-7440

School Ratings

School data provided by GreatSchools.org

Nearby Schools

School Type Grades Distance Rating
John Muir Elementary School public K-5 0.39 mi 9
Kaiser Early Childhood Center public KG 0.63 mi N/A
Emerson Elementary School public K-5 0.64 mi 7
Chabot Elementary School public K-5 0.75 mi 9
Willard Middle School public 6-8 1.10 mi 10
Claremont Middle School public 6-8 1.19 mi 9
Peralta Elementary School public K-5 1.33 mi 8
Sylvia Mendez Elementary public K-5 1.33 mi 8
Hillcrest Elementary School public K-8 1.35 mi 9
Sankofa United Elementary School public K-5 1.68 mi 2
Berkeley Independent Study K-8 public K-8 1.76 mi 10
Berkeley Technology Academy public 10-12 1.78 mi 5
Berkeley High School public 9-12 1.90 mi 9
Washington Elementary School public K-5 1.94 mi 10
Malcolm X Elementary School public K-5 1.98 mi 8
Berkeley Special Education Preschool public UG 2.00 mi N/A
Emerson Elementary School public K-5 2.06 mi 5
Oakland Technical High School public 9-12 2.09 mi 8
Berkeley Arts Magnet at Whittier School public K-5 2.11 mi 10
Oakland International High School public 9-12 2.20 mi 1

Disclosures

©2026 Bridge MLS. All rights reserved. All data, including all measurements and calculations of area, is obtained from various sources and has not been, and will not be, verified by broker or MLS. All information should be independently reviewed and verified for accuracy. Properties may or may not be listed by the office/agent presenting the information. Information provided is for personal, non-commercial use by the viewer and may not be redistributed without explicit authorization from Bridge MLS.

Presently MLSListings.com displays Active, Contingent, Pending, and Recently Sold listings. Recently Sold listings are properties which were sold within the last three years. After that period listings are no longer displayed in MLSListings.com. Pending listings are properties under contract and no longer available for sale. Contingent listings are properties where there is an accepted offer, and seller may be seeking back-up offers. Active listings are available for sale.

This listing information is up-to-date as of April 15, 2026. For the most current information, please contact Julie Nachtwey, (510) 376-7440.